Bildegalleri

Juan-les-Pins - Nybygg - Duplexleilighet med takterrasse med boblebad - Flott havutsikt
Nøkkelinfo
- Boligtype
- Leilighet
- Soverom
- 2
- Grunnflate
- 119 m²
- Boligareal
- 119 m²
- Rom
- 3
Fasiliteter
Visning
Ta kontakt for å avtale visning.Om eiendommen
Juan-les-Pins - Nybygg - Duplexleilighet med takterrasse med boblebad - Flott havutsikt
Toppleilighet i et nytt prosjekt i Juan-Les-Pins:
Denne nye luksusresidensen med kun 8 leiligheter ligger i et av de mest ettertraktede områdene i Juan les Pins, og kombinerer moderne design, komfort og førsteklasses fasiliteter. Beliggenheten tilbyr et eksepsjonelt bomiljø på Côte d'Azur, med direkte tilgang til fine sandstrender.
Eiendommen vi tilbyr er en av to penthouser over to etasjer med spektakulær havutsikt over Cap d'Antibes og Lérins-øyene.
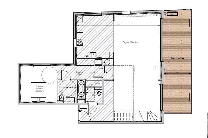
Denne praktfulle leiligheten har et areal på 119 m² og består av en stor stue/kjøkken på 61 m² med store panoramavinduer som vender ut mot en terrasse på 23 m² med uhindret havutsikt. Et soverom med eget bad og omkledningsrom kompletterer dette nivået. Gjestetoalett.
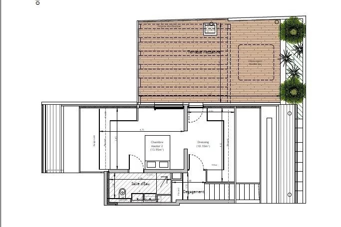
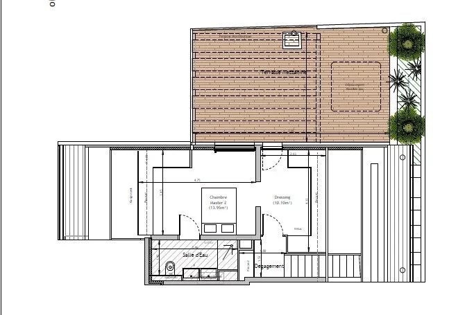
I øverste etasje er det et soverom med eget bad og omkledningsrom som vender ut mot den andre store terrassen på 35 m² med bioklimatisk pergola og privat jacuzzi.
Reversibel klimaanlegg i alle rom, skreddersydde garderober på soverommene.
Elegant arkitektur som forsterkes om natten med skreddersydd belysning, flislagt tak, glass- og stålrekkverk.
Denne eiendommen er et alternativ til en villa, ideell for den som ønsker en prestisjefylt eiendom med boblebad, privatliv, sikkerhet og uten vedlikehold av en tomt.
Leiligheten selges med parkering i underetasjen, en parkeringsplass for motorsykkel og en kjellerbod. Integrert elektrisk ladepunkt for alle parkeringsplasser.
Antall hovedpartier: 8 - Levering planlagt til 01/04/2027 - Reduserte notaravgifter.
Ikke-kontraktsmessige bilder.
Eiendommer tilgjengelig for salg i denne residensen:
-T3 duplex med garasje, motorsykkelparkering og kjellerbod inkludert: € 1 499 000
- T2 fra € 369 000, pluss parkering og kjellerbod
- T3 fra €529 000, pluss parkering og kjellerbod
Kontakt oss for ytterligere informasjon.
Siden 2002 har AAA Riviera utmerket seg ved å tilby skreddersydd eiendomsmegling og service på norsk i et geografisk område som strekker seg fra Saint-Tropez i vest til Menton i øst. Våre meglerkontorer ligger sentralt i Cannes og Antibes Juan-les-Pins. I tillegg har vi et representasjonskontor i Bogstadveien i Oslo.
Vårt mål er å skape trygghet og optimalisere verdiskapningen for våre kunder gjennom kompetanse, erfaring og høy servicegrad. For våre kunder tilbyr vi også rådgivning i hvordan man inntar eierskapet hensyntatt fransk sivil, arv- og skatterett, finansieringbistand samt after sales service etter behov.
Velkommen til en uforpliktende og fortrolig samtale om ditt eiendomsprosjekt på Den franske riviera - enten det gjelder kjøp eller salg. Tlf.FR: +33(0)4 93 34 16 72 - Tlf.NO: +47-22 20 53 99 - E-post: mail@aaariviera.com.
AAA Riviera sarl - FR43442373619 - Meglerlisens nr CPI 0605 2016 000 004252 Alpes-Maritimes - Garanti SO.CA.F Paris.
NB. Prisantydningen er oppgitt i euro. Man må beregne et tillegg på mellom 7,5% og 8% omkostninger i annenhåndsmarkedet. (Notarkostnader som bl.a. inkluderer dokumentavgift og tinglysningsgebyr.) Ved kjøp av nybygg er omkostningene rundt 2,5%. Meglerprovisjonen er inkludert i prisantydningen og betales av selger.
Ta kontakt med selger for komplett informasjon
Nyttige lenker
Nærområdet
AAA Riviera
Annonseinformasjon
| FINN-kode | 433503383 |
|---|---|
| Sist endret | 30. des. 2025 03:00 |
| Referanse | NY-1089-DUJLP |
Annonsene kan være mangelfulle i forhold til lovpålagt opplysningsplikt. Før bindende avtale inngås oppfordres interessenter til å innhente komplett informasjon fra meglerforetaket, selger eller utleier.





