Bildegalleri

Image 0
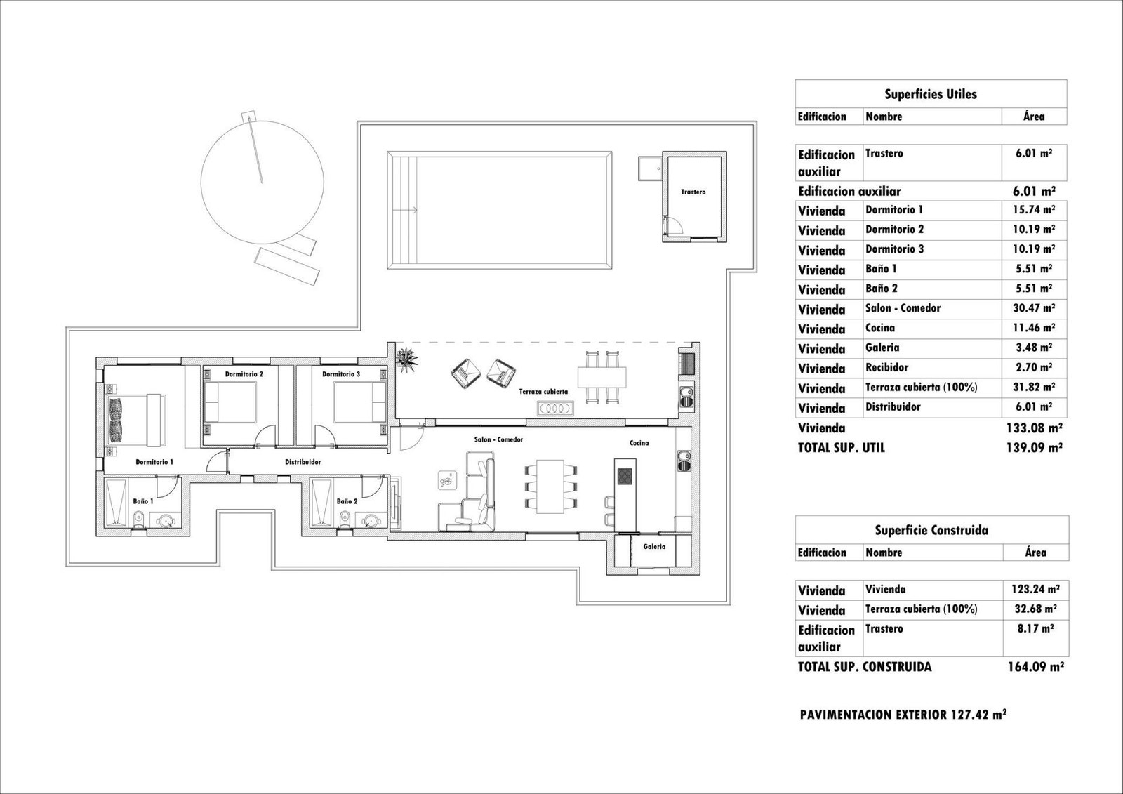
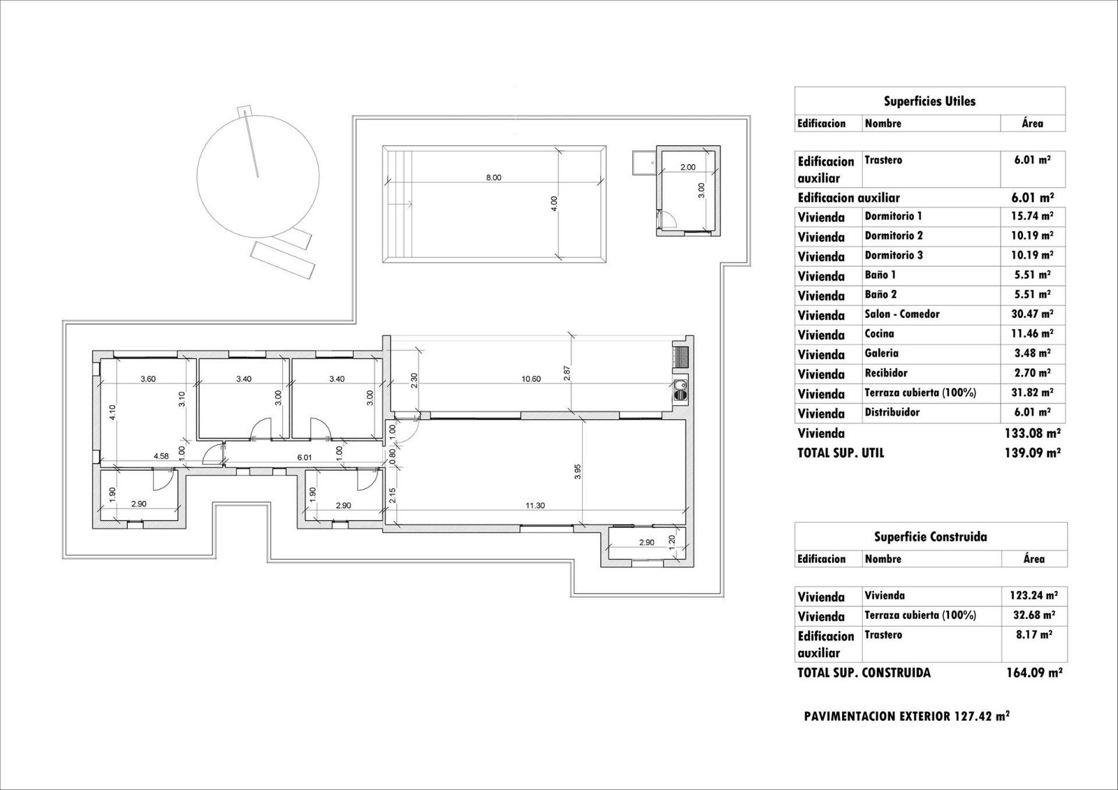
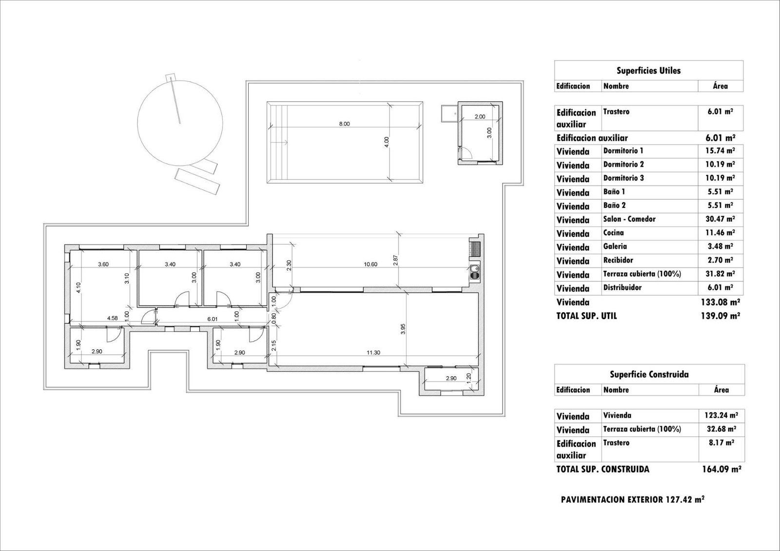
Villa en Aspe
Nøkkelinfo
- Beliggenhet
- Innlandet
- Boligtype
- Enebolig
- Eieform
- Eier (Selveier)
- Soverom
- 3
- Grunnflate
- 164 m²
- Tomteareal
- 13 172 m² (eiet)
- Rom
- 1
- Sengeplasser
- 3
Fasiliteter
Hage
Balansert ventilasjon
WAREHOUSE
Visning
Ta kontakt for å avtale visning.Om eiendommen
Description
null
NB: Knappen for å vise hele beskrivelsen har kun en visuell effekt.
NB: Knappen for å vise hele beskrivelsen har kun en visuell effekt.
Ta kontakt med selger for komplett informasjon
Nyttige lenker
Nærområdet
Esentya Estate SL
An investment in quality of life
Annonsene kan være mangelfulle i forhold til lovpålagt opplysningsplikt. Før bindende avtale inngås oppfordres interessenter til å innhente komplett informasjon fra meglerforetaket, selger eller utleier.























