Bildegalleri

Flott anlegg i Playa Flamenca, 2, 3 eller 4 soverom. Flamenca Sun
Nøkkelinfo
- Beliggenhet
- Ved sjøen
- Boligtype
- Leilighet
- Soverom
- 2
- Bruttoareal
- 73 m²
- Byggeår
- 2025
Visning
Ta kontakt for å avtale visning.Om eiendommen
Beliggenhet
Nå selges blokk 2 og blokk 3 av dette flotte komplekset og mange er allerede solgt. Ikke vent for lenge dersom dette er det du ser etter.
Innflytting på denne fasen er beregnet til Desember 2025
Generelt
Eurobolig og Spanialiv har siden 2001 formidlet flere hundre flotte eiendommer til skandinaviske kunder. For å yte ennå bedre service har vi nå slått oss sammen, og kan for øyeblikket tilby over 30 000 boliger, både nye og brukte. Vi har et stort utvalg av boliger for salg langs hele Costa Blanca, Costa Calida og på Costa del Sol, i alle prisklasser. Vårt kontor i Spania, MASA International, har siden starten i 1981 solgt over 36000 boliger. Se hele vårt utvalg på våre websider.
Visningsturer
Vi arrangerer visningsturer til Spania nesten hver uke hele året. Våre turer varer i opptil 4 dager, og man betaler kun en egenandel fra kr.1.990,- pr. person. Inkludert i denne prisen er da flybilletter, hotell i Spania, frokost og lunsj samt all transport og omvisning i Spania med skandinavisk rådgiver.
Man kan også velge å betale for flybillettene selv. Vi vil allikevel sørge for at dere blir hentet på flyplassen og vi står da også for overnattingen og frokost og lunsj i opptil 4 dager/3 netter. Dersom man kjøper seg en bolig på turen vil vi da kreditere dere for kostnaden for 2 flybilletter.
Alle våre kunder blir hjulpet individuelt og man blir ikke plassert i grupper sammen med andre, noe som gjør at man får bedre tid på de forskjellige visningene, og er mer fleksibel mht. planlagt program.
Dersom dere skal til Spania på egen hånd og ønsker å se på noen av de boligene som vi kan levere, ordner vi selvsagt også det. Ta kontakt for å gjøre en avtale.
Dersom man ønsker å reservere en bolig hjemmefra kan vi ordne med alle nødvendige dokumenter og sørge for at man får kjøpt seg den boligen man ønsker seg.
Trygghet ved kjøp
Når du bruker så mange penger på en bolig i utlandet, er det svært viktig å velge en profesjonell og etisk organisasjon som tar seg av dine interesser på en hederlig måte.
Vårt kontor i Spania er en av få eiendomsselskaper på Costa Blanca som har blitt autorisert med ISO 9001 status, som betyr at du har fordeler av at vi har forpliktet oss til å gi våre kunder førsteklasses service.
I disse korona tider da det jo for mange er begrenset med muligheter for å reise ned hit for å se prospekter med egne øyne, om ønskelig, er vi selvfølgelig behjelpelig med oppdatert informasjon, nye bilder, video fra prosjektet, etc.
Adkomst/Tomteforhold
Lekre leiligheter i Playa Flamenca.
Fantastisk nytt kompleks som ligger i det populære området Playa Flamenca (Orihuela Costa) kun 700 meter til stranden og mindre enn 1 km. til det store shopping-/underholdningssenteret Zenia Boulevard med alle de kjente butikkene, restaurantene, bowling, kasino og mer.
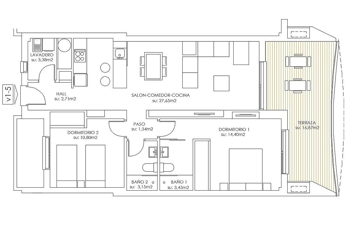
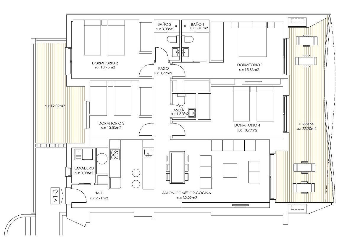
Komplekset vil ha vakkert innredede, moderne leiligheter med store terrasser, her kan du velge mellom to soverom eller tre soverom og to bad. Alle toppleilighetene har et stort privat solarium.
Anlegget har et boblebad og to bassenger, resepsjonsområde, badstue, treningsrom, lekeplass, chill-out lounge, bowling, petanque og anlagte grøntområder.
Innhold
Leiligheter med 2 soverom og 2 bad starter nå på 325.000 €
Leiligheter med 3 soverom og 2 bad starter nå på 419.000 €
Leiligheter med 4 soverom og 3 bad koster nå fra 505.000 €
Spanske avgifter kommer i tillegg, ca 13-14%
Underjordisk parkering følger med. Det er heis i bygningene.
Standard
Meget flotte leiligheter i et flott anlegg
Ta kontakt med selger for komplett informasjon
Nærområdet
Masa International
Annonseinformasjon
| FINN-kode | 431923870 |
|---|---|
| Sist endret | 13. okt. 2025 15:30 |
| Referanse | Flamenca Sun |
Annonsene kan være mangelfulle i forhold til lovpålagt opplysningsplikt. Før bindende avtale inngås oppfordres interessenter til å innhente komplett informasjon fra meglerforetaket, selger eller utleier.
















