Bildegalleri

Stilfull leilighet med smart planløsning og havutsikt i Villamartin
C. Canela, 6, 03189 Orihuela, Alicante, Costa Blanca sørNøkkelinfo
- Beliggenhet
- Ved sjøen
- Boligtype
- Leilighet
- Soverom
- 2
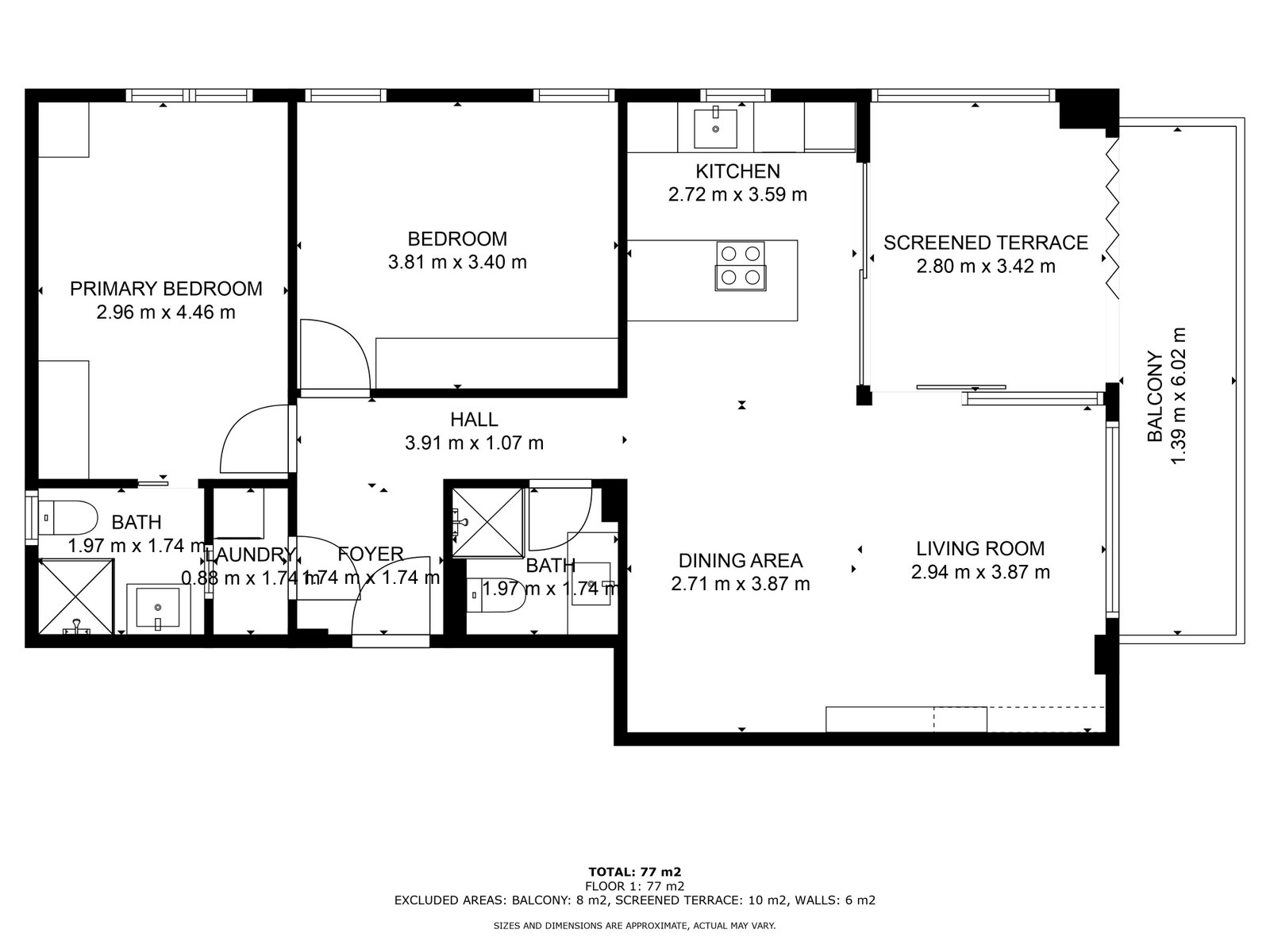
- Primærrom
- 72 m²
- Bruksareal
- 99 m²
- Byggeår
- 2017
Visning
Ta kontakt for å avtale visning.Om eiendommen
Beliggenhet
Generelt
Oppdag denne elegante 2-soveroms, 2-baderoms leiligheten bygget i 2017 og holdt i utmerket stand. Boligen selges møblert (med unntak av noen personlige eiendeler og kunstverk) og er innflytningsklar i et av de mest ettertraktede områdene på Costa Blanca.
Nyt en smart og praktisk planløsning med en lys stue som forlenges av en innglasset terrasse — perfekt som ekstra oppholdsrom eller spisestue. Herfra kan du beundre den vakre utsikten mot Middelhavet.
Tilleggsfunksjoner inkluderer:
To boder (én inne i leiligheten, én på loftet)
Heis i bygget
Praktisk parkering rett utenfor
Et veletablert sameie med god atmosfære
Beliggende bare en kort avstand fra kafeer, restauranter, butikker, strender og golfbaner, tilbyr dette hjemmet den perfekte balansen mellom avslapning og bekvemmelighet.
Enten du leter etter et ferieparadis, en permanent bolig eller en investering i et voksende marked, er denne leiligheten en sjelden mulighet. Len deg tilbake, slapp av og nyt et glass vin med panoramautsikt over havet fra din private terrasse. Community Mirador Villamartin.
Alle hvitevarer (inkludert induksjonstopp) er i god stand. Gulvvarme i begge bad.
Adkomst/Tomteforhold
Innhold
Standard
Ta kontakt med selger for komplett informasjon
Nærområdet

Costa Blanca Bolig
Annonsene kan være mangelfulle i forhold til lovpålagt opplysningsplikt. Før bindende avtale inngås oppfordres interessenter til å innhente komplett informasjon fra meglerforetaket, selger eller utleier.




































