Bildegalleri

Det koster deg ikke noe å få Spaniamegler1 til å finne din drømmebolig
MÅ SEES! Praktfull ny villa med takterrasse og privat basseng nær golf i La Marquesa (Nøkkelferdig)
Nøkkelinfo
- Beliggenhet
- Ved sjøen
- Boligtype
- Enebolig
- Eieform
- Eier (Selveier)
- Soverom
- 3
- Boligareal
- 433 m²
Fasiliteter
Visning
Om eiendommen
Beliggenhet
STOR OG VAKKER VILLA 50 METER FRA LA MARQUESA GOLFBANE!
Denne vakre villaen, som ligger 50 meter fra La Marquesa golfbane, ligger i tillegg noen få meter fra det kommersielle senteret med butikker, supermarkeder, barer og internasjonale restauranter. Bare 5 minutter fra byen Rojales med alle tjenester og 15 minutter fra de spektakulære strendene i Guardamar del Segura.
Alicante-Elche flyplass ligger 35 minutter unna.
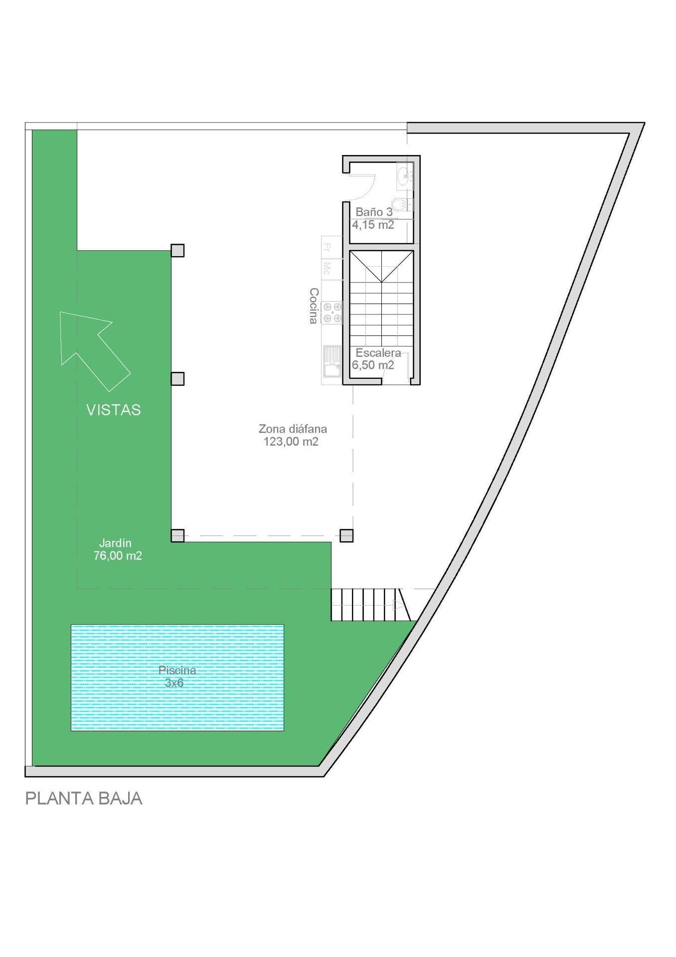
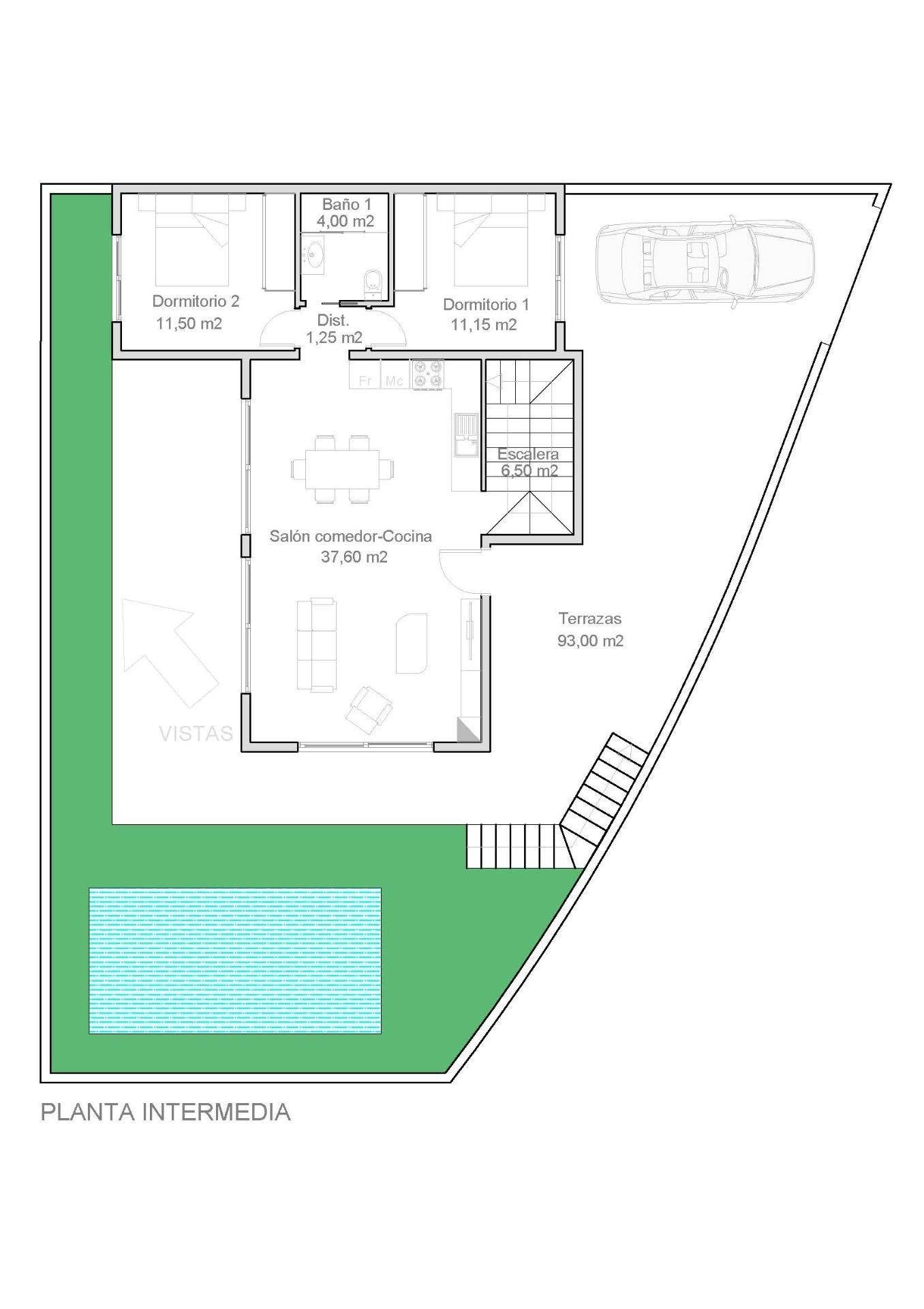
Villaen har 335 m2 tomteareal, 433 m2 bebygd areal fordelt på 3 etasjer, hvorav den ene er en halvkjellergulv på 126 m2. Villaen har 3 soverom og 2 bad. Det 3x6 m store bassenget og de store terrassene i hagen og bassengområdet lar deg nyte solen og Costa Blanca -klimaet hele året. I tillegg har villaen taktarrasse og en stor parkeringsplass.
Bo i en stor moderne villa, og nyt golf, strand, klima og livsstil i Middelhavet!
Generelt
Det er viktig å bruke en megler med tilstedeværelse i Spania, med erfaring og kompetanse, som forutser og løser eventuelle problemer lang tid i forveien, uten at du trenger å ta stilling til dem. Med egne advokater og høy kompetanse i alle ledd, sikrer vi deg som kjøper en problemfri kjøpsprosess.
- Vi er størst på nybygg. Søk blant 1000 nybygg på våre nettsider, med en søkefunksjon som tillater deg å gjøre spesifikke søk. Ikke kast bort tiden, finn alle leiligheter med 3 soverom og takterrasse på noen sekunder.
- Kundeservice med egne ansatte som svarer deg på dine henvendelser angående boligene. Spør oss om tilgjengelighet, plantegninger m.m og få svar raskt!
- Vi bor og jobber i det området du ønsker å kjøpe bolig! Du tjener på å ha en megler som behersker språket, kjenner kulturen og har mulighet til å hjelpe deg med alle uforutsette hendelser deretter!
- Egne advokater som forhandler med utbyggere før vi annonserer deres boliger. Det sikrer at når du som kunde ønsker å kjøpe en bolig gjennom oss, skriver du under på en kjøpskontrakt som ivaretar dine juridiske interesser.
- Egen service-avdeling som sørger for at din bolig er perfekt når du kommer ned første gang. Vi følger opp utbygger for å sikre at boligen leveres etter avtale, deretter inspiserer vi den ved ferdigstillelse og sørger for at utbygger retter opp alle eventuelle feil og mangler.
- Når du kommer nedover for første gang og skal ta i bruk din bolig, kan du senke skuldrene og slappe av. Vi møter deg for å hjelpe deg med TV og Internett og innhenting av tilbud på eventuelle andre tjenester du ønske.
FINANSIERING
Finansiering i euro eller annen valuta kan tilbys inntil 80 % og inntil 10 års avdragsfrihet.
REFERANSER
Sjekk alltid referanser før du kjøper eiendom i Spania.
På vår hjemmeside finner du utfyllende referanser fra noen av våre fornøyde kunder.
UTLEIE
Vi tilbyr profesjonell utleie med stedlig servicekontor som tar seg av de praktiske forhold knyttet til utleie. Dette for at man skal kunne leie ut på en ryddig og profesjonell måte, til beste for både utleier og leietaker.
Ta kontakt med oss for nærmere informasjon.
SIKKERHET
Gjennom vårt kontor er du forsikret for inntil 1 000 000 euro som kan økes etter behov og våre advokater har juridisk spisskompetanse innenfor eiendom og skatt i Spania. De ulike sertifikater og autoriasjoner ved vårt kontor, sikrer deg som kjøper. Les mer om sikkerhet og se våre ulike sertifikater og autorisasjoner under "kjøpsprosess" på Spaniamegler1.no
Finn din drømmebolig på www.SpaniaMegler1.no og bestill visningstur i dag!
Våre kontor i Alicante og Malaga står klare til å hjelpe deg med å finne din drømmebolig!
I Costa Blanca og Costa Calida tilbyr Spaniamegler1 boliger i disse områdene:
Costa Blanca Nord: Aigues, Albir, Alcoy, Alfaz del Pi, Altea, Benidorm, Benissa, Busot, Calpe, Cumbre del Sol, Denia, El Campello, Finestrat, Gandia, Ibi, Javea, Jijona, La Nucia, Moraira, Mutxamel, Oliva, Playa San Juan, Polop, Relleu, Tibi, Villajoyosa,
Costa Blanca Sør: Abanilla, Aguas Nuevas, Algorfa, Alicante, Arenales, Benijofar, Cabo Roig, Campoamor, Ciudad Quesada, Dehesa Campoamor, El Chaparral, El Raso, Elche, Formentera del Segura, Gran Alacant, Guardamar, Hondon de las Nieves, La Florida, La Marina, La Mata, La Zenia, Las Colinas, Los Altos, Los Balcones, Los Dolses, Los Montesinos, Mil Palmeras, Orihuela, Pilar de la Horadada, Playa Flamenca, Punta Prima, Rojales, San Miquel de Salinas, Santa Pola, Torre de la horadada, Torrevieja, Villamartin, Vista Bella Golf
Costa Calida: Aguilas, Alhama, La Manga, Lo Pagan, Lorca, Los Alcazares, Mar de Cristal, Mazarron, Murcia, Playa Honda, San Javier, San Juan de los Terreros, San Pedro del Pinatar, Santiago de la Ribera, Sucina
Spaniamegler1 hjelper deg med å finne riktig område.
Vi er lokalkjent og guider deg langs kysten som en del av vår service. Om du ønsker nærhet til for eksempel golf, strand, natur, turstier, fjell, shopping, promenade, saltsjø, spansk småby eller vannpark vet vi hvor du finner det.
Vi kan tilby deg alle boliger på markedet, uansett om du leter etter nybygg eller bruktbolig. Vi kan vise deg alternativer med for eksempel takterrasse, hage, privat basseng, strandnær beliggenhet, landlig beliggenhet eller havutsikt. Vi viser deg alle aktuelle boliger på markedet uansett om du ønsker byleilighet, leilighet i urbanisasjon, rekkehus, enebolig, luksusvilla eller kanskje et landlig småbruk.
Adkomst/Tomteforhold
Innhold
Standard
Ta kontakt med selger for komplett informasjon
Nærområdet
Spaniamegler1 AS
Annonseinformasjon
| FINN-kode | 425666538 |
|---|---|
| Sist endret | 05. sep. 2025 18:37 |
| Referanse | sol-1-1000710-1 |
Annonsene kan være mangelfulle i forhold til lovpålagt opplysningsplikt. Før bindende avtale inngås oppfordres interessenter til å innhente komplett informasjon fra meglerforetaket, selger eller utleier.





























