Bildegalleri

Villa med två lägenheter på charmiga Haga!
Nøkkelinfo
- Beliggenhet
- Innlandet
- Boligtype
- Enebolig
- Eieform
- Eier (Selveier)
- Boligareal
- 108 m²
- Tomteareal
- 376 m²
- Byggeår
- 1909
Fasiliteter
Visning
Ta kontakt for å avtale visning.Om eiendommen
Beskrivning
Välkommen till denna högt belägna fastighet på vackra Haga, som är ett lugnt område med gångavstånd till centrala Arvika. Den charmiga bostadsbyggnaden från 1909 har fantastiska vyer över Kyrkviken och består av två lägenheter med en total boarea om 108 kvm. Det finns många möjligheter med byggnaden, man skulle med enkelhet kunna hyra ut lägenheterna, både som korttids- och långtidsuthyrning. På första plan finns en lägenhet om cirka 63 kvm, den andra lägenheten om cirka 41 kvm är belägen på andra plan och man skulle även kunna bedriva någon typ av verksamhet i någon av lägenheterna eller hyra ut som lokaler. Fastigheten har även en lättskött trädgård samt det finns en förrådsbyggnad och två parkeringsplatser.
För den större familjen finns det dessutom möjlighet att eventuellt ändra planlösningen för att skapa sig ett enfamiljshus. Den barnvänliga omgivningen gör detta till ett perfekt val för familjer som söker trygghet och trivsel. Villan ligger med närhet till skolor, lekplatser och grönområden, vilket ger en bekväm vardag för hela familjen.
Haga är ett mycket populärt område och här erbjuds man det bästa av två världar, lugna och trevliga gator med vackra villor samt endast en kort promenad från Arvika centrum. Så som boende här kan man ta del av ett mycket levande centrum med mysiga butiker, caféer, restauranger och mataffärer samt den vackra stadsparken och ett hjärta för kultur.
Planlösning
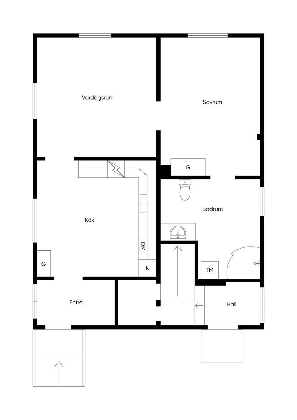
Planlösning - Entreplan
Hall med klinker på golv och tapet på väggarna, här finns garderober.
Kök med laminatgolv och tapet på väggarna, här finns spis, fläkt, diskmaskin och kyl/frys.
Allrum med laminatgolv och tapet på väggarna.
Sovrum med parkettgolv och tapet på väggarna.
Badrum med klinker på golv och kakel på väggarna, här finns toalett, kommod med tvättställ, dusch och tvättmaskin.
Hall med egen entré till den övre lägenheten med klinker på golv och tapet på väggarna.
Planlösning - Andra plan
Kök med laminatgolv och tapet på väggarna, här finns spis, fläkt, diskmaskin och kyl/frys.
Korridor med laminatgolv och målade väggar, här finns förvaringsmöjligheter.
Allrum med laminatgolv och målad strukturtapet på väggarna, här finns utgång till balkong.
Kattvind.
Sovrum med laminatgolv och målad strukturtapet på väggarna.
Kattvind.
Badrum med plastmatta på golv och kakel på väggarna, här finns toalett, handfat och dusch.
Ekonomi
Pris: 1 900 000 kr högstbjudande
Taxeringsvärde: 993 000 kr (fastställt 2024) varav byggnadsvärde 684 000 kr
Typkod för taxeringsvärde: 220, Småhusenhet, bebyggd
Driftkostnad: Fördelas enligt följande
El: 32000 kr
Vatten och avlopp: 9000 kr
Försäkring: 6600 kr
Renhållning: 2000 kr
Sotning: 400 kr
Värdeår: 1929
Pantbrev: Det finns 4 st pantbrev uttaget om sammanlagt 651 750 kr.
Ta kontakt med selger for komplett informasjon
Nyttige lenker
Nærområdet
Svensk Fastighetsförmedling
Annonsene kan være mangelfulle i forhold til lovpålagt opplysningsplikt. Før bindende avtale inngås oppfordres interessenter til å innhente komplett informasjon fra meglerforetaket, selger eller utleier.







































