Bildegalleri

Villa fra 2022 over ett plan med 5 soverom og privat basseng i Elche
Costa Blanca sørNøkkelinfo
- Beliggenhet
- Innlandet
- Boligtype
- Enebolig
- Soverom
- 5
- Primærrom
- 320 m²
- Tomteareal
- 15 869 m²
- Byggeår
- 2022
Fasiliteter
Visning
Ta kontakt for å avtale visning.Om eiendommen
Beliggenhet
Velkommen til dette nybygde hjemmet, ferdigstilt i november 2022.
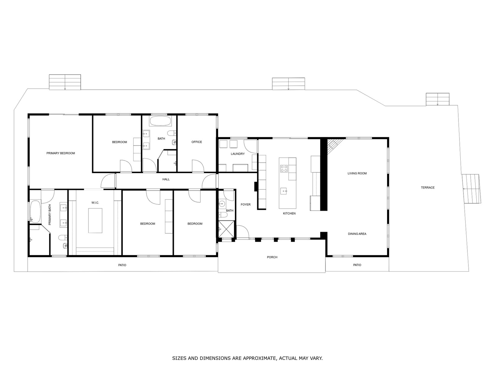
Det har en etasje med en innebygd overflate på 320 kvadratmeter og 5 meter takhøyde.
Eiendommen har en tomt på 17 000 kvadratmeter og er fullstendig inngjerdet. Den har en svært god beliggenhet, like ved motorveien mellom Elche og Santa Pola, bare 4 km fra Santa Pola-stranden og 6 km fra Elche.
Boligen har en 45 kvadratmeter stor stue-spisestue med innebygd peis, koblet til et stort designerkjøkken på 40 kvadratmeter med strykeplass og apparater. Kjøkkenet har en 4 meter stor kjøkkenøy med frokostbar, en vinkjeller med 80 flasker, to skjulte kjøleskap med fryser og Bora induksjonstopper med teppanyaki-grill og kjøkkenvifte. Det er rikelig med lagringsplass, og alle skap og skuffer har LED-innvendig belysning.
Eiendommen har 5 romslige soverom fordelt på en barnestue, et kontor og et treningsstudio, et soverom på 20 kvadratmeter, et soverom på 18 kvadratmeter og et hovedsoverom på 67 kvadratmeter.
Hovedsoverommet har en 20 kvadratmeter stor walk-in-garderobe med LED-belysning og en sentral kjøkkenøy, og har direkte tilgang til hagen og bassenget. Alle soverommene har smart-TV-er.
Boligen har 3 komplette bad med dusj, 1 gjestebad i stuen og 2 bad med boblebad. Alle badene har elektroniske dusjer med displayer for å kontrollere vanntemperatur og -trykk, regndusjhoder og undervannsmusikkanlegg med radio og Bluetooth. Alle 3 badene har gulvvarme i dusjene. Hovedbadet har en stor dobbel dusj med sete.
Når det gjelder fasilitetene, har den klimaanlegg med 10 uavhengige Air Zone-soner, som gir forskjellig temperatur i hvert rom. Den har 3 Mitsubishi-enheter med 30 000 kjøleskap. Alt styres fra 10 fargeskjermer plassert over hele huset og i hvert rom. Den kan også styres fra mobiltelefonen din.
Huset har også gulvvarme med gasskjele og Air Zone, og hvert rom kan stilles inn til en spesifikk temperatur. Den kan styres fra mobiltelefonen din.
Huset har et Zhender-styrt mekanisk ventilasjonssystem (CMV) som flytter 300 kubikkmeter luft i timen, noe som sikrer at huset alltid er godt ventilert, forurenset luft og lukt fjernes fra interiøret og frisk, filtrert luft med samme temperatur fra utsiden. Dette betyr at vinduene aldri trenger å åpnes for å ventilere huset.
Eiendommen har en 6000 kvadratmeter stor hage med palmer og oliventrær, 3200 kvadratmeter naturlig gressplen med en automatisk robotgressklipper, et 8x3 meter stort basseng med en naturlig foss og en 20 kvadratmeter stor pergola.
Huset vender mot sørøst og har 23 doble sikkerhetsvinduer med fire ruter (4+4 og 6+6) og et argongasskammer.
Huset har utmerket akustisk og termisk isolasjon, takket være et ventilert tak og et tak av polyuretanskum og steinull. Det har doble vegger av termoleire og murstein, med 600 mm steinull mellom veggene. Det har energimerke A+++, noe som betyr betydelige energibesparelser både vinter og sommer.
Alle persienner er motoriserte av Cherubini og kan styres fra en mobiltelefon.
Boligen har alarm og flere perimetersensorer, både inne og ute, som styres fra en mobiltelefon.
Det har også 10 overvåkingskameraer ute, som kan styres fra en mobiltelefon.
For mer informasjon, eller for å avtale en visning, kontakt oss i dag!
Ta kontakt med selger for komplett informasjon
Nærområdet

Costa Blanca Bolig
Annonseinformasjon
| FINN-kode | 418008163 |
|---|---|
| Sist endret | 24. juli 2025 12:43 |
| Referanse | MM-004309 |
Annonsene kan være mangelfulle i forhold til lovpålagt opplysningsplikt. Før bindende avtale inngås oppfordres interessenter til å innhente komplett informasjon fra meglerforetaket, selger eller utleier.








































































