Bildegalleri

Drømmevilla med panoramautsikt og privat basseng - Perfekt som feriebolig og utleieinvestering
Nøkkelinfo
- Beliggenhet
- Ved sjøen
- Boligtype
- Enebolig
- Soverom
- 3
- Bruksareal
- 125 m²
- Tomteareal
- 545 m² (eiet)
Fasiliteter
Visning
Om eiendommen
Beliggenhet
Velkommen til Fuengirola – en sjarmerende kystby på Costa del Sol som kombinerer spansk sjel med moderne komfort. Her finner du gyldne sandstrender, livlige restauranter, sjarmerende gater og et behagelig klima året rundt. Fuengirola er kjent for sitt allsidige tilbud, enten du søker et aktivt liv med sport og uteliv eller ro og avslapning i solen.
I bydelen Torreblanca, som ligger i en roligere og mer eksklusiv del av Fuengirola, finner du et veletablert bomiljø med nærhet til alt du måtte ønske – samtidig som du nyter fred, vakker utsikt og privatliv.
Generelt
Fullrenovert perle med utsikt over Middelhavet – frittstående villa med 3 soverom, 5 bad og privat basseng
Drømmer du om en elegant villa på Costa del Sol? Denne vakkert renoverte 3-soveroms villaen i Torreblanca tilbyr den perfekte kombinasjonen av stil, funksjonalitet og avslappet luksus. Med hele 545 m² tomt, privat basseng, panoramautsikt over havet, og en innvendig bruksflate på 125 m², er dette en sjelden mulighet for deg som ønsker en innflyttingsklar bolig med høy standard.
Høydepunkter:
3 romslige soverom, alle med moderne en-suite bad
5 bad totalt – optimal komfort for både beboere og gjester
Privat svømmebasseng og solrik hage
Panoramautsikt over Middelhavet fra både stue, terrasse og takterrasse
Fullt renovert – moderne og stilren design
Oppvarmede gulv i stue for ekstra komfort
Takterrasse/solarium – perfekt sted for sol, utsikt og avslapning
Egen inngang og privat parkering rett foran huset
Turistlisens – ideell også som utleieobjekt
Rolig og tilbaketrukket beliggenhet, men gangavstand til strand, togstasjon, tennis/padel, restauranter og butikker
Godkjent prosjekt for utvidelse – potensiale for ytterligere verdiøkning
Gjennomført planløsning:
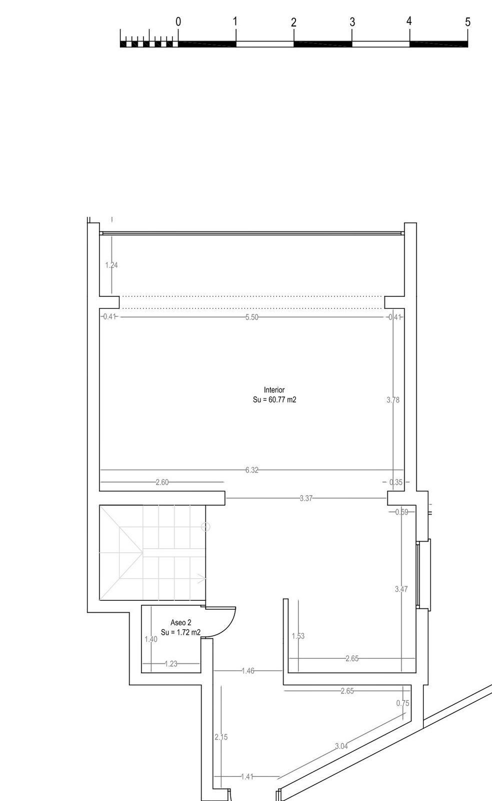
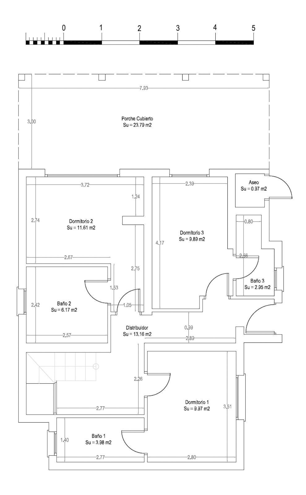
Villaen er fordelt over to etasjer:
Hovedplan: Lys og luftig stue med spektakulær utsikt mot havet. Stuen har store vindusflater som slipper inn naturlig lys, og er et ideelt rom for både avslapning og sosiale sammenkomster. Her finner du også et gjestetoalett og oppvarmet gulv – perfekt for kjøligere vinterkvelder.
Underetasje: Tre romslige soverom, alle med egne moderne bad, som gir en luksuriøs suitefølelse for både deg og dine gjester.
Uteområdet:
Boligen har en nydelig hage med privat svømmebasseng, store solplasser og en egen grillplass – ideelt for hyggelige sommerkvelder og familiesammenkomster. Takterrassen gir deg enda bedre utsikt og et eksklusivt sted å nyte solnedgangen med et glass vin.
Beliggenhet og nærområde:
Villaen ligger i ettertraktede Torreblanca, i en rolig gate med lite trafikk og panoramautsikt som gir en følelse av ro og avskjerming, men samtidig kort gangavstand til:
Stranden (ca. 10 min)
Togstasjonen med direkte forbindelse til Málaga og flyplassen
Tennis- og padelbaner
Restauranter, supermarkeder og andre fasiliteter
Oppsummering:
Dette er en bolig som må oppleves! Enten du ser etter en fast bolig, feriebolig eller investeringsobjekt med høy utleiepotensiale, er denne villaen et trygt og verdifullt valg.
Adkomst/Tomteforhold
Solkysten - Fra drøm til virkelighet
Vi har siden 2016 hjulpet hundrevis av nordmenn med å realisere drømmen om et hjem i solen. Det startet med en enkel idé: å gjøre boligeierskap i Spania så enkelt at drømmen føles uanstrengt. Tid er luksus. Vi gir deg mer av den med Solkystreisen. I dag leverer vi kjøp, salg, utleie og forvaltning. Vi kombinerer lokalt nettverk, markedsinformasjon, moderne teknologi for å gi deg alt du trenger – og litt til. Mer om solkystreisen: solkysten.no/solkystreisen
Innhold
Standard
Ta kontakt med selger for komplett informasjon
Nyttige lenker
Nærområdet
Din Drøm ~ Ditt Hjem ~ Vår Ekspertise
Annonsene kan være mangelfulle i forhold til lovpålagt opplysningsplikt. Før bindende avtale inngås oppfordres interessenter til å innhente komplett informasjon fra meglerforetaket, selger eller utleier.



























