Bildegalleri

San Pedro Del Pinatar - Toppetasje 3 sov/2 bad, takterrasse, felles basseng [VJII-7]
Nøkkelinfo
- Beliggenhet
- Ved sjøen
- Boligtype
- Leilighet
- Eieform
- Eier (Selveier)
- Soverom
- 3
- Boligareal
- 96 m²
- Byggeår
- 2025
Fasiliteter
Visning
Ta kontakt for å avtale visning.Om eiendommen
Beliggenhet
Villas Joblán II ligger i hjertet av San Pedro del Pinatar som er en fungerende spansk by med alle fasiliteter i Murciaregionen på Costa Calida.
En god investering
Området er populært - et trygt og godt valg både for eget bruk og som investering.
Mona og Tom, Wergeland & Partners, har levd og arbeidet med boligformidling og innredning/oppussing i Spania siden 2004. Les her om hvordan vi kan hjelpe deg også.
Generelt
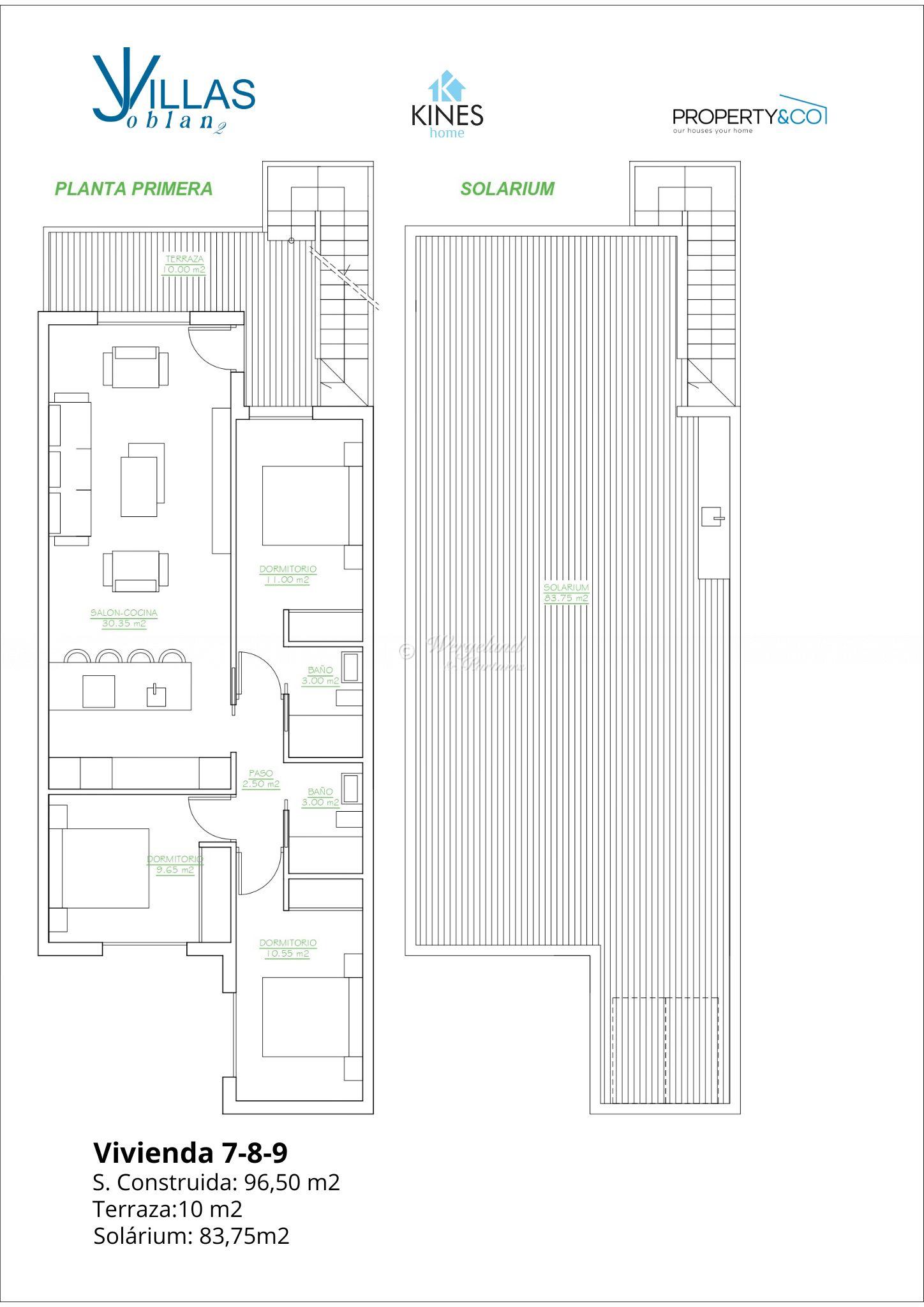
Villas Joblán II er et prosjekt med 10 leiligheter. Velg mellom bakkeplan med patio eller toppetasje (som denne) med takterrasse med sommerkjøkken og preinstallasjon for vaskemaskin og kjøleskap.
Åpen kjøkkenløsning med barbenk mot stue/spisestue. 1 sov/1 bad eller 3 sov/2 bad. Biloppstillingsplass ved prosjektet.
Betalingsbetingelser
6.000€ i reservasjon
25% av kjøpsprisen + 10% moms, innen 30 dager
25% av kjøpsprisen + 10% moms, innen 3 mnd.
Resterende ved overtagelse desember 2026
Bankgaranti
Kjøpsomkostninger tilkommer (13-14%).
Vi kan hjelpe til med finansieringstilbud i spansk bank.
Kom å se selv, les om våre private visningsturer her.
Adkomst/Tomteforhold
I hjertet av San Pedro del Pinatar med parker, sportsfasiliteter og flere golfbaner innen kort avstand fra prosjektet. Sykkelavstand til stranden. Denne boligen er en toppetasje med privat takterrasse, nr. 7.
Innhold
- 3 sov/2 bad
- Åpen kjøkkenløsning med barbenk
- Hvitevarer inkl.; kjøleskap/fryser, stekeovn, keramisk kokeplate, avtrekksvifte, mikro, integrert oppvaskmaskin
- Komplette bad med dusjvegger, servantskap og speil
- Garderober i soverommene, med skuffer
- Preinstallasjon for klimaanlegg i konduktorsystem
- LED belysning på fasaden og downlights inne i boligen
- Utvendige, motoriserte persienner i soverommene
- Takterrasse, 84 m2, med sommerkjøkken og preinstallasjon for vaskemaskin og minikjøleskap
- Fellesbasseng
- Biloppstillingsplass ved prosjektet
Umøblert. Wergeland Design hjelper deg gjerne, les mer her.
Standard
Gjennomgående god standard.
Er ikke dette helt det du er på jakt etter - se flere populære områder og prosjekter på wop.no eller spør oss så skal vi få tak i din drømmebolig i Spania.
Ta kontakt med selger for komplett informasjon
Nyttige lenker
Nærområdet
Annonseinformasjon
| FINN-kode | 411063470 |
|---|---|
| Sist endret | 07. okt. 2025 07:54 |
| Referanse | XVJII-7X |
Annonsene kan være mangelfulle i forhold til lovpålagt opplysningsplikt. Før bindende avtale inngås oppfordres interessenter til å innhente komplett informasjon fra meglerforetaket, selger eller utleier.







