Bildegalleri

PRAKTFULL LEILIGHET I FØRSTE ETASJE I SAN MIGUEL DE SALINAS 3 SOVEROM OG 2 BAD PRIVAT HAGE OG BASSENG
San Miguel de Salinas, Costa Blanca sørNøkkelinfo
- Beliggenhet
- Ved sjøen
- Boligtype
- Leilighet
- Eieform
- Eier (Selveier)
- Soverom
- 3
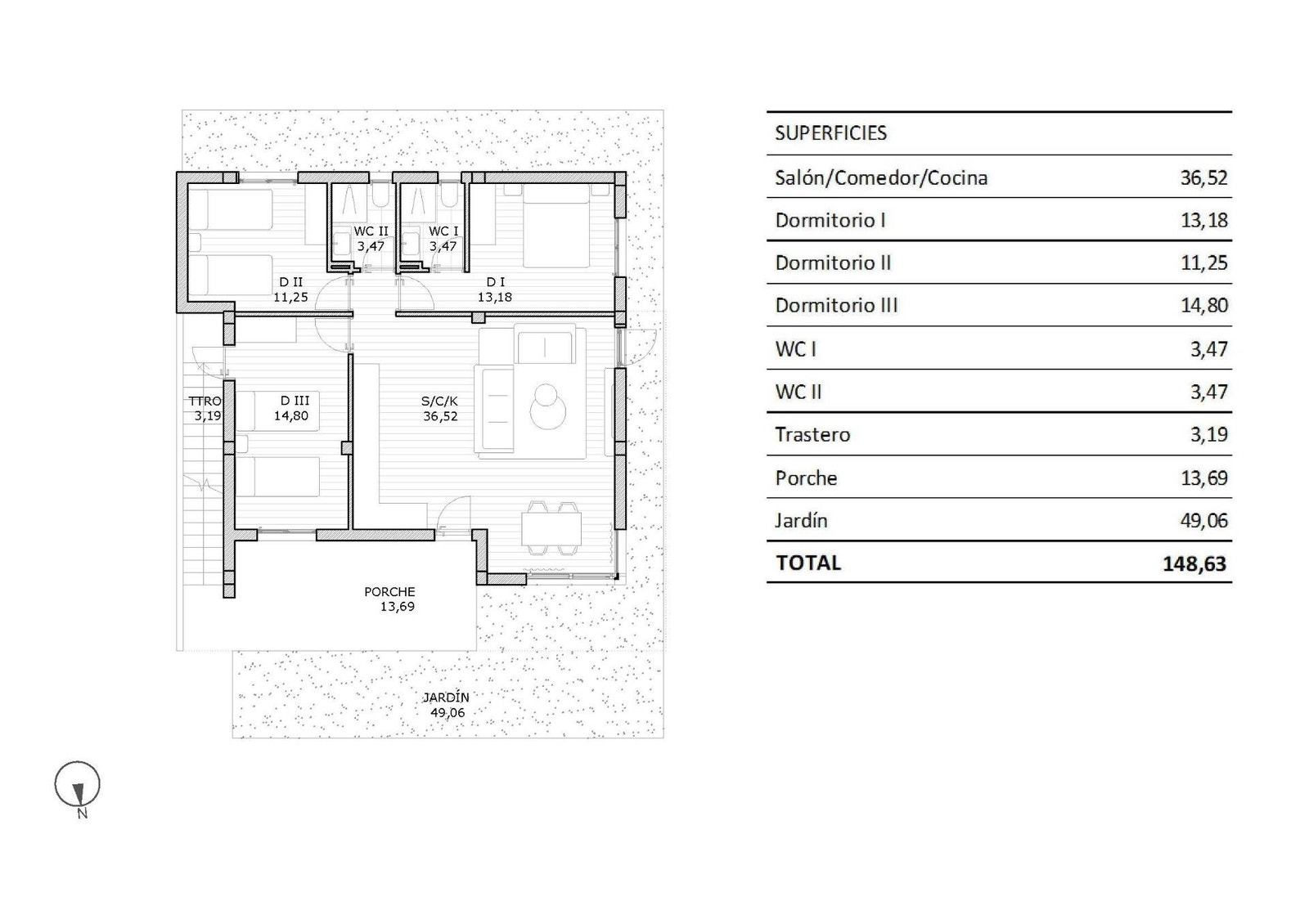
- Boligareal
- 82 m²
- Tomteareal
- 49 m²
- Byggeår
- 2025
Fasiliteter
Visning
Ta kontakt for å avtale visning.Om eiendommen
Beliggenhet
NYBYGGET LEILIGHET I 1. ETASJE I SAN MIGUEL DE SALINAS. Fantastisk 82m2 stor leilighet på bakkeplan i et eksklusivt boligkompleks som tilbyr boliger av høy kvalitet med utmerket termisk og akustisk isolasjon, toppkvalitetsfinish og komplette fasiliteter.
Denne leiligheten består av 3 soverom, 2 bad, åpen planløsning med moderne utstyrt kjøkken med spisestue/stue, privat hage og basseng.
Eiendommen drar også nytte av porselensgulv, effektive rørleggerarbeid og klimaanlegg. Fellesfasilitetene inkluderer to svømmebassenger, store hageområder og godt utformede fellesarealer, som garanterer et komfortabelt og trygt miljø.
Bolig beliggende i San Miguel de Salinas nær golfbanene Las Colinas og Campoamor, kjøpesentre, lagunene Torrevieja og La Mata og sandstrendene i Orihuela Costa.
San Miguel de Salinas er en kommune i Valencia i Spania. Ligger sør i provinsen Alicante, i regionen Vega Baja del Segura nær Murcia-regionen. Alicante flyplass ligger 35 minutters kjøring unna, og Murcias Corvera flyplass ligger ca. 1 times kjøring unna
Ta kontakt med selger for komplett informasjon
Nærområdet
VIASS - Villa International Assistance S.L.
Annonsene kan være mangelfulle i forhold til lovpålagt opplysningsplikt. Før bindende avtale inngås oppfordres interessenter til å innhente komplett informasjon fra meglerforetaket, selger eller utleier.










