Bildegalleri

BARE 60 METER TIL STRANDEN - NYBYGGET VILLA I MODERNE STIL 3 SOVEROM OG 2 BAD NYDELG SJØUTSIKT
La Mata -Torrevieja, Costa Blanca sørNøkkelinfo
- Beliggenhet
- Ved sjøen
- Boligtype
- Enebolig
- Eieform
- Eier (Selveier)
- Soverom
- 4
- Boligareal
- 310 m²
- Tomteareal
- 320 m²
- Byggeår
- 2025
- P-plasser
- 3
Fasiliteter
Visning
Ta kontakt for å avtale visning.Om eiendommen
Beliggenhet
VAKKER MIDDELHAVSVILLA I TORREVIEJA OG KUN 60 METER TIL STRANDEN MED NYDELG HAVUTSIKT.
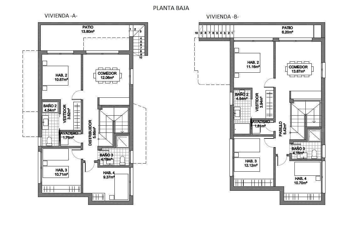
Denne 310m2 villaen er bygget på en tomt på 320m² og består av 4 doble soverom (2 med eget bad), 4 bad, 2 stuer og kjøkken, privat parkering, terrasser på 50m2, solarium på 50m2 med havutsikt og et privat svømmebasseng.
Ligger kun 1 minutt og gå til stranden med direkte havutsikt, i den beste delen av byen Torrevieja - La Mata er et område med en meget godt utviklet infrastruktur.
La Mata er en liten fiskerlandsby med alle nødvendige tjenester for dagliglivet, med 9 km med fine sandstrender og et klima som tilbyr deg 300 soldager i året med en gjennomsnittstemperatur på 20ºC.
Nær byen Torrevieja som er kjent for sin flotte promenade, restauranter, ukentlige fredagsmarked og Habaneras kjøpesenter.
Den har et bredt spekter av kultur- og fritidsaktiviteter hele året.
Bare 20 minutters kjøring ligger "La Zenia Boulevard", det største kjøpesenteret i Alicante-regionen, det er en one-stop-destinasjon for klær, sko og generelle forsyninger. Uansett hva du er ute etter, er sjansen stor for at du ikke går tomhendt ut.
I tillegg til de opprinnelige etablerte golfbanene på Orihuela Costa Villamartin, Las Ramblas, Real Campoamor og Las Colinas, er Torrevieja-området nå også godt betjent med utmerkede baner som La Finca, La Marquesa, Las Colinas, Lo Romero og Vistabella som tilbyr forskjellige golfopplevelser med en rekke hav- og fjellutsikt.
La Mata er forbundet med buss med Torrevieja og Alicante. Det er 2 sykehus i nærheten. Golfbaner 6 km. Alicante flyplass 42 km.
Ta kontakt med selger for komplett informasjon
Nærområdet
VIASS - Villa International Assistance S.L.
Annonsene kan være mangelfulle i forhold til lovpålagt opplysningsplikt. Før bindende avtale inngås oppfordres interessenter til å innhente komplett informasjon fra meglerforetaket, selger eller utleier.




















