Bildegalleri

Leiligheter med 3 soverom 2 km fra stranden
Nøkkelinfo
- Beliggenhet
- Ved sjøen
- Boligtype
- Leilighet
- Eieform
- Eier (Selveier)
- Soverom
- 3
- Bruttoareal
- 100 m²
Fasiliteter
Visning
Om eiendommen
Beliggenhet
Lo Monte Selection er et nytt boligkompleks i Pilar de la Horadada, en privilegert beliggenhet på Costa Blanca. Kun 2 km fra stranden tilbyr dette prosjektet et bredt utvalg av eiendommer med 3 soverom og 2 bad.
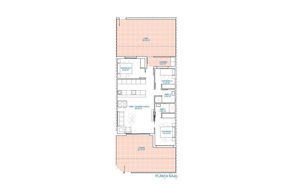
Disse leilighetene består av tre soverom (med garderober), to bad, fullt utstyrt moderne kjøkken (med frokostbar og inkludert hvitevarer) og stue/spisestue med åpen planløsning, som fører til enten en romslig hage (leiligheter på bakkeplan), stor terrasse (leiligheter i første etasje) eller privat takterrasse med sommerkjøkken (leiligheter i øverste etasje). Hver eiendom selges inkludert parkeringsplass.
Utbyggingen har romslige fellesarealer, inkludert et felles svømmebasseng, hageanlegg og et lekeområde for barn, ideelt for hele familien.
Pilar de la Horadada er en kystby på den sørlige enden av Costa Blanca, med et eksepsjonelt klima og en utmerket livskvalitet. Den livlige hovedgaten tilbyr et bredt utvalg av butikker, supermarkeder, restauranter og viktige tjenester.
Bare en 5-minutters kjøretur unna finner du de fantastiske strendene i Torre de la Horadada og Mil Palmeras, med gyllen sand og en nydelig promenade. I tillegg har området sykkelstier, turstier og flere sportsaktiviteter. Innen 15 minutter fra Torre de la Horadada ligger en rekke mesterskapsgolfbaner, inkludert Lo Romero, Roda Golf, Las Colinas Golf & Country Club, Campoamor Club de Golf, Villamartin Club de Golf og Las Ramblas Club de Golf. Byen har gode forbindelser via motorveiene N-332 og AP-7, og ligger kun en 50-minutters kjøretur fra Alicante lufthavn og en 40-minutters kjøretur fra Corvera lufthavn.
Generelt
Eurobolig og Spanialiv har siden 2001 formidlet flere hundre flotte eiendommer til skandinaviske kunder. For å yte ennå bedre service har vi nå slått oss sammen, og kan for øyeblikket tilby over 3000 boliger, både nye og brukte. Vi har et stort utvalg av boliger for salg langs hele Costa Blanca, Costa Calida og på Costa del Sol, i alle prisklasser.
Vårt kontor i Spania, MASA International ble startet i 1981 og har vokst fra den spede starten som en liten lokal eiendomsmegler til en solid internasjonal organisasjon som den er i dag, uten å miste den spesielle “familiefølelsen” som våre kunder fortsatt finner beroligende.
Vi har frem til i dag hjulpet over 36.000 familier med å realisere sine drømmer om egen bolig i Spania. Se hele vårt utvalg på våre web sider.
Vi er med rette stolte av vårt rykte som et av Europas ledende eiendomsmegler selskaper og har alltid vært stolte av at vi alltid markedsfører de boligene som gir mest valutta for pengene og har et stort utvalg av boliger for salg.
Vi samarbeider også med de fleste lokale meglerne i området, og kan derfor tilby det meste av objekter som ligger for salg.
Visningsturer
Vi arrangerer visningsturer til Spania nesten hver uke hele året. Våre turer varer i opptil 4 dager, og man betaler kun en egenandel på fra kr.1.990,- pr. person. Inkludert i denne prisen er da flybilletter, hotell i Spania, måltider på turen samt all transport og omvisning i Spania med skandinavisk rådgiver.
Alle våre kunder blir hjulpet individuelt og man blir ikke plassert i grupper sammen med andre, noe som gjør at man får bedre tid på de forskjellige visningene, og er mer fleksibel mht. planlagt program.
Dersom dere skal til Spania på egen hånd og ønsker å bruke noen dager sammen med oss for å se på noen av de boligene som vi kan levere, ordner vi selvsagt også det. Vi avtaler på forhånd tidspunkter, og kan også stå for innkvartering på hotell i den tiden dere er sammen med oss. Ta kontakt for å gjøre en avtale.
Dersom man ønsker å reservere en bolig hjemmefra kan vi ordne med alle nødvendige dokumenter og sørge for at man får kjøpt seg den boligen man ønsker seg.
Adkomst/Tomteforhold
Enkel adkomst fra motorveien eller kystveien N-332.
Trygghet ved kjøp.
Når du bruker så mange penger på en bolig i utlandet, er det svært viktig å velge en profesjonell og etisk organisasjon som tar seg av dine interesser på en hederlig måte.
Vårt kontor i Spania er en av få eiendomsselskaper på Costa Blanca som har blitt autorisert med ISO 9001 status, som betyr at du har fordeler av at vi har forpliktet oss til å gi våre kunder førsteklasses service.
Om du skulle ha begrenset med muligheter for å reise ned hit for å se prospekter med egne øyne, er vi selvfølgelig behjelpelig med oppdatert informasjon, nye bilder, video visninger, etc. om ønskelig!
Innhold
3 soverom og 2 bad, terrasser 29 m2
Inkl. hvitevarer, pre-installert A/C, felles basseng, heis, parkering i underetg.
Penthouse 349 900€
Ferdigstilles okt-2026
På alle priser må tillegges spanske avgifter ca. 13-14%.
Standard
Ta kontakt med selger for komplett informasjon
Nyttige lenker
Nærområdet
Masa International
Annonseinformasjon
| FINN-kode | 396565211 |
|---|---|
| Sist endret | 06. mars 2025 09:40 |
| Referanse | Lo Monte |
Annonsene kan være mangelfulle i forhold til lovpålagt opplysningsplikt. Før bindende avtale inngås oppfordres interessenter til å innhente komplett informasjon fra meglerforetaket, selger eller utleier.



























