Bildegalleri

Villa ved La Mata stranden, flytt rett inn!
Nøkkelinfo
- Beliggenhet
- Ved sjøen
- Boligtype
- Enebolig
- Eieform
- Eier (Selveier)
- Soverom
- 4
- Bruttoareal
- 210 m²
Fasiliteter
Visning
Om eiendommen
Beliggenhet
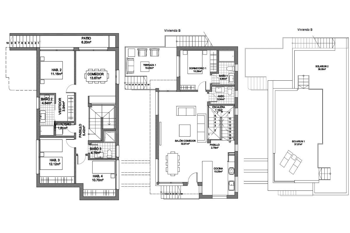
Residencial Paraíso de la Mata tilbyr 2 frittstående villaer med 4 soverom, hver med en tomt på 320 m² og et privat basseng, kun 1 minutts gange fra stranden.
Det totale bygget arealet er 210m² og 100m² med terrasser. Huset er omgitt av en vakker uteplass, det har et privat svømmebasseng utstyrt med et varmesystem og fullt installert utvendig belysning, samt parkeringsplass.
Denne villaen har 4 soverom, hvorav 2 har eget bad, 4 bad, 2 salonger, et fullt utstyrt kjøkken, samt terrasser og et solarium for å nyte panoramautsikten til sjøen.
Huset kan skilte med førsteklasses kvaliteter og finish, som inkluderer gulvvarme på alle bad og seng, sentralisert klimaanlegg per etasje, samt et Smart Home-system for hjemmeautomatisering fra telefonen.
Residencial Paraíso de la Mata ligger 1 minutts gange fra stranden, i den beste delen av byen La Mata. Det har panoramautsikt til havet og tilbyr alle tjenester og fasiliteter til en by, og komforten ved å bo i et kystferiested, med en vakker promenade og mange strandbarer, et sted som tiltrekker seg mange nasjonale og internasjonale turister.
Generelt
Eurobolig og Spanialiv har siden 2001 formidlet flere hundre flotte eiendommer til skandinaviske kunder. For å yte ennå bedre service har vi nå slått oss sammen, og kan for øyeblikket tilby over 3000 boliger, både nye og brukte. Vi har et stort utvalg av boliger for salg langs hele Costa Blanca, Costa Calida og på Costa del Sol, i alle prisklasser.
Vårt kontor i Spania, MASA International ble startet i 1981 og har vokst fra den spede starten som en liten lokal eiendomsmegler til en solid internasjonal organisasjon som den er i dag, uten å miste den spesielle “familiefølelsen” som våre kunder fortsatt finner beroligende.
Vi har frem til i dag hjulpet over 36.000 familier med å realisere sine drømmer om egen bolig i Spania. Se hele vårt utvalg på våre web sider.
Vi er med rette stolte av vårt rykte som et av Europas ledende eiendomsmegler selskaper og har alltid vært stolte av at vi alltid markedsfører de boligene som gir mest valutta for pengene og har et stort utvalg av boliger for salg.
Vi samarbeider også med de fleste lokale meglerne i området, og kan derfor tilby det meste av objekter som ligger for salg.
Visningsturer
Vi arrangerer visningsturer til Spania nesten hver uke hele året. Våre turer varer i opptil 4 dager, og man betaler kun en egenandel på fra kr.1.990,- pr. person. Inkludert i denne prisen er da flybilletter, hotell i Spania, måltider på turen samt all transport og omvisning i Spania med skandinavisk rådgiver.
Alle våre kunder blir hjulpet individuelt og man blir ikke plassert i grupper sammen med andre, noe som gjør at man får bedre tid på de forskjellige visningene, og er mer fleksibel mht. planlagt program.
Dersom dere skal til Spania på egen hånd og ønsker å bruke noen dager sammen med oss for å se på noen av de boligene som vi kan levere, ordner vi selvsagt også det. Vi avtaler på forhånd tidspunkter, og kan også stå for innkvartering på hotell i den tiden dere er sammen med oss. Ta kontakt for å gjøre en avtale.
Dersom man ønsker å reservere en bolig hjemmefra kan vi ordne med alle nødvendige dokumenter og sørge for at man får kjøpt seg den boligen man ønsker seg.
Adkomst/Tomteforhold
Enkel adkomst fra motorveien eller kystveien N-332.
Trygghet ved kjøp.
Når du bruker så mange penger på en bolig i utlandet, er det svært viktig å velge en profesjonell og etisk organisasjon som tar seg av dine interesser på en hederlig måte.
Vårt kontor i Spania er en av få eiendomsselskaper på Costa Blanca som har blitt autorisert med ISO 9001 status, som betyr at du har fordeler av at vi har forpliktet oss til å gi våre kunder førsteklasses service.
Om du skulle ha begrenset med muligheter for å reise ned hit for å se prospekter med egne øyne, er vi selvfølgelig behjelpelig med oppdatert informasjon, nye bilder, video visninger, etc. om ønskelig!
Innhold
4 soverom og 3+1 bad, terrasse 15 og 6m2, takterrasse 76m2
installert A/C, privat basseng
På alle priser må tillegges spanske avgifter ca. 13-14%.
Standard
Ta kontakt med selger for komplett informasjon
Nærområdet
Masa International
Annonsene kan være mangelfulle i forhold til lovpålagt opplysningsplikt. Før bindende avtale inngås oppfordres interessenter til å innhente komplett informasjon fra meglerforetaket, selger eller utleier.




























