Bildegalleri

Duved - Rejäl fastighet med restaurang i skidbacken
Lennart Brunnhages väg 25, JämtlandNøkkelinfo
- Beliggenhet
- På fjellet
- Boligtype
- Annet fritid
- Soverom
- 0
Visning
Ta kontakt for å avtale visning.Om eiendommen
Beliggenhet
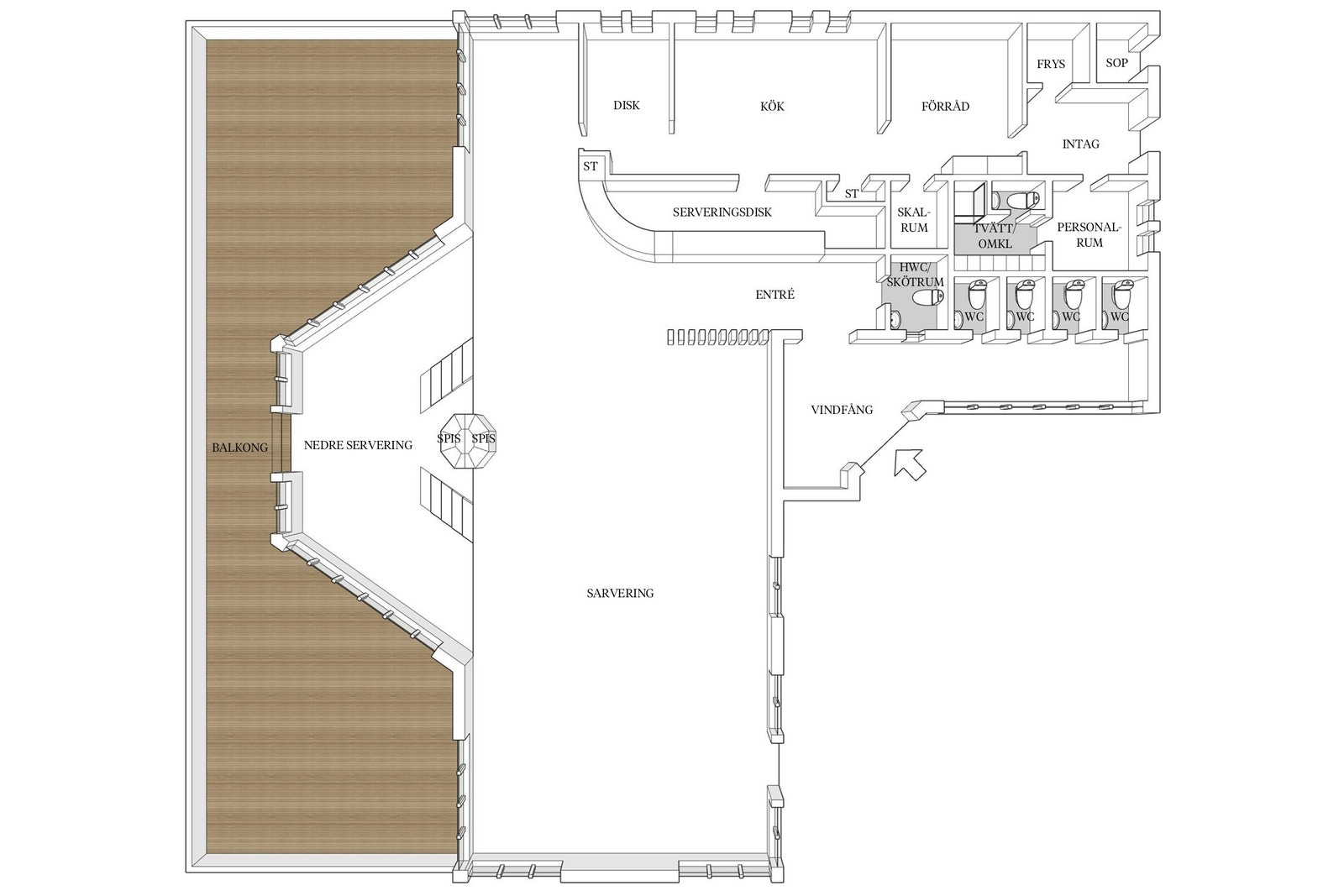
Fastighet med backrestaurang, toppläge mitt i Hamrebacken i Duved. 175 sittplatser inomhus samt ytterligare 100 platser på solveranda.
Generelt
Vid Hamreliftens mellanavstigning ligger denna backrestaurang om ca 500 kvm. 175 sittplatser inne samt ytterligare 100 ute på verandan i söderläge med storslagen utsikt över hela Duvedsområdet.
- Fastigheten är fullt uthyrd, hyreskontrakt med hyresgäst/operatör finns och löper tom 2025-09-01
- Hyresgästen driver en restaurangverksamhet som i huvudsak är öppen under vintersäsong
- Hyresgästen tar samtliga driftskostnader, underhåll och fastighetsskatt
- Kök och samtliga inventarier ägs av hyresgästen
- Hyresintäkt är 390.240:-/år och betalas månadsvis i förskott, upptaxering av hyran sker årsvis med 2.45%
- Det finns en liten lägenhet i bottenplan på huset mot skidbacken.
- Fastigheten säljes obelånad i nytt AB
- All kontakt i samband med försäljningen sker med Bjurfors Åre, Magnus Sandström
- TIDPLAN, Visning och tillträde sker efter överenskommelse
INSTRUKTIONER
Försäljningsprospektet grundar sig på information som erhållits från säljaren samt från andra källor. Ingen garanti lämnas avseende innehållets riktighet.
Säljaren samt Bjurfors Åre friskriver sig uttryckligen från allt ansvar, eventuella fel eller ofullständigheter i prospektet eller i annan information, muntlig eller skriftlig, som tillhandahålls intressent till fastigheten.
Köpare av fastigheter har en långtgående undersökningsplikt. Spekulanter uppmanas därför att inför ett eventuellt förvärv noggrant utföra sin undersökningsplikt avseende fastighetens skick och övriga frågor som är av vikt för spekulanten.
Mottagare av prospektet förbinder sig att endast använda den för detta ändamål och inte kopiera eller delge den till andra
utan skriftligt tillstånd. Säljaren förbehåller sig rätten att avböja bud, avsluta pågående förhandlings- eller försäljningsprocess eller ändra ovan angivna riktlinjer utan att ange skäl för detta.
FÖRSÄLJNINGSPROCESSEN
Potentiella köpare inbjuds härmed, på basis av detta prospekt, att lämna indikativa bud på fastigheten. Buden ska anges med hänsyn tagen till eventuell latent skatteskuld.
Försäljningen kommer att genomföras som en bolagsaffär i vilket aktierna i de bolag som äger fastigheten överlåtes.
Inga finansieringsvillkor medges. Köparen står för egna förvärvskostnader.
10 % av fastighetsvärdet erlägges i form av handpenning på dagen för tecknande av köpekontrakt/aktieöverlåtelseavtal.
Resterande del av köpeskillingen erläggs på tillträdesdagen. Fastigheten och bolaget överlåtes i befintligt skick och ägaren kommer att friskriva sig från allt ansvar för faktiska fel och brister,
rättsliga fel, rådighetsfel och andra fel som ansvar för s k dolda fel.
Spekulanter skall tillsammans med bud även lämna en kortfattad beskrivning av spekulant samt redogöra för tänkt finansieringsstruktur. Möjlig tillträdesdag skall anges. Spekulanter
kommer ges tillfälle att genomföra en såväl teknisk som ekonomisk Due Diligence av fastigheten och bolaget.
Läs mer på mäklarens hemsida: https://www.bjurfors.se/sv/tillsalu/jamtland/are/duved/lennart-brunnhages-vag-25/
Ta kontakt med selger for komplett informasjon
Nærområdet
Bjurfors Åre
Annonsene kan være mangelfulle i forhold til lovpålagt opplysningsplikt. Før bindende avtale inngås oppfordres interessenter til å innhente komplett informasjon fra meglerforetaket, selger eller utleier.







