Bildegalleri
(1/9)
Minihus 45 kvm
Til salgs1 290 000 kr
Beskrivelse
En unik bolig med mye lys
Våre mini - og mikrohus kan leveres med
miljøvennlige materialer.
Boligen har en
bærekraftige konstruksjonen og har store vinduer
og god takhøyde som skaper en lys og luftig
atmosfære.
Våre minimalistisk designede hjem maksimerer
plass og bringer naturen inn, ideelt for dem som
setter pris på smarte, miljøbevisste løsninger.
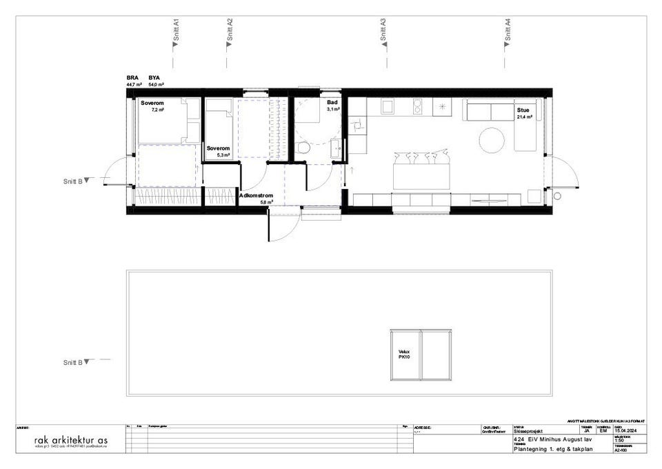
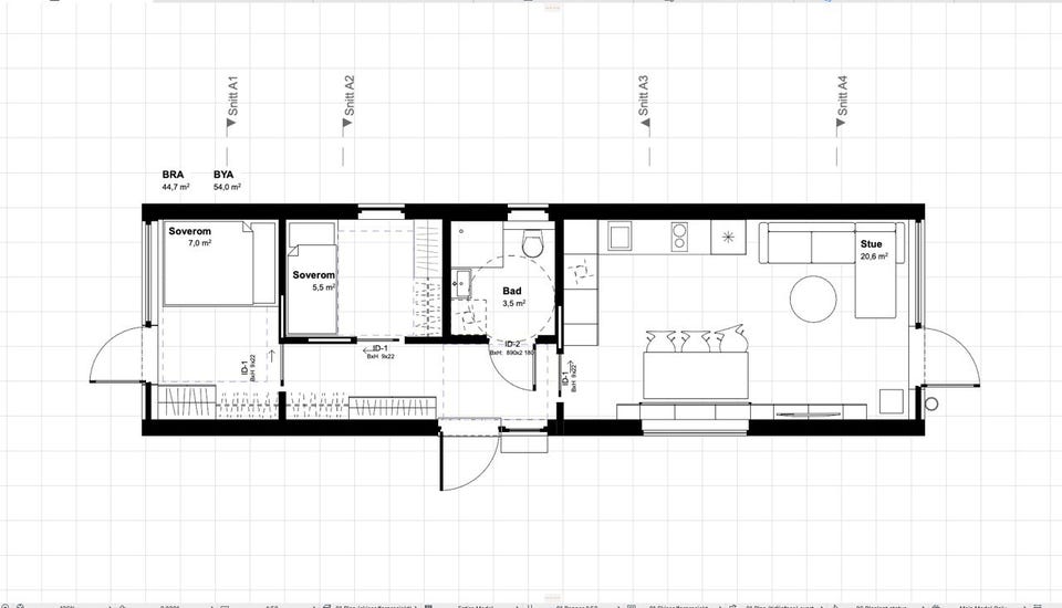
Marie inneholder: kjøkken/stue, 2 soverom,
bad, inngangsparti/gang. Utebod på 5 kvm
Leveres ihht gjeldene TEK 17 krav
Våre mini - og mikrohus kan leveres med
miljøvennlige materialer.
Boligen har en
bærekraftige konstruksjonen og har store vinduer
og god takhøyde som skaper en lys og luftig
atmosfære.
Våre minimalistisk designede hjem maksimerer
plass og bringer naturen inn, ideelt for dem som
setter pris på smarte, miljøbevisste løsninger.
Marie inneholder: kjøkken/stue, 2 soverom,
bad, inngangsparti/gang. Utebod på 5 kvm
Leveres ihht gjeldene TEK 17 krav
NB: Knappen for å vise hele beskrivelsen har kun en visuell effekt.
Nøkkelinfo
- Tilstand
- Ny
Generell info
Kontakt oss
Hvis du ønsker å vite mer om priser og annen informasjon om våre mini og mikrohus, vennligst kontakt oss på pal@eiendomsvekst.no, så sender vi deg alle nødvendige detaljer.
Per Anders Lindstad
97769567
Hvis du ønsker å vite mer om priser og annen informasjon om våre mini og mikrohus, vennligst kontakt oss på pal@eiendomsvekst.no, så sender vi deg alle nødvendige detaljer.
Per Anders Lindstad
97769567
Beliggenhet
| FINN-kode | 378876595 |
|---|---|
| Sist endret | 23.1.2026 kl. 14:18 |













