Bildegalleri
(1/20)
Inaktiv
Trebrakker til salgs. Gjøres enkelt til stor åpen sal.
Til salgs
Beskrivelse
Beskrivelse: Vi selger solide trebrakker produsert i 2012, tidligere benyttet av Sykehusbygg. Disse brakkene er av høy kvalitet og er perfekte for midlertidige kontorer, bolig eller andre prosjekter.
Detaljer:
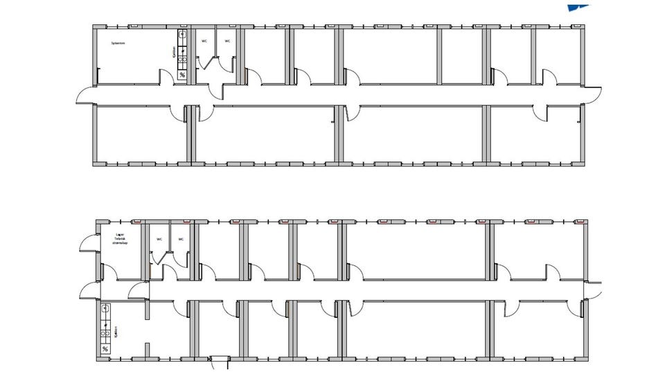
har tidligere vært to store åpne rom. kun lettvegger innvendig som enkelt kan fjernes for å åpne opp.
Type: Trebrakker
Kvalitet: God kvalitet, bygget for langvarig bruk
Ventilasjon: Desentralisert ventilasjon for godt inneklima
Strøm: Sentralt strømskap
Beliggenhet: Drammen
Demontering: Bygget blir demontert i januar 2025. Ny kunde kan gjerne delta i demonteringen, med fratrekk i pris.
Brakkene står i bruk nå og kan besiktiges etter avtale. Ta kontakt for mer informasjon og visning!
Pris: Ta kontakt for pris.
Detaljer:
har tidligere vært to store åpne rom. kun lettvegger innvendig som enkelt kan fjernes for å åpne opp.
Type: Trebrakker
Kvalitet: God kvalitet, bygget for langvarig bruk
Ventilasjon: Desentralisert ventilasjon for godt inneklima
Strøm: Sentralt strømskap
Beliggenhet: Drammen
Demontering: Bygget blir demontert i januar 2025. Ny kunde kan gjerne delta i demonteringen, med fratrekk i pris.
Brakkene står i bruk nå og kan besiktiges etter avtale. Ta kontakt for mer informasjon og visning!
Pris: Ta kontakt for pris.
NB: Knappen for å vise hele beskrivelsen har kun en visuell effekt.
Nøkkelinfo
- Tilstand
- Brukt
Generell info
Kontaktinfo:
Tor Fallstein
46 74 72 07
tor.fallstein@algeco.com
Tor Fallstein
46 74 72 07
tor.fallstein@algeco.com
Beliggenhet
| FINN-kode | 374916420 |
|---|---|
| Sist endret | 23.9.2025 kl. 11:23 |



















