Bildegalleri
(1/29)
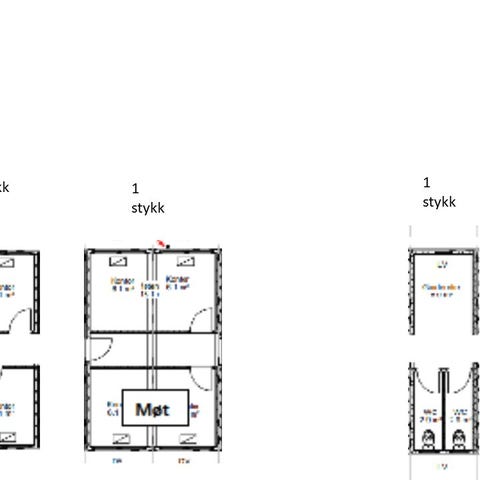
Brakkerigg (10 stk. containere)
Til salgs216 000 kr
Beskrivelse
Brakkerigg selges samlet kr 216 000,- eller hver for seg ved bud
10 stk. containere (3 er doble og 6 er single)
Det er lås og nøkler på alle.
Det er byttet delvis gulv på flere av containerne.
6 av dem er innredet med minikjøkken, toalett og dusj.
Containerne er fra 1999 til 2003.
10 stk. containere (3 er doble og 6 er single)
Det er lås og nøkler på alle.
Det er byttet delvis gulv på flere av containerne.
6 av dem er innredet med minikjøkken, toalett og dusj.
Containerne er fra 1999 til 2003.
NB: Knappen for å vise hele beskrivelsen har kun en visuell effekt.
Nøkkelinfo
- Tilstand
- Brukt
Generell info
Brakkene står i Barliveien 21, Fyllingsdalen
Beliggenhet
| FINN-kode | 180332936 |
|---|---|
| Sist endret | 30.6.2020 kl. 07:48 |




































