Bildegalleri
70 kvm Låvehus som er laget av naturlige byggematerialer
Beskrivelse av varen
Tilstand: Ny
levendeminihus.no
Fullt oversikt over alle „Levende Minihus“ modeller og muligheter. Se vår hjemmeside - levendeminihus.no
Kort om Levende Minihus:
• Kun naturlige byggematerialer
• Komplett OFF-GRID
• Fra 30 m² til 150 m²
• Mulig utvidelse av huset i fremtiden
• Arkitekttegnet minihus
• Nøkkelferdig minihus
• Håndlagde møbler
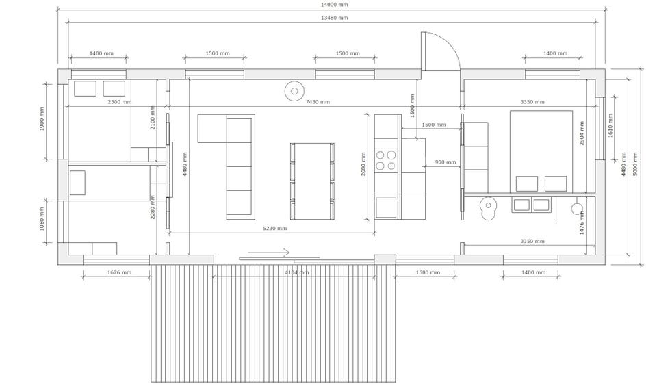
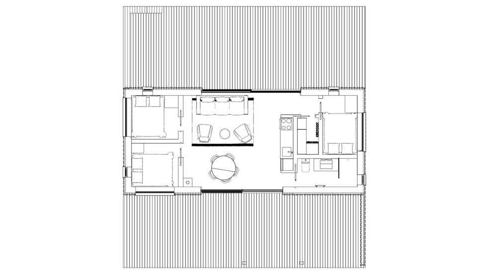
Låvehus - dette er arkitekttegnet hus / nøkkelferdig hus.
BESKRIVELSE:
3 soverom.
1 baderom.
1 walk-in closet.
Stue/kjøkken
BYA kvm: 70,00
BRA kvm: 61,00
Alle priser er i norske kroner og inkluderer mva 25%
Frakt i hele Norge, inkludert i prisen.
Bygg/Montering inkludert i prisen.
Det er helt gratis å gjøre endringer i plan(tegning), vinduenes plassering, størrelse og antall.
NØKKELFERDIG HUS PRIS kr. 997 000 inkl. MVA
1. HOS OSS DU SKAL FÅ:
• Fastprisavtale,
• Nøkkelferdig hus (TEK17). Helårsbolig!
• Hus "100% ferdig" utvendig og innvendig,
• Håndlagde innerdører,
• Samt med el & vvs installasjon,
• Og våtrom.
2. HOS OSS DU KAN VELGE:
• Design,
• Størrelse,
• Plantegning,
• Vinduenes plassering, størrelse og antall,
• Kledningsmaterialer (røde sedertre - pristillegg),
• Farger, strukturer, overflatebehandling.
3. ISOLASJONSTYKKELSE:
• Standard:
gulv 250mm U-verdi 0,15 W/(m2 K)
vegg 250mm, U-verdi 0,15 W/(m2 K)
tak 350mm, U-verdi 0,12 W/(m2 K)
• Ekstra - pristillegg,
4. HELSEVENNLIGE ISOLASJONSMATERIALER:
• Mineralull - standard
• Trefiber pristillegg,
• Linfiber pristillegg,
• Hampfiber pristillegg,
5. GLASS TIL VINDUENE:
• 3-lags energiglass, U-verdi 0,09 W/(m2 K)
• Solkontrollerende glass - pristillegg,
• Tonet, matt, spesielt - pristillegg.
6. HOS OSS BESTILLES SEPARAT:
• Hvitevarer,
• Varme & kjøle system,
• El & belysning system,
• Wc & dusjarmatur, kjøkkenarmatur,
• Peisen,
• Off-grid toalett, vann & avløpssystemer,
• Off-grid el-system,
• Fundament.
ENDRINGER PÅ HUSET
Du kan velge hva du vil.
Brukerprofil
Bedrift uten avtale
Du må være logget inn for å se brukerprofiler og sende meldinger.
Logg innAnnonsens metadata
Sist endret: 27.7.2023 kl. 11:26 ・ FINN-kode: 273945312






















