Bildegalleri

Hytta ligger fint til på en skrånet tomt med utsikt.
SLOKO - Klassisk fjellhytte på selveiertomt - stille og fredelig beliggenhet med kort vei til skiløyper og fjellturer
- Omkostninger
- 75 990 kr
- Totalpris
- 2 265 990 kr
- Kommunale avg.
- 6 569 kr per år
- Formuesverdi
- 239 505 kr
- Verditakst
- 2 200 000 kr
Nøkkelinfo
- Beliggenhet
- På fjellet
- Boligtype
- Hytte
- Eieform
- Eier (Selveier)
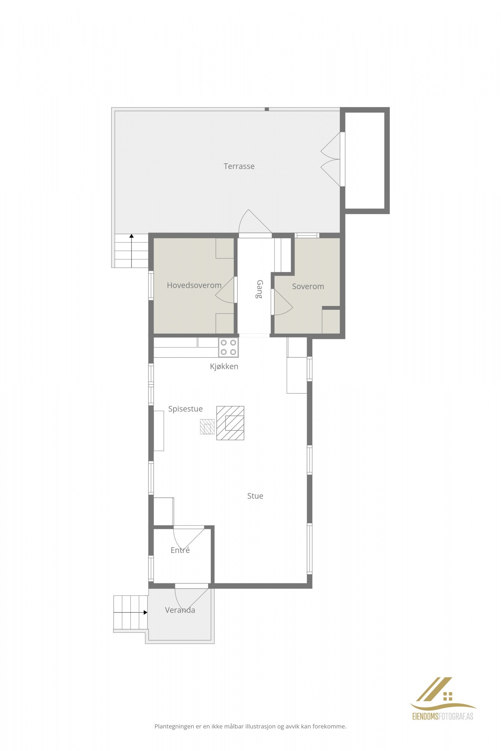
- Internt bruksareal
- 51 m² (BRA-i)
- Bruksareal
- 76 m²
- Eksternt bruksareal
- 25 m² (BRA-e)
- Balkong/Terrasse
- 25 m² (TBA)
- Tomteareal
- 1 430 m² (eiet)
- Byggeår
- 1958
- Soverom
- 2
- Rom
- 3
- Energimerking
- F - Oransje
Fasiliteter
Visning
Ta kontakt for å avtale visning.Husk å lese komplett salgsoppgave før visning. Bestill komplett, utskriftsvennlig salgsoppgave.
VisningspåmeldingOm boligen
Eiendommen ligger fint til ved Sloko ca. 923 moh., i flotte fjellomgivelser mellom Haglebu og Tempelseter.
Selveiertomt på ca. 1 430 m2 - naturtomt med lyng, fjellgrunn og fine solforhold. Åpen utsikt mot nærliggende fjell og flott turterreng rett utenfor døren.
Hytta er oppført i 1958, med tilbygg fra 1971. Oppført i trekonstruksjon på pilarer av betong og Leca direkte på fjell.
Privat boret vann til utvendig post, uthus med dusjrom og utedo, samt flere boder med god lagringsplass. Oppvarming via peis og vedovn, samt strøm.
Skiløyper går like bortenfor hytta, og stien til Haglebunatten starter rett på baksiden. Populær rundtur opp via Slokoskardet og ned sherpatrappene til Haglebu.
Ca. 5,5 km til Haglebu skisenter, fjellstue og butikk.
Ta kontakt med megler for visning
Salgsoppgaven beskriver vesentlig og lovpålagt informasjon om eiendommen
Se komplett salgsoppgaveNyttige lenker
Nærområdet
Dialog Eiendomsmegling AS avd Hønefoss
Annonsene kan være mangelfulle i forhold til lovpålagt opplysningsplikt. Før bindende avtale inngås oppfordres interessenter til å innhente komplett informasjon fra meglerforetaket, selger eller utleier.






































