Bildegalleri

Velkommen til Granmoveien 21 - enebolig i etablert boligområde med nærhet til ny barneskole.
Koselig og sjamerende enebolig med solrik beliggenhet på Loesmoen. Ny barneskole og flott idrettsanlegg like i nærheten.
Nøkkelinfo
- Boligtype
- Enebolig
- Eieform
- Eier (Selveier)
- Soverom
- 4
- Internt bruksareal
- 202 m² (BRA-i)
- Bruksareal
- 202 m²
- Eksternt bruksareal
- 7 m² (BRA-e)
- Balkong/Terrasse
- 48 m² (TBA)
- Byggeår
- 1950
- Tomteareal
- 590 m² (eiet)
Om boligen
Velkommen til Loesmoen og Granmoveien 21.
Eiendommen ligger i etablerte og populære omgivelser på Loesmoen i Hokksund. Fra boligen er det gangavstand til den nye barneskolen som nylig er tatt i bruk. Her finner man også bla. svømmehall og flerbrukshall. Her bor du med det du trenger like i nærheten. I Hokksund finner man et godt utvalg av butikker og det er kort vei til buss- og togstasjon som tar deg i retning Drammen/Oslo og Kongsberg.
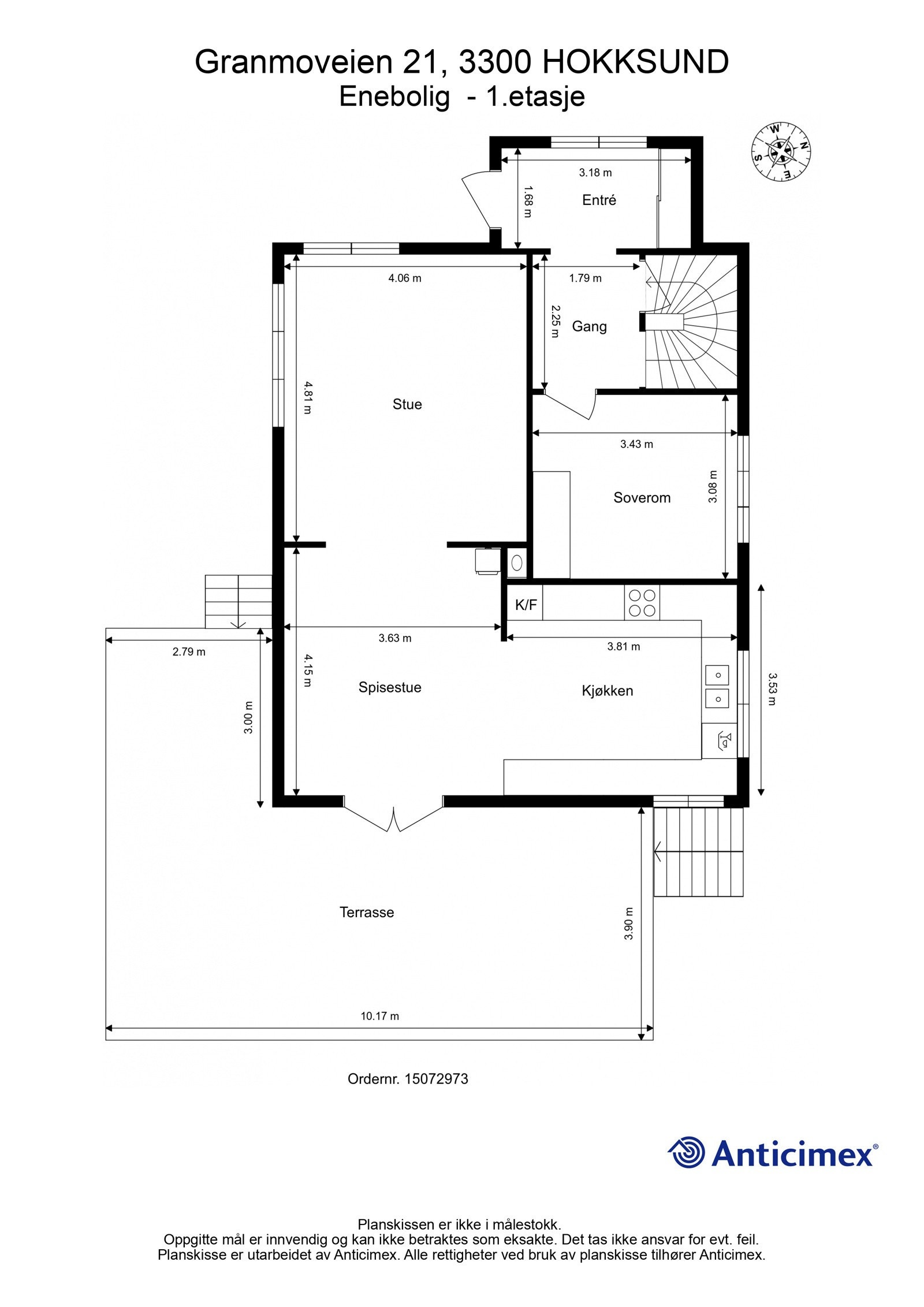
Bolig over tre plan som inneholder:
Kjeller: Gang, bad, vaskerom, innredet rom og bod.
1. etg.: Entré, gang, soverom, stue, spisestue og kjøkken. Utgang til solrik terrasse.
2. etg.: Gang, bad og tre soverom.
Salgsoppgaven beskriver vesentlig og lovpålagt informasjon om eiendommen
Se komplett salgsoppgaveNyttige lenker
Nærområdet
Dialog Eiendomsmegling AS avd Eiker
Annonsene kan være mangelfulle i forhold til lovpålagt opplysningsplikt. Før bindende avtale inngås oppfordres interessenter til å innhente komplett informasjon fra meglerforetaket, selger eller utleier.













































