Bildegalleri

Dialog Eiendomsmegling har gleden av å presentere Uranusveien 131 v/ Ola Laug Bretvik.
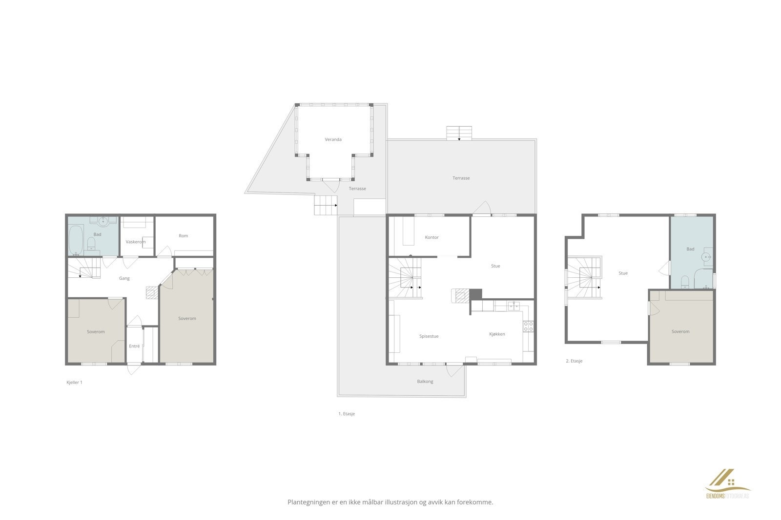
Innholdsrik vertikaldelt tomannsbolig på tre plan med flott utsikt | 2 bad | 4 soverom | Garasje.
Nøkkelinfo
- Boligtype
- Tomannsbolig
- Eieform
- Eier (Selveier)
- Soverom
- 4
- Internt bruksareal
- 169 m² (BRA-i)
- Bruksareal
- 197 m²
- Eksternt bruksareal
- 28 m² (BRA-e)
- Balkong/Terrasse
- 88 m² (TBA)
- Byggeår
- 1989
- Energimerking
- D - Gul
- Tomt
- Festet
- Festeavgift
- 1 688 kr
Fasiliteter
Visning
Om boligen
Velkommen til Uranusveien 131! En romslig og innholdsrik halvpart tomannsbolig med stort potensialet og flott beliggenhet på Stenseth. Boligen har en innbydende entré, 3 soverom i god størrelse med plass til dobbeltseng, nattbord og tilhørende møblement og bra med oppbevaringsplass! Stuen og spisestuen er praktisk sonet slik at man har god plass til en trivelig sofagruppe i stuen, samt spisegruppe i spisestuen. Kjøkkenet er åpent, lyst og har god plass til oppbevaring i skap, samt bra med bankplass. Boligen har et solrikt og romslig uteområdet med balkong som strekker seg rundt boligen til terrassen på baksiden. Begge badene i boligen er flislagt, med varme i gulv og klassisk innredet. Uranusveien 131 er i et etablert boligområdet med nærhet til dagligvare, skole og barnehage.
Salgsoppgaven beskriver vesentlig og lovpålagt informasjon om eiendommen
Se komplett salgsoppgaveNyttige lenker
Nærområdet
Dialog Eiendomsmegling AS
Annonsene kan være mangelfulle i forhold til lovpålagt opplysningsplikt. Før bindende avtale inngås oppfordres interessenter til å innhente komplett informasjon fra meglerforetaket, selger eller utleier.

























































