Bildegalleri

Velkommen til Liljekroken 22 - Koselig enebolig i borettslag beliggende i Åsen i Mjøndalen. Tomt opparbeidet med grus, betongheller, diverse beplantninger, plenareal, terrasse på terreng og diverse støttemurer. Frittstående redskapsbod.
Koselig enebolig i borettslag beliggende i Åsen i Mjøndalen - Flott utsikt - Nærhet til Mjøndalen sentrum.
Nøkkelinfo
- Boligtype
- Enebolig
- Eieform
- Andel
- Soverom
- 3
- Internt bruksareal
- 108 m² (BRA-i)
- Bruksareal
- 139 m²
- Eksternt bruksareal
- 31 m² (BRA-e)
- Balkong/Terrasse
- 35 m² (TBA)
- Byggeår
- 1983
- Tomteareal
- 25 858 m² (eiet)
Fasiliteter
Visning
Om boligen
Eiendommen ligger i det rolige og barnevennlige boligområdet Åsen i Mjøndalen, som ligger i Drammen kommune. Det er godt tilknyttet offentlig transport med kort vei til Mjøndalen sentrum. I nærområdet finner man flere barnehager og skoler, samt fritidsaktiviteter som Vikåsen Idrettslag og Mjøndalen Idrettsforening. Det er også kort vei til flotte turmuligheter i marka og badeplasser som Hagatjern.
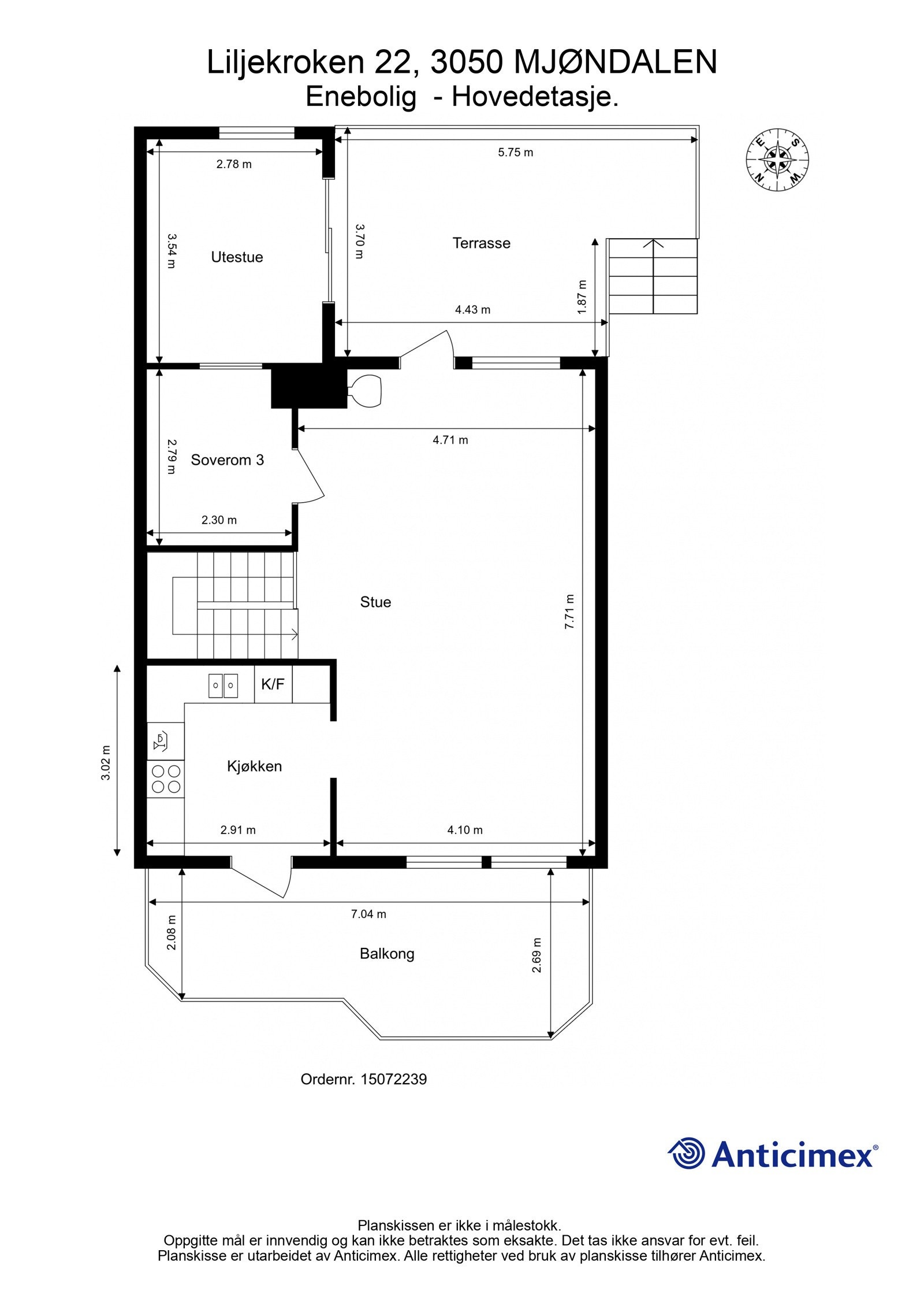
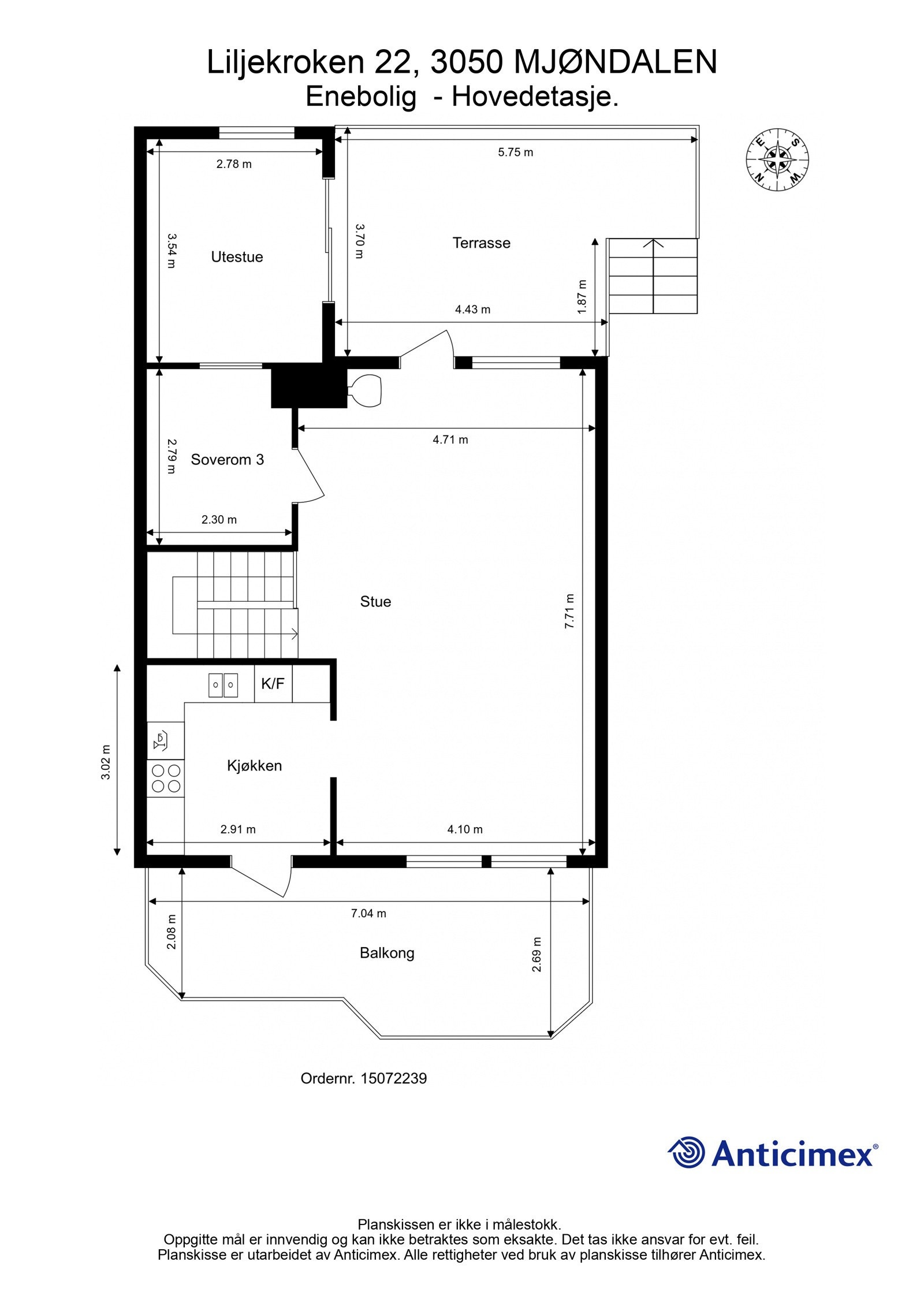
Enebolig over 2 etasjer (samt kaldtloft) bestående av:
Underetasje: Entré, teknisk-rom/bod, gang, to soverom, et bad og toalettrom.
Hovedetasje: Stue, kjøkken og et soverom.
Utgang fra kjøkken til balkong og utgang fra stue til terrasse med en utestue (uisolert).
Velkommen til visning.
Salgsoppgaven beskriver vesentlig og lovpålagt informasjon om eiendommen
Se komplett salgsoppgaveNyttige lenker
Nærområdet
Dialog Eiendomsmegling AS
Annonsene kan være mangelfulle i forhold til lovpålagt opplysningsplikt. Før bindende avtale inngås oppfordres interessenter til å innhente komplett informasjon fra meglerforetaket, selger eller utleier.































