Bildegalleri

Her kan man nyte solen til den går ned over Solbergåsen bak tårnbygningen
Grev Wedel- Delikat toppleilighet i 4. og 5 etg. med 2 terrasser, 2 stuer, 2 soverom og 2 bad. Eksklusive fellesarealer.
Nøkkelinfo
- Boligtype
- Leilighet
- Eieform
- Eier (Selveier)
- Soverom
- 2
- Internt bruksareal
- 117 m² (BRA-i)
- Bruksareal
- 126 m²
- Eksternt bruksareal
- 9 m² (BRA-e)
- Balkong/Terrasse
- 32 m² (TBA)
- Byggeår
- 2018
- Energimerking
- D - Mørkegrønn
- Tomteareal
- 3 894 m² (eiet)
Om boligen
Tiltalende topp- og endeleilighet over to plan. Her får du både takterrasse og takoverbygget balkong med utsikt og sol til den går ned. Gangavstand til det nye sykehuset.
Sameiet er et plusskonsept hvor du har tilgang til 500 kvm smakfulle fellesarealer (trimrom, velværeavdeling, selskapslokaler, gjesterom mm).
Høy standard med bla vannbåren gulvvarme (inkl. i f.utg.), stilrent hvitt HTH kjøkken, integrerte hvitevarer, generøs takhøyde og 1-stavs parkett.
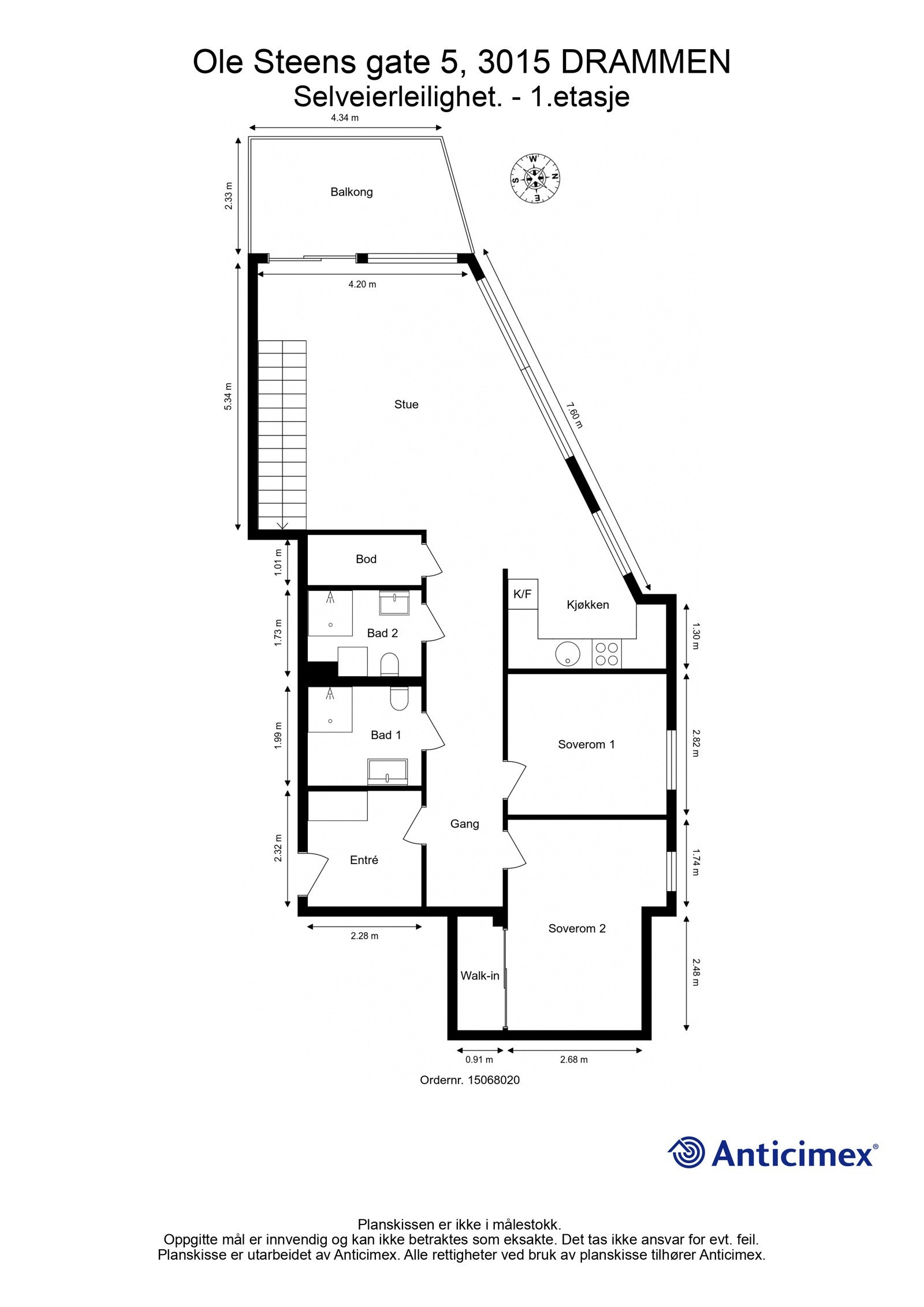
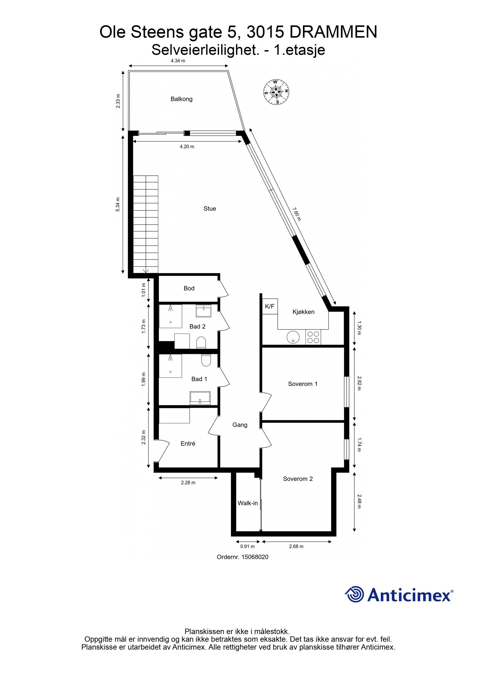
Inneh: Entré, gang, 2 bad, 2 sov, bod/tekn.rom, stue med utgang til overbygget balkong. Fra stuen er det trapp til solstue med kjøkken, toalettrom og utgang til vestvendt takterrasse.
Ekstra stor sportsbod på 9 kvm.
Her bor du i en rolig del av sentrum med nærhet til alt du kan ønske deg. Garasje med ladepkt. Heis.
Salgsoppgaven beskriver vesentlig og lovpålagt informasjon om eiendommen
Se komplett salgsoppgaveNyttige lenker
Nærområdet
Dialog Eiendomsmegling AS avd Drammen
Annonsene kan være mangelfulle i forhold til lovpålagt opplysningsplikt. Før bindende avtale inngås oppfordres interessenter til å innhente komplett informasjon fra meglerforetaket, selger eller utleier.




































































