Bildegalleri

Nyoppusset kjedet enebolig med stor usjenert terrasse og frodig grønn hage som omkranser boligen
Nyoppusset tiltalende kjedet enebolig med alt på ett plan | usjenert hage | nytt bad | nytt tak | blindvei | carport
Nøkkelinfo
- Boligtype
- Enebolig
- Eieform
- Andel
- Soverom
- 2
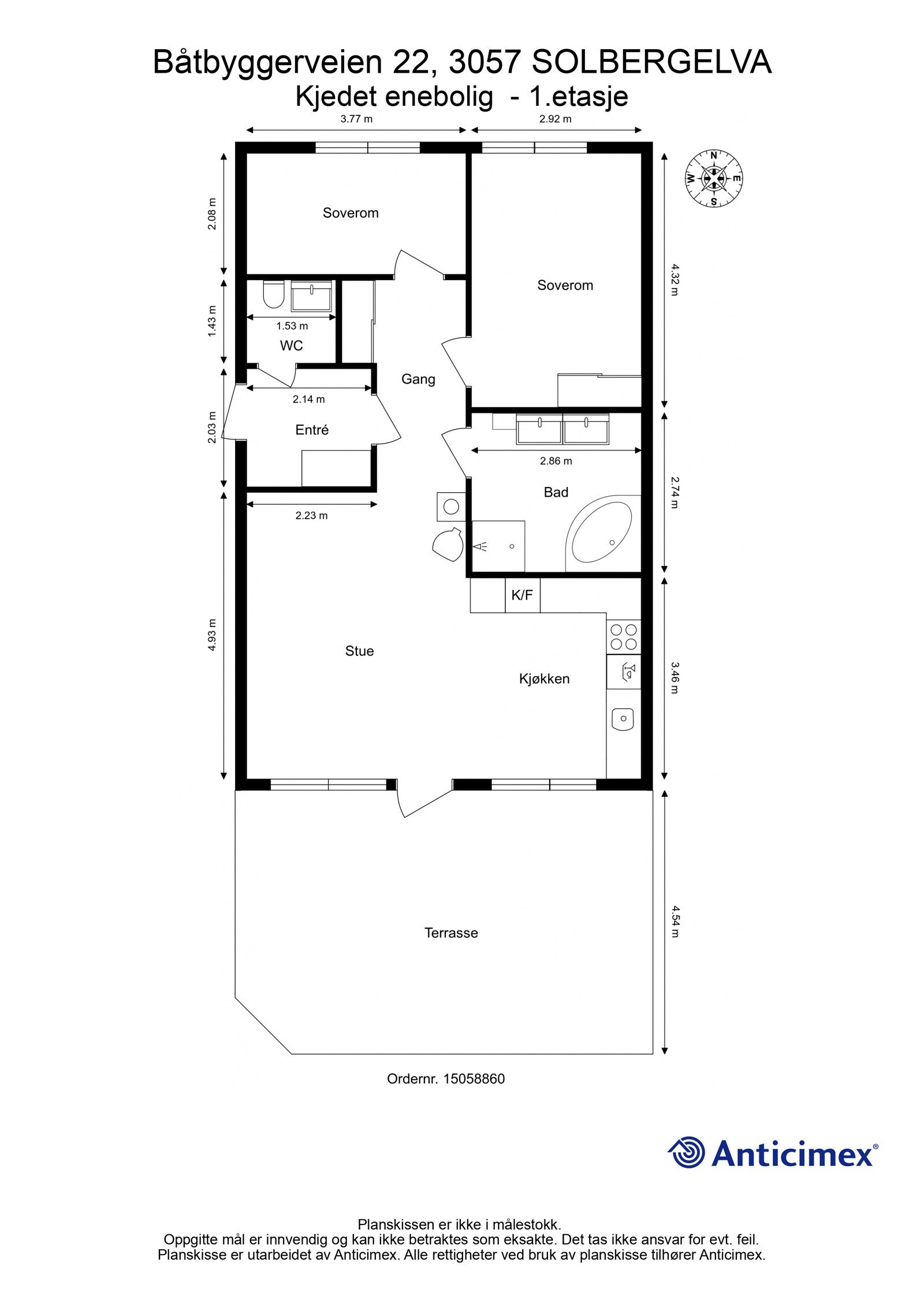
- Internt bruksareal
- 73 m² (BRA-i)
- Bruksareal
- 80 m²
- Eksternt bruksareal
- 7 m² (BRA-e)
- Innglasset balkong
- 73 m² (BRA-b)
- Balkong/Terrasse
- 30 m² (TBA)
- Byggeår
- 1991
- Energimerking
- D - Oransje
- Tomteareal
- 2 380 m² (eiet)
Fasiliteter
Om boligen
Tiltalende nyoppusset og modernisert kjedet enebolig med alt på en flate. Koselig usjenert og lettstelt hage. Delvis overbygget terrasse. Gårdsplass og carport
Etablert, attraktivt barnevennlig miljø på flata i enden av blindvei. Perfekt for barnefamilier eller den som ønsker seg en lettstelt bolig uten trapper i adkomst eller i huset. Kort vei til nærbutikk, buss og skole.
Modernisert de siste årene med blant annet:
- Nyoppusset lekkert flislagt bad med boblekar og dusjnisje
- Fornyet kjøkkeninnredning med Kjøkkenfornyern
- Nyoppusset toalettrom med varmekabler
- Nytt utvendig tak
- Ny varmepumpe
- Leiligheten er malt i tidsriktig fargepalett
Inneh: entré, 2 gode sov, toalettrom, stort bad, stue med spisestue og utgang til terrasse og hage, kjøkken med moderne åpen løsning. Sportsbod
Salgsoppgaven beskriver vesentlig og lovpålagt informasjon om eiendommen
Se komplett salgsoppgaveNyttige lenker
Nærområdet
Dialog Eiendomsmegling AS avd Drammen
Annonsene kan være mangelfulle i forhold til lovpålagt opplysningsplikt. Før bindende avtale inngås oppfordres interessenter til å innhente komplett informasjon fra meglerforetaket, selger eller utleier.
































