Bildegalleri

Legg merke til at den romslige stuen har plass til egen spisekrok. Flere møbleringsmuligheter.
SOLSIDEN - Meget pen og moderne 2-romsleilighet - Flott beliggenhet - Balkong - Takterasse - "ALT" inkludert i fellesko
Nøkkelinfo
- Boligtype
- Leilighet
- Eieform
- Andel
- Soverom
- 1
- Primærrom
- 50 m²
- Bruksareal
- 50 m²
- Etasje
- 5
- Byggeår
- 2005
- Energimerking
- D - Mørkegrønn
- Rom
- 2
- Tomt
- Eiet
Kort om eiendommen:
Meget flott og moderne 2-roms i 5. etg. i Dyre Halses gate 6. Bygget er fra 2005 og leiligheten har en gjennomgående pen standard. Fra stuen har man også utgang til en trivelig balkong.
Eiendommen ligger fint til i et av Trondheims mest populære område - Solsiden, og her har man umiddelbar nærhet til det meste man skulle ønske i hverdagen.
Velkommen til visning!
Innhold:
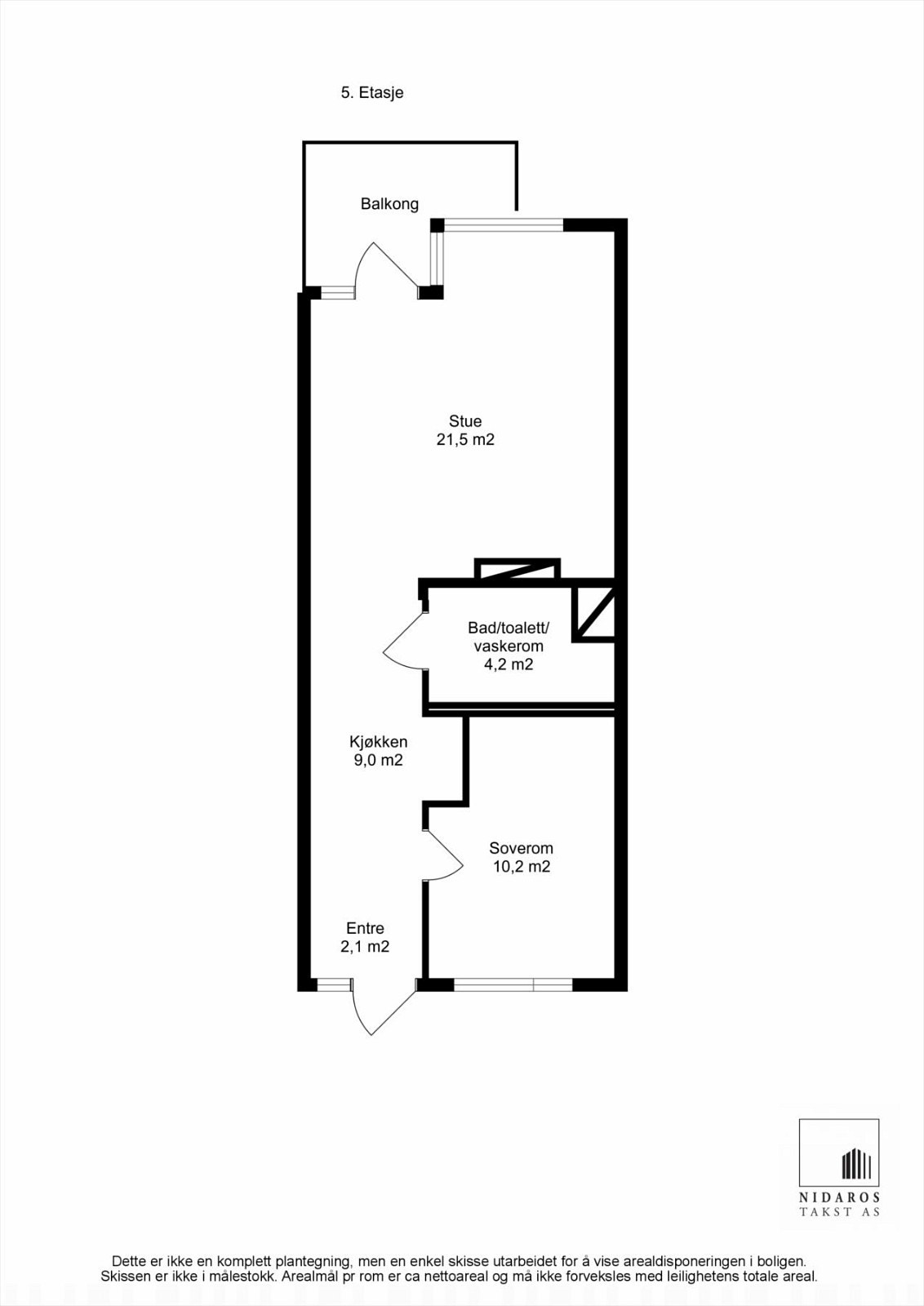
5. etg.
Primærrom:
Entré, kjøkken, bad/toalett/vaskerom, stue og soverom.
Bod i kjeller. Ikke arealmålt.
Standard:
Entré:
Flis på gulv, malte flater på vegger, malt flate i himling.
Kjøkken:
Parkett på gulv, malte flater på vegger, glassplater på vegg over oppvaskbenk og bak platetopp, malt flate og malt betongdekke i himling.
Innredning: Kjøkkeninnredning med over- og underskap, laminerte benkeplater. Ventilator. Sikringsskap.
Integrerte hvitevarer som: Platetopp, stekeovn, oppvaskmaskin og kjøle/fryseskap.
Bad/toalett/vaskerom:
Flis på gulv, flis på vegger, malt flate i himling.
Innredning: Veggmontert WC. Dusjnisje med skyvedør. Dusjgarnityr montert på vegg. Kran og avløp for vaskemaskin. Rørfordeling i himling
Baderomsinnredning: Servant montert på underskap og speil.
Stue:
Parkett på gulv, malte flater på vegger, malt betongdekke i himling.
Soverom:
Parkett på gulv, malte flater på vegger, malt betongdekke i himling.
Innredning: Skyvedørsgarderobe.
Fyring/Oppvarming:
Elektrisk oppvarming og fjernvarme.
Beliggenhet:
Solsiden er en moderne og meget populær bydel i Trondheim sentrum. Området er i dag preget av nyere boligblokker og butikklokaler, men har samtidig en rik historie tilbake til da det var et viktig nærings- og skipsområde i Trondheim. Blant de største aktørene var Trondhjems Mekaniske Værksted (TMV) som drev skipsproduksjon.
Boligprosjektet startet i 1998 da den første blokken sto ferdig, og dette var starten på det som skulle vise seg å bli en av Trondheims mest populære beliggenheter. Området er nå ferdigutviklet og består totalt av 29 boligblokker, hvorav den siste boligblokken ble ferdigstilt i 2013.
Samtidig som at Solsiden er blitt et av Trondheims mest moderne og attraktive boområder, har det også utviklet seg til å bli et særdeles populært område for butikker, restauranter og kafeer. Det hele startet med byggingen av Solsiden kjøpesenter i 1996 og senteret er i dag et naturlig midtpunkt i bydelen. Kjøpesenteret har i dag 60 butikker, med blant annet 13 uterestauranter, vinmonopol og spa. Solsiden har et særegent preg uansett årstid, og byr på et yrende folkeliv under trivelige omgivelser i historiske gjennomførte lokaler.
Som beboer på solsiden kan du nyte godt av et bredt og varierende servicetilbud. I området har en blant annet dagligvarebutikk, klesbutikker, restauranter, kaféer, frisør, helsestasjon, treningssenter og søndagsåpen dagligvare. En har også sentrum med alle sine fasiliteter kun en liten spasertur unna over Blomsterbroen. Meget god offentlig kommunikasjon i området med hyppige bussavganger til byens mange studiesteder, jobbplasser og severdigheter.
Området har siden bolig- og næringsprosjektet ble påbegynt vært et attraktivt og populært område, og på grunn av sin sentrale beliggenhet og moderne stil vil det også være det i framtiden.
Adkomst:
Følg Innherredsveien over Bakke bro ut av sentrumskjernen og forbi Solsiden kjøpesenter, ta til venstre i rundkjøringen og første til høyre inn i Dyre Halses gate . nr. 6 ligger på venstre side ved havnebassenget. Det vil bli skiltet i regi av EiendomsMegler 1 ved annonsert fellesvisning.
Parkering:
Avgiftsparkering i området eller annonserte plasser til leie på oppslagstavler (ordnes privat).
Overtakelse:
Etter nærmere avtale med selger.
Byggemåte:
Bygningen, som er ei boligblokk oppført i 2005, er på 7 etasjer + kjeller.
Hovedkonstruksjon og etasjeskillere er oppført i betong.
Utvendige fasader med teglstein, fasadeplater og panelforblending.
Flat takkonstruksjon tekket med membran.
Vinduer med 2-lags isolerglass.
Lånevilkår:
Fellesgjeld:
Långiver: Nordea Bank ASA
Opprinnelig lånebeløp: 48.270.000,-
Låneår: 2010
Avdragsfrihet:10 år
Løpetid: 35 år
Rentebinding: Nominell fastrente på 4,18 % + bankmargin som per tiden er på
1,25 % i en renteswap-avtale fram til desember 2021. Merk at bankmargin kan endres med to ukers varsel i fastrenteperioden.
Energimerking:
Energimerke D og oppvarmingskarakter GRØNN.
Kjøpsbetingelser:
Avtale om kjøp skjer i henhold til de avtalebetingelser som fremgår av komplett salgsprospekt.
Utleie:
Det er kun en bruksenhet i boligen.
Eierskifteforsikring:
Selger har tegnet eierskifteforsikring. Forsikringen dekker selgers ansvar etter avhendingsloven, kun med unntak av når selger har opptrådt forsettlig eller grovt uaktsomt.
Selger opplyser b.la om dette i egenerklæringsskjemaet:
- Flytting av kjøkken i august 2014. Strinda Rørservice AS.
- Bravida, Flyttin av kjøkken, august 2014 + belysning.
Se vedlagt egenerklæring for mer informasjon.
Regulering
Ta kontakt med megler for komplett informasjon
Nyttige lenker
Nærområdet
EiendomsMegler 1 Trondheim sentrum, Søndre gate
Annonsene kan være mangelfulle i forhold til lovpålagt opplysningsplikt. Før bindende avtale inngås oppfordres interessenter til å innhente komplett informasjon fra meglerforetaket, selger eller utleier.



















