Bildegalleri

Inaktiv
Ålesunds mest spektakulære kontorlokaler til leie - Skansekaia Vest
Nøkkelinfo
- Areal
- 150 - 700 m²
- Kontorplasser
- 450
- P-plasser
- 220
- Byggeår
- 2015
- Overtakelse
- Januar 2016
Type lokale
Kontor
Fasiliteter
Aircondition
Alarm
Bredbåndstilknytning
Felles resepsjon
Garasje/P-plass
Heis
Kantine
Kjøreport
Om eiendommen
Skansekaia er et av Ålesunds mest attraktive og sentrale områder. Virksomheter som etablerer seg her vil være en del av den nye bydelen i Ålesund sentrum. Ca. 700 m2 av kontorarealet er disponibelt for utleie til ett eller flere firma. Farstad Shipping er utleier.
Fleksibel på utleieperiode, men fortrinnsvis minimum 5 år. Leietaker kan leie begge etasjene eller bare én.
Bygget har en utforming som gir stor fleksibilitet og god effektivitet. Lokalene egner seg godt til både cellekontorer og landskapsløsninger. Kvaliteter og fasiliteter kan skreddersys etter ønske. Lokalenes utforming gir mulighet for fremleie til ett eller flere selskaper.
Fra kontoret har man en fantastisk utsikt. Fra Molja i sørvest, til Godøya, Giske i vest og nordvest og videre fra Valderøya i nord til ytre del av Ellingsøya i nordøst.
Prosjektet består av tre bygg på tilsammen 17 500 m2 over bakken og 6 900m2 under bakken. Komplekset inneholder ca. 450 kontorarbeidsplasser samt ca. 220 parkeringsplasser.
Skansekaia blir i hovedsak etablert med solide aktører som Vard Group AS, Kystverket og Volstad Shipping AS. I tillegg vil Ålesund Havnevesen etablere passasjer- og godsterminal. Farstad Shipping ASA skal ha sitt hovedkontor i bygget mot vest, og etablerer seg med ca. 90 ansatte.
Fleksibel på utleieperiode, men fortrinnsvis minimum 5 år. Leietaker kan leie begge etasjene eller bare én.
Bygget har en utforming som gir stor fleksibilitet og god effektivitet. Lokalene egner seg godt til både cellekontorer og landskapsløsninger. Kvaliteter og fasiliteter kan skreddersys etter ønske. Lokalenes utforming gir mulighet for fremleie til ett eller flere selskaper.
Fra kontoret har man en fantastisk utsikt. Fra Molja i sørvest, til Godøya, Giske i vest og nordvest og videre fra Valderøya i nord til ytre del av Ellingsøya i nordøst.
Prosjektet består av tre bygg på tilsammen 17 500 m2 over bakken og 6 900m2 under bakken. Komplekset inneholder ca. 450 kontorarbeidsplasser samt ca. 220 parkeringsplasser.
Skansekaia blir i hovedsak etablert med solide aktører som Vard Group AS, Kystverket og Volstad Shipping AS. I tillegg vil Ålesund Havnevesen etablere passasjer- og godsterminal. Farstad Shipping ASA skal ha sitt hovedkontor i bygget mot vest, og etablerer seg med ca. 90 ansatte.
Beliggenhet
Skansekaia er en del av Ålesund sentrum, beliggende på nordsiden av byen.
Adkomst
Kontorlokalene er lokalisert ca. 200 meter fra taxi- og bussholdeplass for flybuss og lokalbuss til Giske kommune. Hurtigbåtterminal til Hareid og Nordøyene er lokalisert ca. 200 meter fra kontorlokalene.
Øvrige bussforbindelser: ca. 450 meter vestgående og ca. 800 meter østgående.
OFFENTLIG KOMMUNIKASJON
Flybuss: ca. 200 meter
Taxi: ca. 200 meter
Hurtigbåt: ca. 200 meter
Bybuss: ca. 450 / 800 meter
Ekspressbuss: ca. 800 meter
Hurtigruten: ca. 75 meter
Øvrige bussforbindelser: ca. 450 meter vestgående og ca. 800 meter østgående.
OFFENTLIG KOMMUNIKASJON
Flybuss: ca. 200 meter
Taxi: ca. 200 meter
Hurtigbåt: ca. 200 meter
Bybuss: ca. 450 / 800 meter
Ekspressbuss: ca. 800 meter
Hurtigruten: ca. 75 meter
Innhold
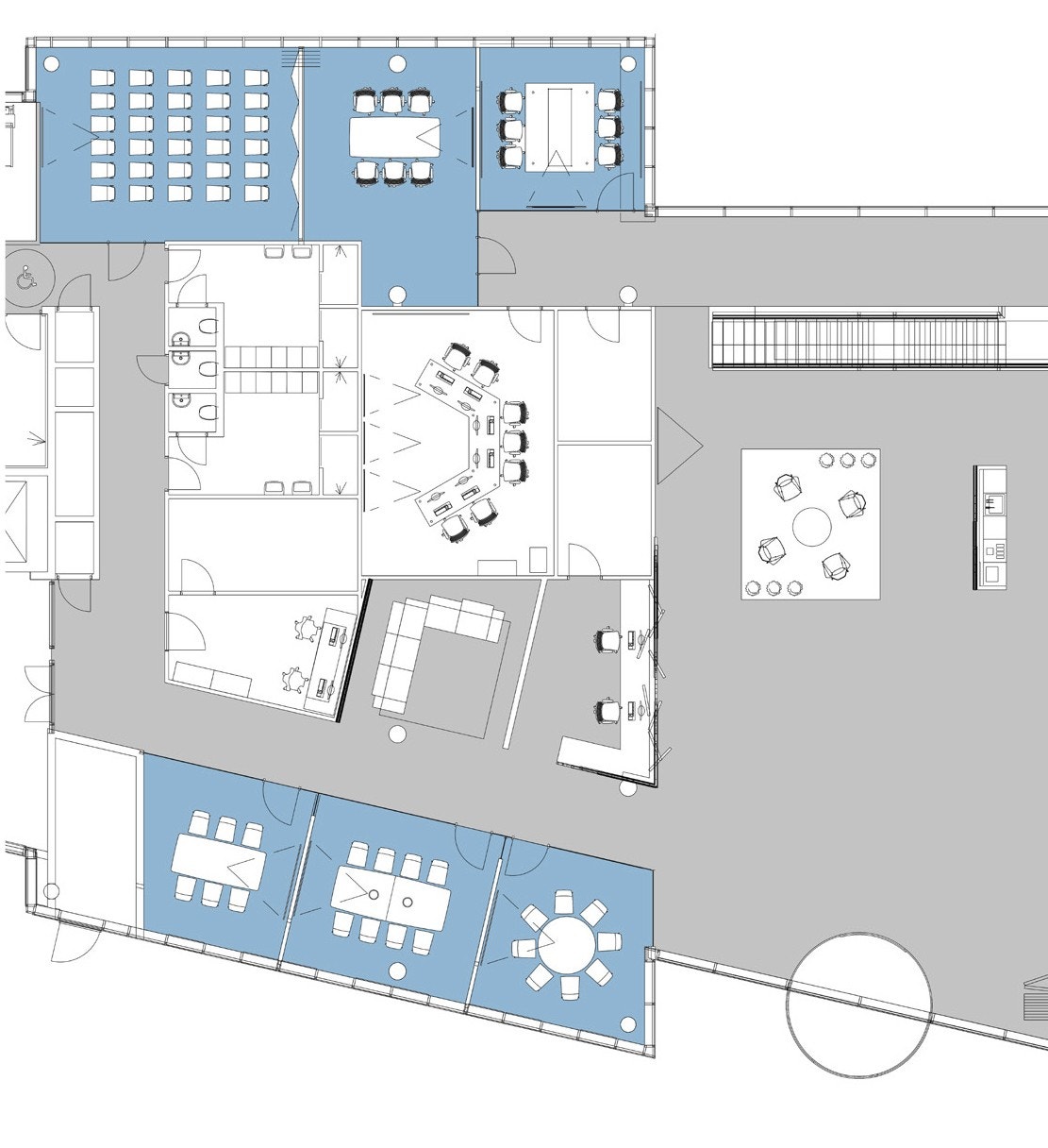
KANTINE
Det blir en felles kantine for alle som arbeider i bygget. Kantinen vil ligge i 1. etasje med store vindusflater ut mot torget. På torget vil det bli etablert flere sittegrupper. Her kan man nyte en deilig lunsj på fine dager i flotte omgivelser.
Intensjonen er at kantinen skal være et område med liv og puls også utenom lunsjen, i form av uformelle møter og andre arrangementer.
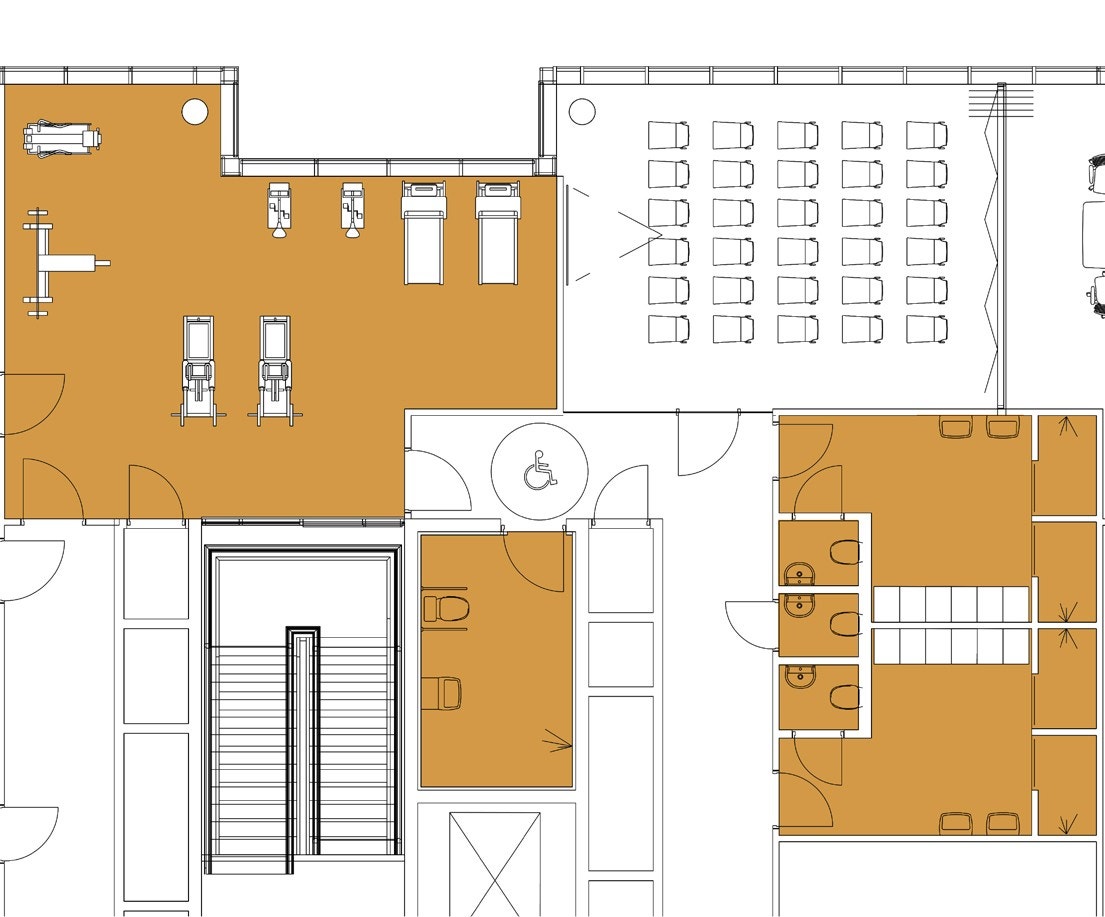
KURS- OG KONFERANSESENTER
I tillegg til egne møterom i utleielokalene, vil leietaker ha tilgang til et kurs- og konferansesenter.
Her har man mulighet til å avholde større møter med plass til 50 personer i klasseromsoppsett.
Kantinen kan være behjelpelig med servering i forbindelse med møter.
Resepsjonstjeneste vil være tilgjengelig.
TRIMROM
Helse og velvære er viktig. Bygget er tilrettelagt med et lyst og trivelig trimrom hvor ansatte på huset kan ta en treningsøkt. Rommet vil bli utstyrt med de mest brukte og moderne apparatene. Det er i tillegg gode garderobefasiliteter.
PARKERING FOR BIL OG SYKKEL
Leietaker vil kunne leie egne parkeringsplasser i parkeringskjelleren under bygget. Herfra går det heis rett opp i lokalene. I tillegg vil det være gjesteplasser. Det er sykkelparkering i eget, låst område i parkeringskjelleren.
Det blir en felles kantine for alle som arbeider i bygget. Kantinen vil ligge i 1. etasje med store vindusflater ut mot torget. På torget vil det bli etablert flere sittegrupper. Her kan man nyte en deilig lunsj på fine dager i flotte omgivelser.
Intensjonen er at kantinen skal være et område med liv og puls også utenom lunsjen, i form av uformelle møter og andre arrangementer.
KURS- OG KONFERANSESENTER
I tillegg til egne møterom i utleielokalene, vil leietaker ha tilgang til et kurs- og konferansesenter.
Her har man mulighet til å avholde større møter med plass til 50 personer i klasseromsoppsett.
Kantinen kan være behjelpelig med servering i forbindelse med møter.
Resepsjonstjeneste vil være tilgjengelig.
TRIMROM
Helse og velvære er viktig. Bygget er tilrettelagt med et lyst og trivelig trimrom hvor ansatte på huset kan ta en treningsøkt. Rommet vil bli utstyrt med de mest brukte og moderne apparatene. Det er i tillegg gode garderobefasiliteter.
PARKERING FOR BIL OG SYKKEL
Leietaker vil kunne leie egne parkeringsplasser i parkeringskjelleren under bygget. Herfra går det heis rett opp i lokalene. I tillegg vil det være gjesteplasser. Det er sykkelparkering i eget, låst område i parkeringskjelleren.
NB: Knappen for å vise hele beskrivelsen har kun en visuell effekt.
NB: Knappen for å vise hele beskrivelsen har kun en visuell effekt.
Visning
Ta kontakt for å avtale visning.Nyttige lenker
Nærområdet
Annonsene kan være mangelfulle i forhold til lovpålagt opplysningsplikt. Før bindende avtale inngås oppfordres interessenter til å innhente komplett informasjon fra meglerforetaket, selger eller utleier.































