Bildegalleri

Sveio - Tidsriktig nyere enebolig Golfbanen
Nøkkelinfo
- Boligtype
- Enebolig
- Eieform
- Eier (Selveier)
- Soverom
- 3
- Primærrom
- 135 m²
- Bruksareal
- 135 m²
- Byggeår
- 2012
- Rom
- 4
- Tomteareal
- 831 m² (eiet)
Fasiliteter
Innhold:
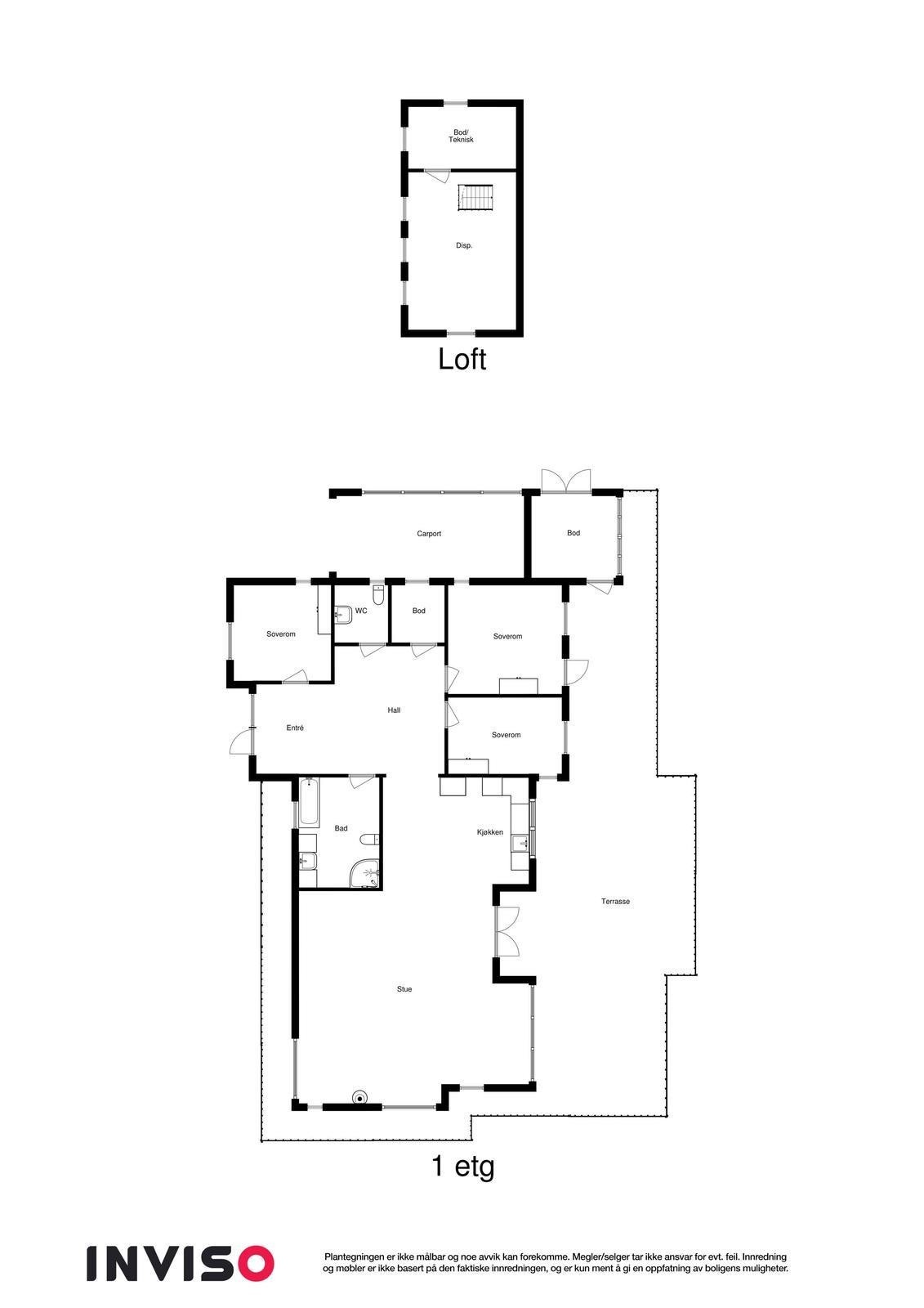
Boligen har alt på ett plan med store og gode romløsninger.
P-ROM: stilfull stue m/vedfyr og utg. uteplass, kjøkken m/spiseplass, bad m/badekar, dusj og wc, vaskerom m/toalett, dobbelt soverom m/utg. uteplass, 2 soverom, bod/kontor og rommelig hall.
Loft har et lekerom og teknisk rom. Adkomst til loft er via loftsluke med nedfellbar trapp.
Carport m/god bodplass i forlengelsen av boligen.
Standard:
Nyere enebolig som er bygget etter de nye byggekravene i TEK 10.
Fliser på gulv i hall, vaskerom og baderom. Ellers er gulvene belagt med parkett.
Det er også lagt parkett på loft.
Moderne Norema høyglans kjøkkeninnredning. Integrert komfyr/steikeovn og oppvaskemaskin. Avtrekksvifte.
Helfliset pent baderom med varmekabler. Pen baderomsinnredning med heldekkende vask.
Utstrakt bruk av downlights m/dimmer.
Villavent.
Fiber.
Sentralstøvsuger.
God takhøyde i flere rom gir luftige romløsninger.
Stilfull enebolig passende de aller fleste aldersgrupper. Velkommen på visning!
Fyring/Oppvarming:
Vedfyr, varmekabler og elektrisk.
Beliggenhet:
Golfbanen. Attraktivt beliggende i nyere boligfelt. Flott utsikt utover bygden samt golfbanen. Solrikt. Kort avstand til treningssenter, skole, barnehage og sentrum med dens fasiliteter.
Adkomst:
Kjør inn mot golfbanen i Sveio. Like før klubbhuset på golfbanen tar du til venstre oppover i feltet.
Parkering:
Carport samt på egen tomt.
Overtakelse:
Etter avtale
Byggemåte:
Boligen er oppført i tre-bindingsverk. Utvendig kledd med royal trevirke og sembritt fasadeplater. Zarnafil på tak.
Energimerking:
Eier skal legge fram energiattest for kjøper før avtale om salg av bygning blir inngått. Dersom dette mangler ved avtaleinngåelse kan kjøper innen ett år bestille energiattest for selgers regning.
Kjøpsbetingelser:
Avtale om kjøp skjer i henhold til de avtalebetingelser som fremgår av komplett salgsprospekt.
Beskaffenhet:
Opparbeidet. Det er plasstøpt betongdekke rundt boligen.
Regulering
Ta kontakt med megler for komplett informasjon
Nyttige lenker
Nærområdet
EiendomsMegler 1 Haugesund
Annonsene kan være mangelfulle i forhold til lovpålagt opplysningsplikt. Før bindende avtale inngås oppfordres interessenter til å innhente komplett informasjon fra meglerforetaket, selger eller utleier.



























