Bildegalleri

Privatmegleren presenterer Vadmyrveien 26 v/ Nikolai Tisthamar. Fotograf: Andreas Roksvåg!
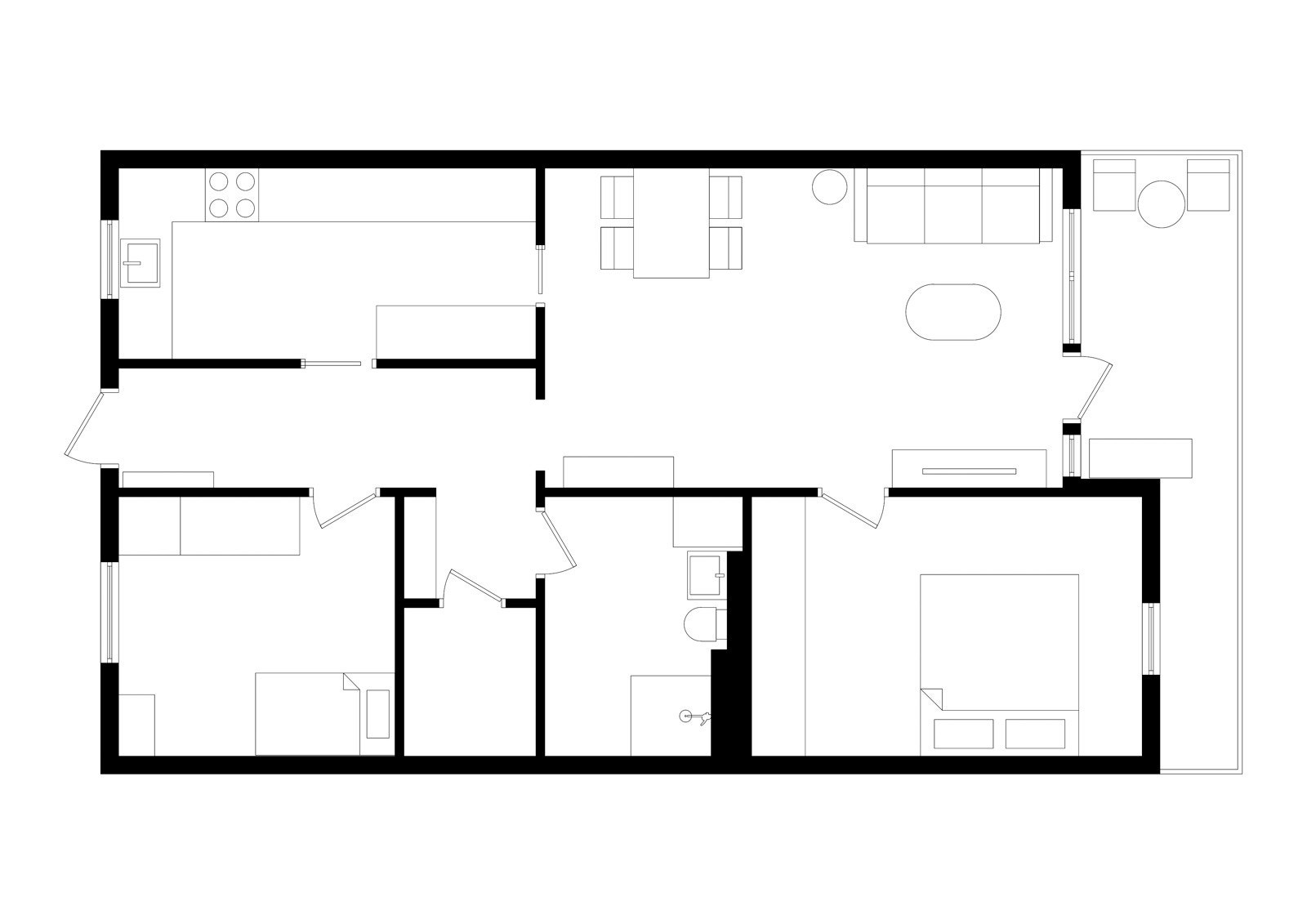
BERGEN VEST | 3 roms leil m/ innglasset balkong, heis og nærhet til fasiliteter. Varmtvann/sentralvarme ink. felleskost!
Nøkkelinfo
- Boligtype
- Leilighet
- Eieform
- Andel
- Soverom
- 2
- Internt bruksareal
- 70 m² (BRA-i)
- Bruksareal
- 79 m²
- Eksternt bruksareal
- 3 m² (BRA-e)
- Innglasset balkong
- 6 m² (BRA-b)
- Etasje
- 12
- Byggeår
- 1972
- Energimerking
- Tomteareal
- 47 121 m² (eiet)
- Boligselgerforsikring
- Ja
Fasiliteter
Visning
Om boligen
Velkommen til Vadmyrveien 26 - En 3-roms toppleilighet med gode kvaliteter. Er man på jakt etter en leilighet som står innflyttningsklar i Bergen vest? Da er dette den rette leiligheten for deg!
Boligen ligger i et veletablert nabolag/borettslag i Bergen vest. Området preges av rolige omgivelser med nærhet til både skogsterreng, turstier og populære turområder som Lyderhorn og Kanadaskogen. Boligen har en sentral beliggenhet, med kort avstand til dagligvarebutikk rett over veien, Vestkanten storsenter, samt til busstopp.
- Heis i bygget
- Varmtvann/fjernvarme ink. i felleskostnadene
- Praktisk planløsning med 2 romslige soverom samt mye bodplass
- Ingen dokumentavgift
- Umiddelbar nærhet til alle fasiliteter
- Ny Extra-butikk rett over veien
Velkommen til visning. Husk påmelding!
Salgsoppgaven beskriver vesentlig og lovpålagt informasjon om eiendommen
Se komplett salgsoppgaveNyttige lenker
Nærområdet

Privatmegleren Vest
Annonseinformasjon
| FINN-kode | 458251433 |
|---|---|
| Sist endret | 02. apr. 2026 10:10 |
| Referanse | 170250136 |
Annonsene kan være mangelfulle i forhold til lovpålagt opplysningsplikt. Før bindende avtale inngås oppfordres interessenter til å innhente komplett informasjon fra meglerforetaket, selger eller utleier.






























