Bildegalleri

- Thea Eldand ved Nordvik Bolig har gleden av å presentere Grågåsveie 73. Foto: Jan Rune Berge -
Kvernevik
Innholdsrik enebolig innerst i blindvei. Barnevennlig beliggenhet. Pent opparbeidet hage og gode solforhold. Garasje.
Prisantydning5 700 000 kr
Nøkkelinfo
- Boligtype
- Enebolig
- Eieform
- Selveier
- Soverom
- 3
- Internt bruksareal
- 186 m² (BRA-i)
- Bruksareal
- 218 m²
- Eksternt bruksareal
- 32 m² (BRA-e)
- Balkong/Terrasse
- 34 m² (TBA)
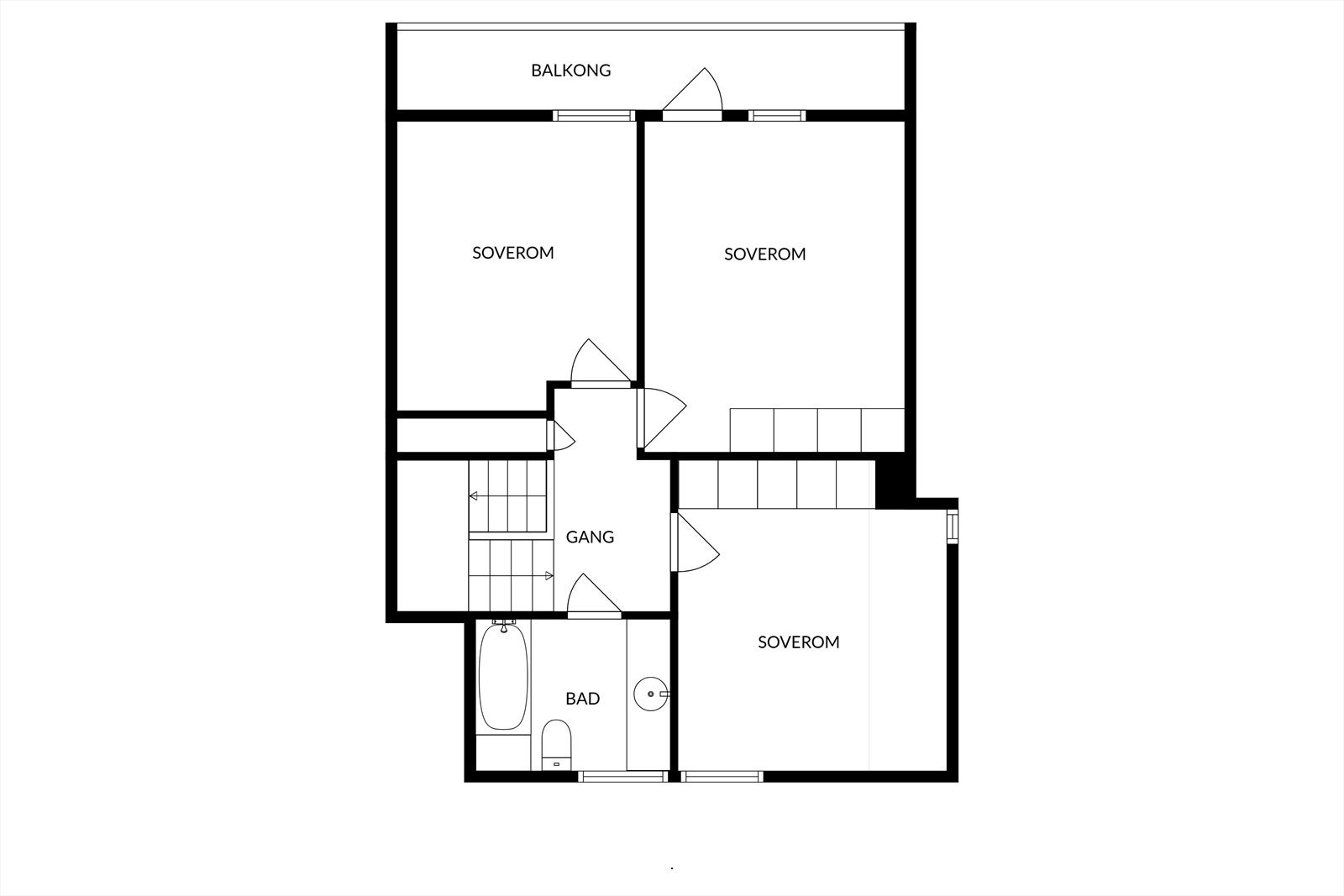
- Etasje
- 3
- Byggeår
- 1979
- Energimerking
- Rom
- 5
- Tomteareal
- 528 m² (eiet)
Fasiliteter
Balkong/Terrasse
Barnevennlig
Bredbåndstilknytning
Garasje/P-plass
Hage
Kjæledyr tillatt
Ingen gjenboere
Kabel-TV
Offentlig vann/kloakk
Parkett
Peis/Ildsted
Rolig
Sentralt
Utsikt
Bademulighet
Fiskemulighet
Turterreng
Lademulighet
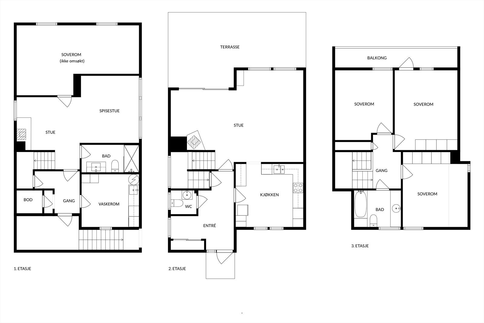
Om boligen
Innbydende og innholdsrik enebolig innerst i blindvei. Det er gjort en rekke oppgraderinger i senere år, hvor underetasje blant annet er innredet med stue, soverom, bad, vaskerom og boder. Kjøkkenet er fra 2017, og ellers er drenering tatt, samt begge bad og vaskerom pusset opp i senere år. Her har har man stort gårdsrom med plass til flere biler, uteplasser på flere sider av boligen, og pent opparbeidet hage med fantastiske solforhold. Fra boligens andre etasje har man også sjøutsikt.
- To bad og tre godkjente soverom
- Innredet underetasje med egen inngang (ikke byggemeldt)
- Pent opparbeidet hage og flere uteplasser
- Gode sol- og utsiktsforhold
- Romslig garasje og plass til fire biler i gårdsrom
- Elbillader
- Få minutters gange til barnehage, nye skolen og flere dagligvarebutikker
- To bad og tre godkjente soverom
- Innredet underetasje med egen inngang (ikke byggemeldt)
- Pent opparbeidet hage og flere uteplasser
- Gode sol- og utsiktsforhold
- Romslig garasje og plass til fire biler i gårdsrom
- Elbillader
- Få minutters gange til barnehage, nye skolen og flere dagligvarebutikker
NB: Knappen for å vise hele beskrivelsen har kun en visuell effekt.
NB: Knappen for å vise hele beskrivelsen har kun en visuell effekt.
Salgsoppgaven beskriver vesentlig og lovpålagt informasjon om eiendommen
Se komplett salgsoppgaveNyttige lenker
Nærområdet
Nordvik Stavanger
Vi vet hva det er verdt
Annonseinformasjon
| FINN-kode | 458243204 |
|---|---|
| Sist endret | 03. apr. 2026 13:29 |
| Referanse | 43-0300/25 |
Annonsene kan være mangelfulle i forhold til lovpålagt opplysningsplikt. Før bindende avtale inngås oppfordres interessenter til å innhente komplett informasjon fra meglerforetaket, selger eller utleier.

























































