Bildegalleri

Velkommen til Mellomila 59 D. Delikat 3-roms hjørneleilighet i bygg fra 2018 | Selveier | Markterrasse på 25 kvm | Heis | Egen P-plass & bod i kjeller!
Ilsvika
Delikat 3-roms hjørneleilighet i bygg fra 2018 | Selveier | Markterrasse på 25 kvm | Heis | Egen P-plass & bod i kjeller
Prisantydning4 750 000 kr
Nøkkelinfo
- Boligtype
- Leilighet
- Eieform
- Selveier
- Soverom
- 2
- Internt bruksareal
- 78 m² (BRA-i)
- Bruksareal
- 84 m²
- Eksternt bruksareal
- 6 m² (BRA-e)
- Balkong/Terrasse
- 23 m² (TBA)
- Etasje
- 2
- Byggeår
- 2018
- Energimerking
- Rom
- 3
- Tomteareal
- 2 658 m² (eiet)
Visning
mandag, 13. april
16:00 – 16:45
Våre visninger har påmelding. Dette gjør vi for å kunne yte bedre service for våre kunder. Verdifullt for boligkjøper og for oss. Vi anbefaler at salgsoppgaven lastes ned digitalt før visning, og ring oss gjerne på forhånd for spørsmål om boligen. Passer ikke angitt tidspunkt, ta kontakt så finner vi en løsning. Skulle det mot formodning ikke være påmeldte til angitt visningstidspunkt vil ikke visning bli gjennomført.
Om boligen
Visningstidspunkt må avtales direkte med megler.
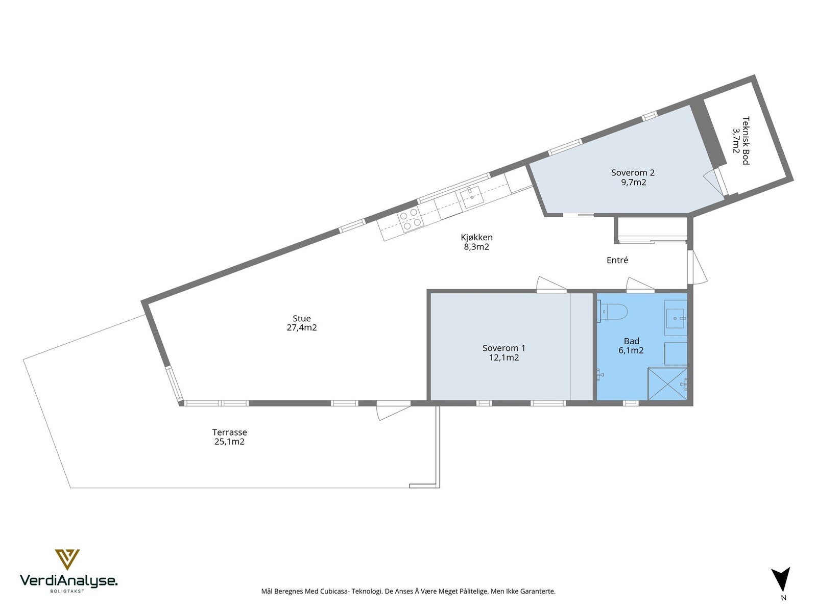
Velkommen til Mellomila 59 D. Denne delikate hjørneleiligheten på bakkeplan kan by på blant annet:
- Selveierleilighet i bygg fra 2018
- Åpen løsning mellom kjøkken & stue ca. 36 kvm
- Vannbåren varme & balansert ventilasjon
- Stilrent kjøkken fra byggeår med integrerte hvitevarer (TG1)
- Pent flislagt bad fra byggeår med varmekabler i gulv & opplegg til vaskemaskin (TG1)
- To romslige soverom på henholdsvis ca. 12 & 10 kvm med god plass til dobbeltseng
- Egen innvendig bod som gir ekstra lagringsplass
- Egen markterrasse vendt mot rolig bakgård på hele 25 kvm
- Egen parkeringsplass i felles oppvarmet P-kjeller med mulighet for elbillader
- Egen sportsbod i felles oppvarmet P-kjeller
- Stor felles sykkelbod i kjeller
- Heis i bygget
- Sentral & attraktiv beliggenhet i populære Ilsvika, med nærhet til alt sentrum & Bymarka har å by på!
Velkommen!
Velkommen til Mellomila 59 D. Denne delikate hjørneleiligheten på bakkeplan kan by på blant annet:
- Selveierleilighet i bygg fra 2018
- Åpen løsning mellom kjøkken & stue ca. 36 kvm
- Vannbåren varme & balansert ventilasjon
- Stilrent kjøkken fra byggeår med integrerte hvitevarer (TG1)
- Pent flislagt bad fra byggeår med varmekabler i gulv & opplegg til vaskemaskin (TG1)
- To romslige soverom på henholdsvis ca. 12 & 10 kvm med god plass til dobbeltseng
- Egen innvendig bod som gir ekstra lagringsplass
- Egen markterrasse vendt mot rolig bakgård på hele 25 kvm
- Egen parkeringsplass i felles oppvarmet P-kjeller med mulighet for elbillader
- Egen sportsbod i felles oppvarmet P-kjeller
- Stor felles sykkelbod i kjeller
- Heis i bygget
- Sentral & attraktiv beliggenhet i populære Ilsvika, med nærhet til alt sentrum & Bymarka har å by på!
Velkommen!
NB: Knappen for å vise hele beskrivelsen har kun en visuell effekt.
NB: Knappen for å vise hele beskrivelsen har kun en visuell effekt.
Salgsoppgaven beskriver vesentlig og lovpålagt informasjon om eiendommen
Se komplett salgsoppgaveNyttige lenker
Nærområdet
EiendomsMegler 1 Trondheim sentrum, Søndre gate
Vi loser deg trygt gjennom hele boligsalget
Annonseinformasjon
| FINN-kode | 458175499 |
|---|---|
| Sist endret | 03. apr. 2026 08:56 |
| Referanse | 39260049 |
Annonsene kan være mangelfulle i forhold til lovpålagt opplysningsplikt. Før bindende avtale inngås oppfordres interessenter til å innhente komplett informasjon fra meglerforetaket, selger eller utleier.








































