Bildegalleri

Hjørnehus ideelt plassert med fantastisk utsikt mot Nordåsvannet!
Selveid hjørnebolig med ellevill utsikt - stort potensial, garasje og tre uteplasser!
Prisantydning5 700 000 kr
Nøkkelinfo
- Boligtype
- Rekkehus
- Eieform
- Selveier
- Soverom
- 3
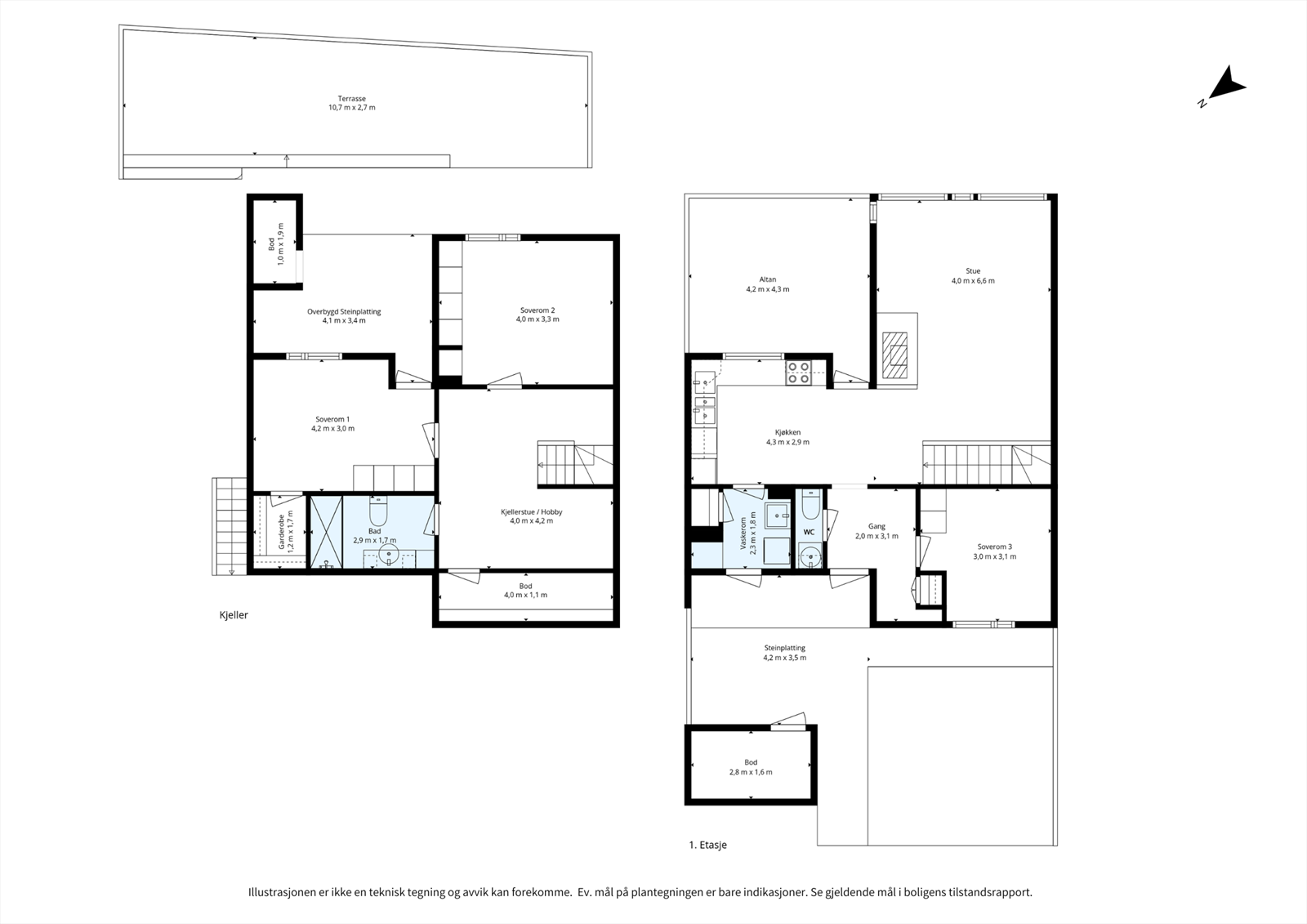
- Internt bruksareal
- 114 m² (BRA-i)
- Bruksareal
- 121 m²
- Eksternt bruksareal
- 7 m² (BRA-e)
- Balkong/Terrasse
- 43 m² (TBA)
- Byggeår
- 1984
- Energimerking
- Rom
- 5
- Tomteareal
- 224 m² (eiet)
Fasiliteter
Aircondition
Balkong/Terrasse
Barnevennlig
Bredbåndstilknytning
Garasje/P-plass
Hage
Kjæledyr tillatt
Kabel-TV
Offentlig vann/kloakk
Peis/Ildsted
Rolig
Sentralt
Utsikt
Utvidelsesmuligheter
Turterreng
Lademulighet
Om boligen
Sjelden mulighet i et av Bønes sine mest attraktive boligfelt. Plasseringen er blant de beste, med spektakulær utsikt som må oppleves - vidstrakt utover Nordåsvannet, med sol og lys som løfter hele eiendommen.
BELIGGENHET
Rolig og skjermet beliggenhet
Trygt og barnevennlig med flere lekeplasser i bilfritt område
Gangavstand til dagligvare og buss
Fjellsdalen skolekrets
Fantastiske turmuligheter rett utenfor
BOLIGEN
Hjørneplassering med ekstra hageareal
Tre uteplasser inkl. altan (14 m²) og terrasse (28 m²)
Familievennlig planløsning over to plan med kjellerstue*
Fast garasjeplass i felles anlegg
Vaskerom med egen inngang
Oppussingsbehov gir en unik mulighet til å skape et hjem i toppsjiktet
Tydelig potensial for videre utvikling.
Flere nabohus er utvidet med tilbygg (må søkes kommunen)
BELIGGENHET
Rolig og skjermet beliggenhet
Trygt og barnevennlig med flere lekeplasser i bilfritt område
Gangavstand til dagligvare og buss
Fjellsdalen skolekrets
Fantastiske turmuligheter rett utenfor
BOLIGEN
Hjørneplassering med ekstra hageareal
Tre uteplasser inkl. altan (14 m²) og terrasse (28 m²)
Familievennlig planløsning over to plan med kjellerstue*
Fast garasjeplass i felles anlegg
Vaskerom med egen inngang
Oppussingsbehov gir en unik mulighet til å skape et hjem i toppsjiktet
Tydelig potensial for videre utvikling.
Flere nabohus er utvidet med tilbygg (må søkes kommunen)
NB: Knappen for å vise hele beskrivelsen har kun en visuell effekt.
NB: Knappen for å vise hele beskrivelsen har kun en visuell effekt.
Salgsoppgaven beskriver vesentlig og lovpålagt informasjon om eiendommen
Se komplett salgsoppgaveNyttige lenker
Nærområdet
EiendomsMegler 1 Marken
En del av Sparebank 1 Sør-Norge
Annonseinformasjon
| FINN-kode | 458115735 |
|---|---|
| Sist endret | 01. apr. 2026 19:20 |
| Referanse | 2711260051 |
Annonsene kan være mangelfulle i forhold til lovpålagt opplysningsplikt. Før bindende avtale inngås oppfordres interessenter til å innhente komplett informasjon fra meglerforetaket, selger eller utleier.






















































