Bildegalleri

Velkommen til Ole Messelts vei 28!
Lutvann
Stort enderekkehus - Takterasse med nydelig utsikt over byen, hage, barnevennelig og marka rett utenfor døra. Garasje
Prisantydning10 950 000 kr
Nøkkelinfo
- Boligtype
- Rekkehus
- Eieform
- Selveier
- Soverom
- 4
- Internt bruksareal
- 185 m² (BRA-i)
- Bruksareal
- 206 m²
- Eksternt bruksareal
- 21 m² (BRA-e)
- Balkong/Terrasse
- 97 m² (TBA)
- Byggeår
- 1973
- Energimerking
- Rom
- 6
- Tomteareal
- 230 m² (eiet)
Fasiliteter
Barnevennlig
Balkong/Terrasse
Garasje/P-plass
Peis/Ildsted
Turterreng
Utsikt
Sentralt
Moderne
Rolig
Visning
torsdag, 28. mai
18:00 – 19:00
Velkommen til visning!
Alle våre visninger har påmelding. På denne måten sikrer vi at våre meglere har god tid og på best mulig måte kan møte alle interessentene. Det er enkelt å melde seg på og like enkelt å melde seg av.
Husk å les salgsoppgaven i forkant!
Kontakt oss gjerne i forkant av visning om du har noen spørsmål.
Om boligen
Velkommen til Ole Messelts vei 28.
Rekkehuset har en familievennlig beliggenhet og egen takterrasse med fantastisk utsikt over byen og fjorden.
God familiebolig over 3 plan med 4 soverom
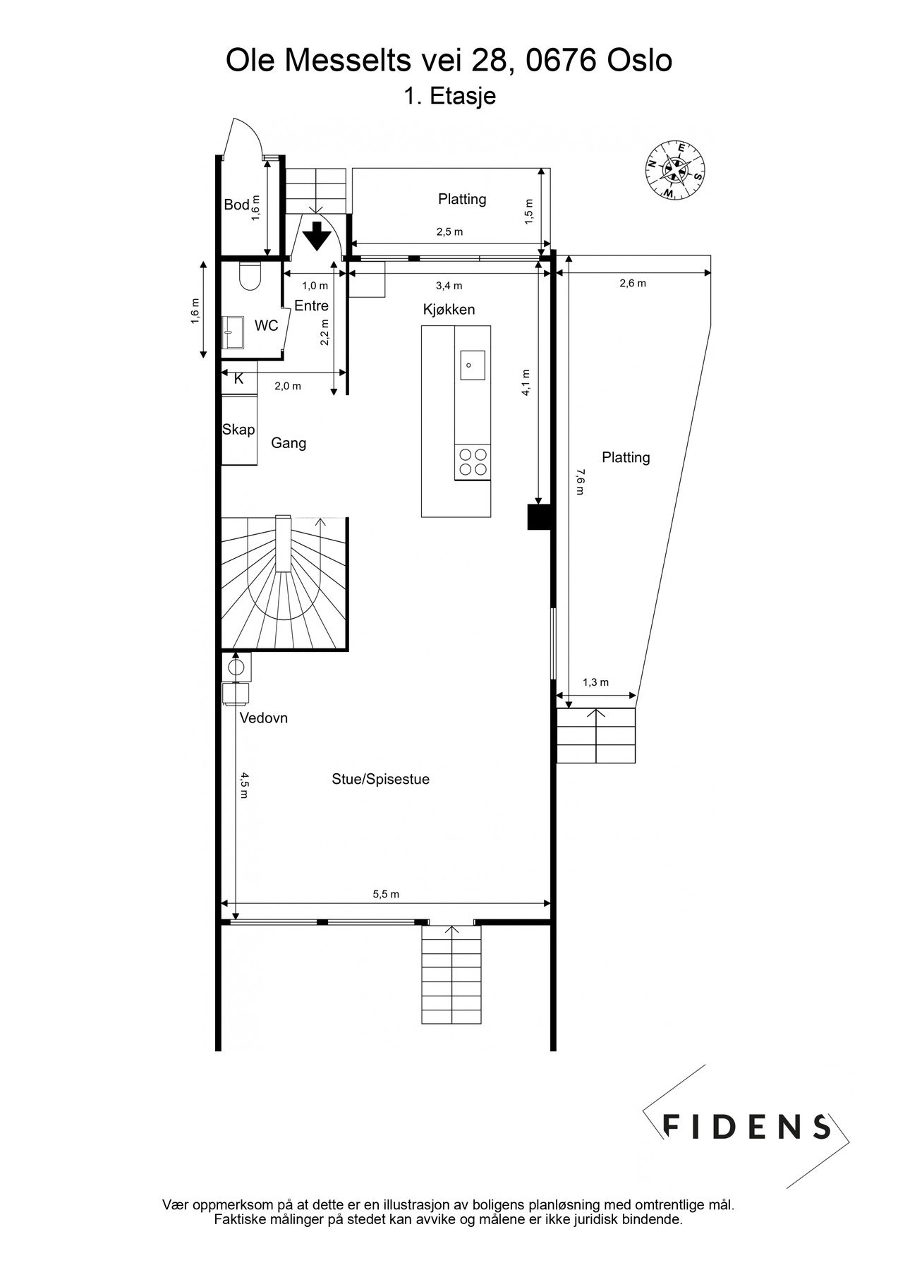
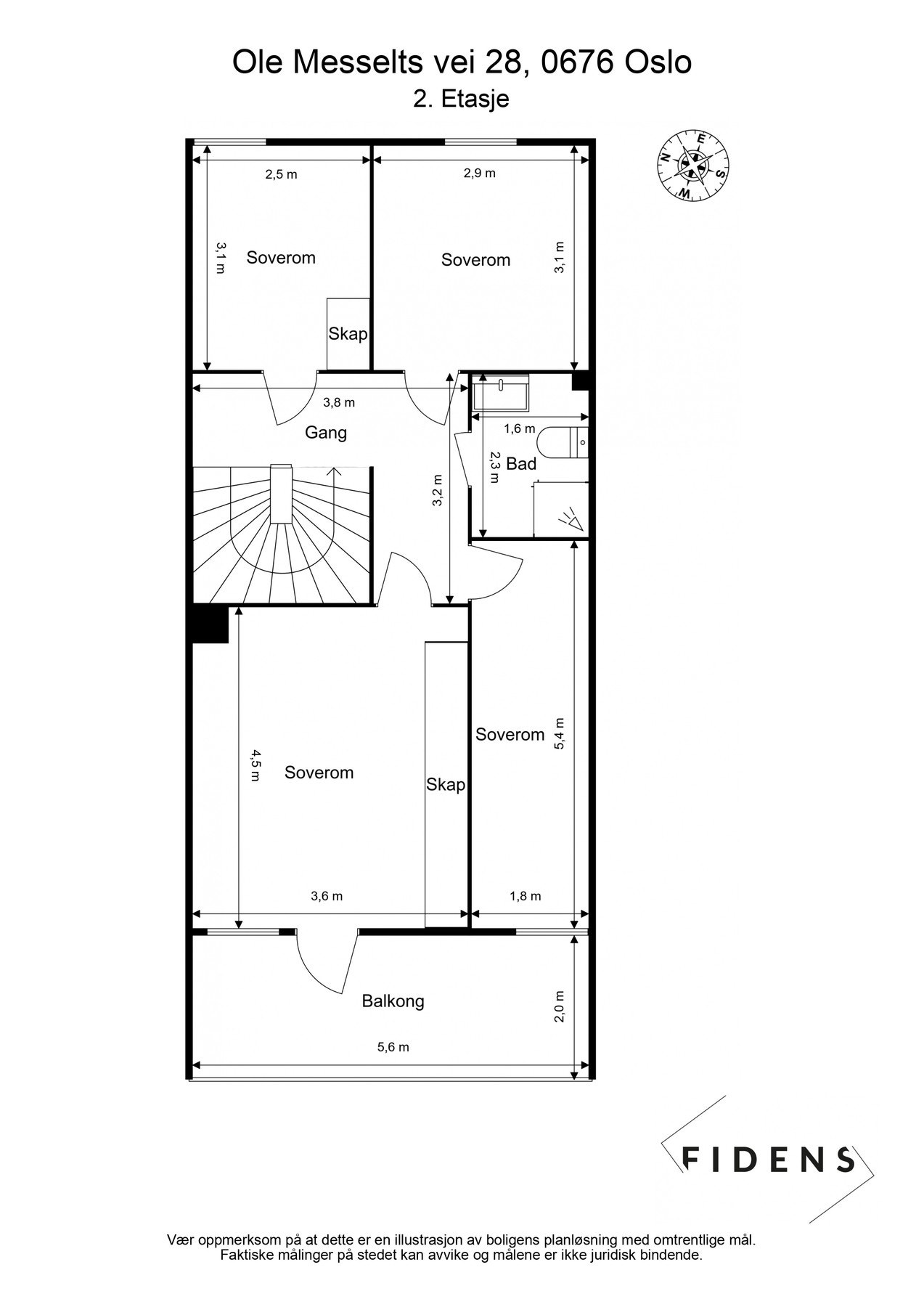
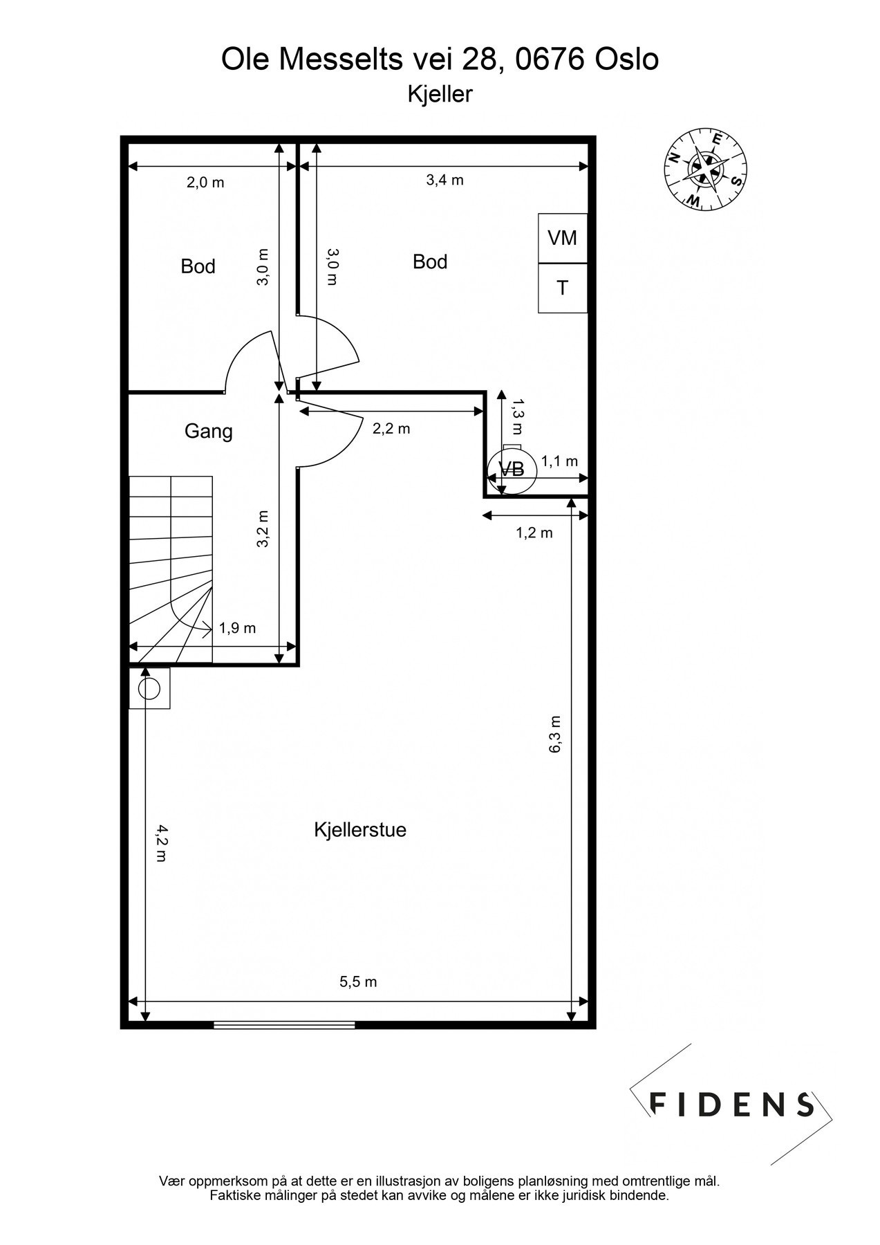
I 1. etasje er entre/gang, toalett, kjøkken, stue/spisestue i tillegg til en bod. I kjeller er det kjellerstue, bod og vaskerom(godkjent som bod). Andre etasje finner du bad, 4 soverom og inngang/utgang til takterrassen.
Garasje med mulighet for el-lading.
Her bor du i et fredelig, barnevennlig boligområde med marka rett utenfor døren. Flotte turmuligheter. Det er kort vei til barnehage, skole, dagligvarebutikker og offentlig kommunikasjon.
Velkommen til visning!
Rekkehuset har en familievennlig beliggenhet og egen takterrasse med fantastisk utsikt over byen og fjorden.
God familiebolig over 3 plan med 4 soverom
I 1. etasje er entre/gang, toalett, kjøkken, stue/spisestue i tillegg til en bod. I kjeller er det kjellerstue, bod og vaskerom(godkjent som bod). Andre etasje finner du bad, 4 soverom og inngang/utgang til takterrassen.
Garasje med mulighet for el-lading.
Her bor du i et fredelig, barnevennlig boligområde med marka rett utenfor døren. Flotte turmuligheter. Det er kort vei til barnehage, skole, dagligvarebutikker og offentlig kommunikasjon.
Velkommen til visning!
NB: Knappen for å vise hele beskrivelsen har kun en visuell effekt.
NB: Knappen for å vise hele beskrivelsen har kun en visuell effekt.
Salgsoppgaven beskriver vesentlig og lovpålagt informasjon om eiendommen
Se komplett salgsoppgaveNærområdet
ASK Oslo Vest
Velkommen hjem
Annonseinformasjon
| FINN-kode | 458059153 |
|---|---|
| Sist endret | 22. mai 2026 09:47 |
| Referanse | 40-26-0024 |
Annonsene kan være mangelfulle i forhold til lovpålagt opplysningsplikt. Før bindende avtale inngås oppfordres interessenter til å innhente komplett informasjon fra meglerforetaket, selger eller utleier.






















































