Bildegalleri

Velkommen til Lyngmarka 51 - en flott familiebolig med innbydende, solrike uteplasser.
Strusshamn
Flott, innholdsrik familiebolig med meget gode solforhold | Totalt 100 m² med terrasser og balkong | Garasje
Prisantydning5 450 000 kr
Nøkkelinfo
- Boligtype
- Rekkehus
- Eieform
- Selveier
- Soverom
- 3
- Internt bruksareal
- 155 m² (BRA-i)
- Bruksareal
- 181 m²
- Eksternt bruksareal
- 26 m² (BRA-e)
- Balkong/Terrasse
- 100 m² (TBA)
- Byggeår
- 2000
- Energimerking
- Rom
- 5
- Tomteareal
- 502 m² (eiet)
Fasiliteter
Balkong/Terrasse
Barnevennlig
Bredbåndstilknytning
Garasje/P-plass
Hage
Kjæledyr tillatt
Kabel-TV
Offentlig vann/kloakk
Peis/Ildsted
Rolig
Sentralt
Utsikt
Turterreng
Om boligen
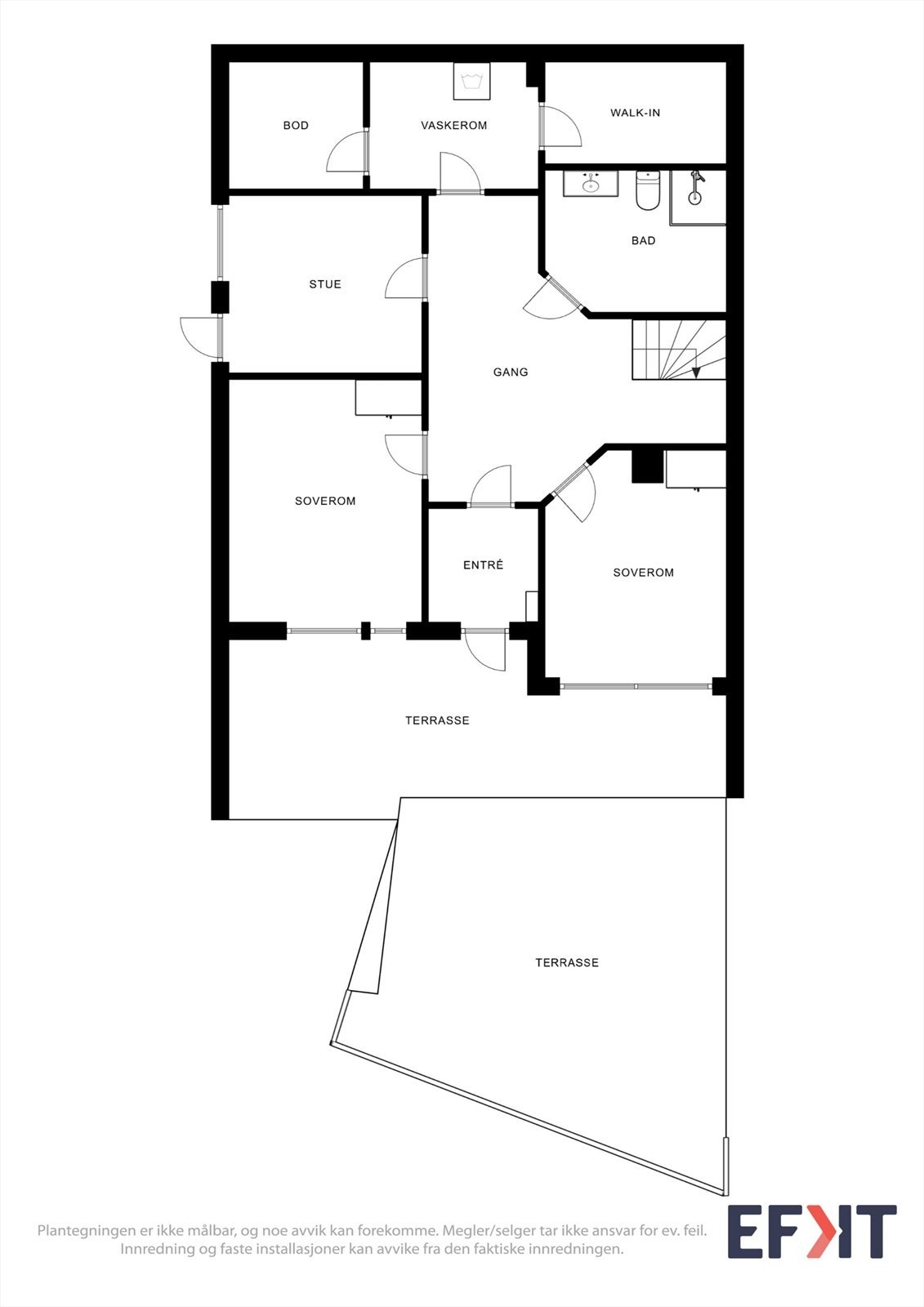
Velkommen til Lyngmarka 51!
Et innholdsrikt enderekkehus med flere, solrike uteplasser og garasje.
Dette er et familievennlig rekkehus over to plan i et rolig og etablert nabolag i Strusshamn. Hovedetasjen har en stue på over 40 m², samt et kjøkken med spiseplass. Med to bad og separat vaskerom er dette et praktisk hjem for en aktiv hverdag. Nærheten til turmuligheter i skog og mark gir rikelig med rekreasjon rett utenfor døren, samt kort vei til alle daglige servicetilbud.
Høydepunkter:
Totalt ca. 100 m² med terrasser og altan
Meget gode solforhold (Fra ca 0530, til ca kl 2230 midtsommers)
Parkering i egen garasje på 26 m², samt på egen tomt
Praktisk vaskerom og to boder
To flislagte bad, ett i hver etasje
Vedovn i stuen
Gulvvarme i begge bad og gang
Et innholdsrikt enderekkehus med flere, solrike uteplasser og garasje.
Dette er et familievennlig rekkehus over to plan i et rolig og etablert nabolag i Strusshamn. Hovedetasjen har en stue på over 40 m², samt et kjøkken med spiseplass. Med to bad og separat vaskerom er dette et praktisk hjem for en aktiv hverdag. Nærheten til turmuligheter i skog og mark gir rikelig med rekreasjon rett utenfor døren, samt kort vei til alle daglige servicetilbud.
Høydepunkter:
Totalt ca. 100 m² med terrasser og altan
Meget gode solforhold (Fra ca 0530, til ca kl 2230 midtsommers)
Parkering i egen garasje på 26 m², samt på egen tomt
Praktisk vaskerom og to boder
To flislagte bad, ett i hver etasje
Vedovn i stuen
Gulvvarme i begge bad og gang
NB: Knappen for å vise hele beskrivelsen har kun en visuell effekt.
NB: Knappen for å vise hele beskrivelsen har kun en visuell effekt.
Salgsoppgaven beskriver vesentlig og lovpålagt informasjon om eiendommen
Se komplett salgsoppgaveNyttige lenker
Nærområdet
Himla Eiendomsmegling
av Fana Sparebank Eiendom
Annonseinformasjon
| FINN-kode | 458046658 |
|---|---|
| Sist endret | 31. mars 2026 13:59 |
| Referanse | 02260029 |
Annonsene kan være mangelfulle i forhold til lovpålagt opplysningsplikt. Før bindende avtale inngås oppfordres interessenter til å innhente komplett informasjon fra meglerforetaket, selger eller utleier.



























