Bildegalleri

EiendomsMegler1 v/Christer Aabø har gleden av å presentere Kveøyveien 385! Foto: H5 Property.
Kveøya
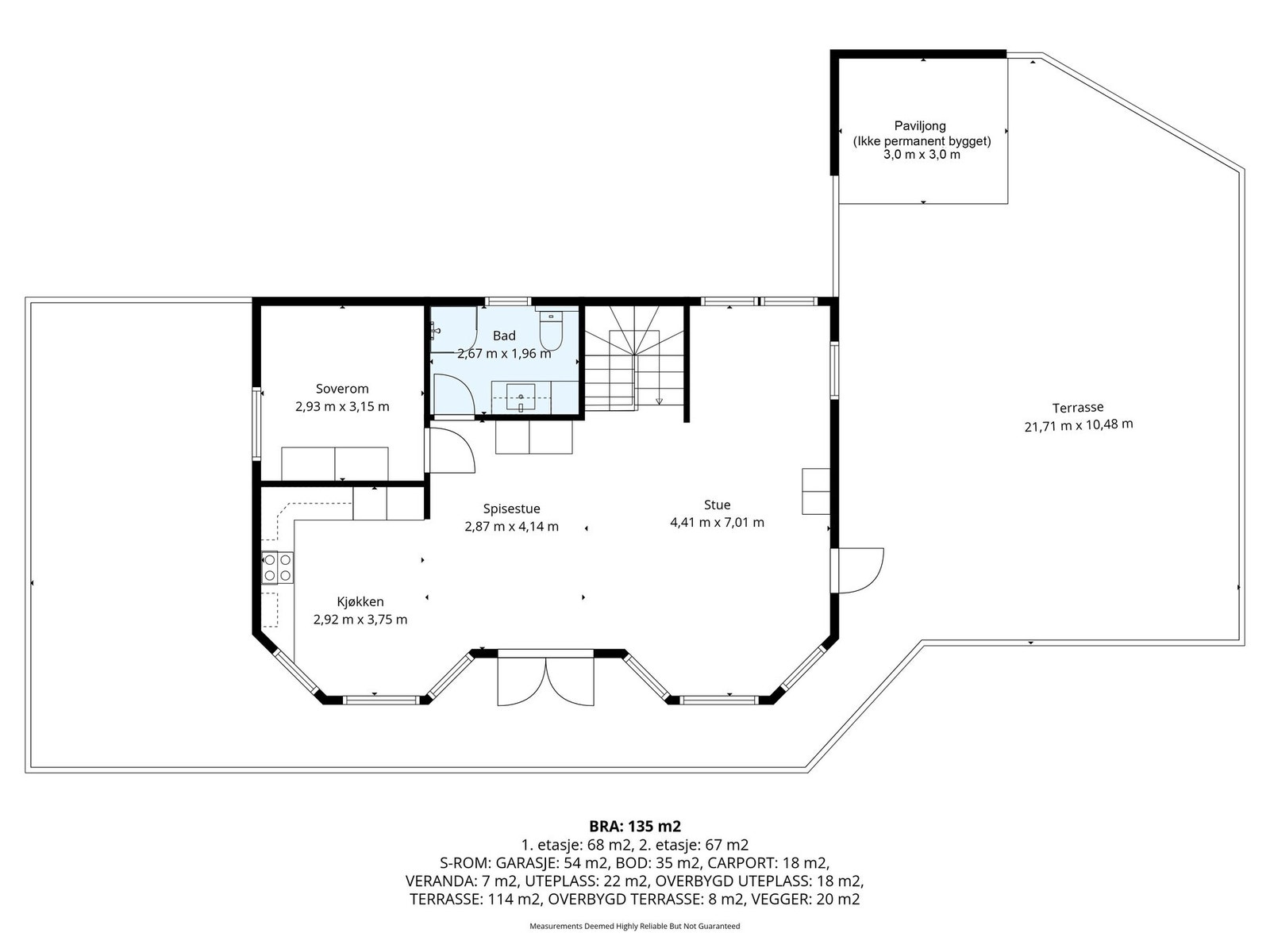
Nyere enebolig med landlig beliggenhet|Vannbåren varme|Garasje og carport|Gode sol- og utsikstforhold| Terrasse 125kvm|
Prisantydning3 190 000 kr
Nøkkelinfo
- Boligtype
- Enebolig
- Eieform
- Selveier
- Soverom
- 3
- Internt bruksareal
- 189 m² (BRA-i)
- Bruksareal
- 210 m²
- Eksternt bruksareal
- 21 m² (BRA-e)
- Balkong/Terrasse
- 125 m² (TBA)
- Byggeår
- 2009
- Energimerking
- Rom
- 4
- Tomteareal
- 1 314 m² (eiet)
Fasiliteter
Barnevennlig
Balkong/Terrasse
Garasje/P-plass
Ingen gjenboere
Turterreng
Utsikt
Moderne
Rolig
Lademulighet
Visning
torsdag, 09. april
17:00 – 17:45
Alle våre visninger har påmelding. Dette for at vi kan planlegge visningene best mulig, og ha god tid til de som kommer. Det er enkelt å melde seg på, og du kan like enkelt melde deg av. Visninger uten påmeldte deltakere kan bli avlyst.
Om boligen
EiendomsMegler1 v/Christer Aabø har gleden av å presentere Kveøyveien 385!
Boligen er ny i 2009 og bærer preg av moderne standard, her har du en terrasse på hele 125kvm og gode parkering- og lagringsmuligheter i garasje og carport.
Kvaliteter verdt å merke seg:
Boligen er ny i 2009 og bærer preg av moderne standard, her har du en terrasse på hele 125kvm og gode parkering- og lagringsmuligheter i garasje og carport.
Kvaliteter verdt å merke seg:
- Svært gode sol- og utsiktsforhold.
- Gjennomgående god standard fra byggeår. (2009)
- Vannbåren varme i gulv.
- Garasje, carport og gode utendørs parkeringsmuligheter for flere biler.
- Rikelig med bodplass i utvendig bod.
- Svært gode sol- og utsiktsforhold.
- Terrasse på hele 125kvm, har har du virkelig stor boltreplass i solveggen.
- Landlig beliggenhet.
- Broforbindelse som gjør det enkelt å komme seg til Kvæfjord og Harstad.
Velkommen til en hyggelig visning!
NB: Knappen for å vise hele beskrivelsen har kun en visuell effekt.
NB: Knappen for å vise hele beskrivelsen har kun en visuell effekt.
Salgsoppgaven beskriver vesentlig og lovpålagt informasjon om eiendommen
Se komplett salgsoppgaveNyttige lenker
Nærområdet
EiendomsMegler 1 Harstad
Vi loser deg trygt gjennom hele boligsalget
Annonsene kan være mangelfulle i forhold til lovpålagt opplysningsplikt. Før bindende avtale inngås oppfordres interessenter til å innhente komplett informasjon fra meglerforetaket, selger eller utleier.



































