Bildegalleri

Velkommen til Ekornveien 4! Foto: Karl Filip Kronstad
Byskogen
Innholdsrik og lekker enebolig med 4 soverom - Gjennomgående meget god standard.
Prisantydning6 100 000 kr
Nøkkelinfo
- Boligtype
- Enebolig
- Eieform
- Selveier
- Soverom
- 4
- Internt bruksareal
- 191 m² (BRA-i)
- Bruksareal
- 241 m²
- Eksternt bruksareal
- 50 m² (BRA-e)
- Byggeår
- 1958
- Energimerking
- Rom
- 5
- Tomteareal
- 795 m² (eiet)
Fasiliteter
Takterrasse
Balkong/Terrasse
Barnevennlig
Bredbåndstilknytning
Garasje/P-plass
Hage
Kjæledyr tillatt
Kabel-TV
Offentlig vann/kloakk
Parkett
Peis/Ildsted
Rolig
Sentralt
Utsikt
Turterreng
Lademulighet
Visning
torsdag, 09. april
16:30 – 17:30
Velkommen til visning!
Alle våre visninger har påmelding. På denne måten sikrer vi at megler har god oversikt og tid til å imøtekomme alle interessenter på beste måte.
Påmelding til visning må gjøres senest innen kl.16:00 dagen før. Visninger uten påmelding vil ikke bli avholdt.
Kontakt også gjerne i forkant av visning dersom du har spørsmål.
VisningspåmeldingOm boligen
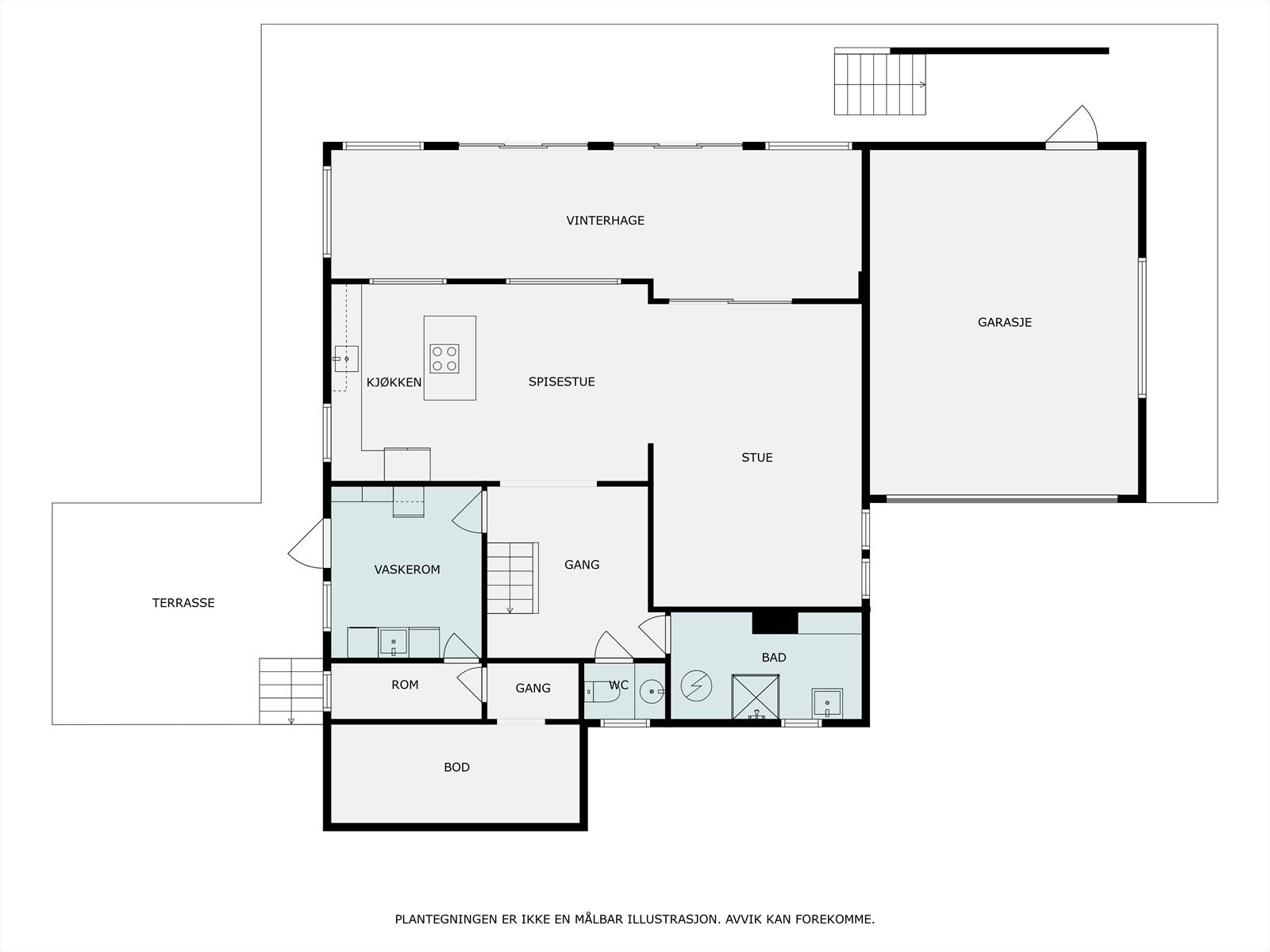
Velkommen til Ekornveien 4 presentert av Morten Skorge. Eiendommen ligger i et attraktivt og barnevennlig område i Byskogen, rett øst for Larvik sentrum. Det er kort avstand til skoler, barnehager, kollektivtransport og flotte turområder. Tomten er solrik og pent opparbeidet med asfaltert gårdsplass og innbydende hage med markterrasse og beplantning. Eiendommen har garasje under terrasse med motorisert leddport og elbillader, samt en frittstående garasje. Boligen er jevnlig oppgradert og godt vedlikeholdt. Inne møtes du av en lys entré med praktisk skyvedørsgarderobe, åpen stue- og kjøkkenløsning med peis, varmepumpe og store vinduer, samt en vinterhage fra 2017 med utgang til hage. Fire soverom i 2. etasje, hvor ett har utgang terrasse på 77 m². Boligen har to bad, toalettrom og vaskerom.
NB: Knappen for å vise hele beskrivelsen har kun en visuell effekt.
NB: Knappen for å vise hele beskrivelsen har kun en visuell effekt.
Salgsoppgaven beskriver vesentlig og lovpålagt informasjon om eiendommen
Se komplett salgsoppgaveNyttige lenker
Nærområdet
EiendomsMegler 1 Larvik
et foretak i SpareBank 1 Sør-Norge konsernet
Annonseinformasjon
| FINN-kode | 457913657 |
|---|---|
| Sist endret | 30. mars 2026 12:31 |
| Referanse | 2866250009 |
Annonsene kan være mangelfulle i forhold til lovpålagt opplysningsplikt. Før bindende avtale inngås oppfordres interessenter til å innhente komplett informasjon fra meglerforetaket, selger eller utleier.
















































































