Bildegalleri

Velkommen hjem til Lund Østre og Skyttarbakken 31! Et innholdsrikt og familievennlig rekkehus over tre plan med fantastiske utsikts- og solforhold.
Lund Østre/ Heimdal
Familievennlig rekkehus med to bad og fire soverom. Garasje. To terrasser. Utsikt. Vaskerom. Nært skole og barnehage.
Prisantydning5 990 000 kr
Nøkkelinfo
- Boligtype
- Rekkehus
- Eieform
- Selveier
- Soverom
- 4
- Internt bruksareal
- 128 m² (BRA-i)
- Bruksareal
- 152 m²
- Eksternt bruksareal
- 24 m² (BRA-e)
- Balkong/Terrasse
- 41 m² (TBA)
- Byggeår
- 2012
- Energimerking
- Rom
- 5
- Tomteareal
- 4 551 m² (eiet)
Fasiliteter
Barnevennlig
Balkong/Terrasse
Garasje/P-plass
Offentlig vann/kloakk
Peis/Ildsted
Turterreng
Utsikt
Rolig
Lademulighet
Visning
onsdag, 08. april
17:00 – 18:00
Velkommen til visning!
Alle våre visninger har påmelding. På denne måten sikrer vi at våre meglere har god tid og på best mulig måte kan møte alle interessentene. Det er enkelt å melde seg på og like enkelt å melde seg av.
Husk å les salgsoppgaven i forkant!
Kontakt oss gjerne i forkant av visning om du har noen spørsmål.
Om boligen
Velkommen hjem til Skyttarbakken 31!
Familiebolig over tre plan med svært barnevennlig og populær beliggenhet på Lund Østre.
Av en rekke kvaliteter ønsker vi å fremheve:
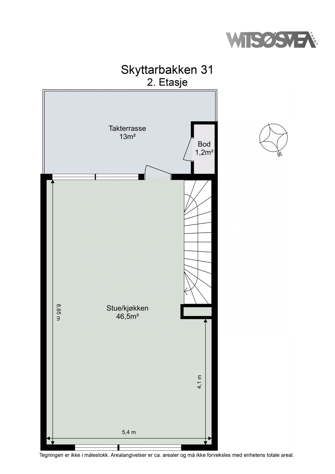
- Takterrasse med fantastiske utsikts- og solforhold og markterrasse.
- To flotte flislagte bad med bla. badekar og baderomsinnredning fra HTH.
- Fire soverom av gode størrelser på hhv. 8,7 - 7,3 - 6,7 og 10,7 m².
- Tidløst kjøkken fra kvalitetsleverandøren HTH med kjøkkenøy og integrerte hvitevarer fra Siemens.
- Fjernvarme som sørger for lavere strømutgifter og balansert ventilasjon med varmegjenvinning.
- Isolert garasje på 18 m² med Easee elbil-lader.
- Eget praktisk vaskerom med benkeplate, innredning opplegg for vaskemaskin og tørketrommel.
- God lagringsplass med sportsbod, innvendig bod og bod på terrasse.
- Skole, barnehage og kollektivtransport innenfor gangavstand.
- Svært barnevennlig beliggenhet med lekeplasser og marka rett i nærheten.
Velkommen til en hyggelig visning - husk påmelding.
Familiebolig over tre plan med svært barnevennlig og populær beliggenhet på Lund Østre.
Av en rekke kvaliteter ønsker vi å fremheve:
- Takterrasse med fantastiske utsikts- og solforhold og markterrasse.
- To flotte flislagte bad med bla. badekar og baderomsinnredning fra HTH.
- Fire soverom av gode størrelser på hhv. 8,7 - 7,3 - 6,7 og 10,7 m².
- Tidløst kjøkken fra kvalitetsleverandøren HTH med kjøkkenøy og integrerte hvitevarer fra Siemens.
- Fjernvarme som sørger for lavere strømutgifter og balansert ventilasjon med varmegjenvinning.
- Isolert garasje på 18 m² med Easee elbil-lader.
- Eget praktisk vaskerom med benkeplate, innredning opplegg for vaskemaskin og tørketrommel.
- God lagringsplass med sportsbod, innvendig bod og bod på terrasse.
- Skole, barnehage og kollektivtransport innenfor gangavstand.
- Svært barnevennlig beliggenhet med lekeplasser og marka rett i nærheten.
Velkommen til en hyggelig visning - husk påmelding.
NB: Knappen for å vise hele beskrivelsen har kun en visuell effekt.
NB: Knappen for å vise hele beskrivelsen har kun en visuell effekt.
Salgsoppgaven beskriver vesentlig og lovpålagt informasjon om eiendommen
Se komplett salgsoppgaveNyttige lenker
Nærområdet
ASK Eiendomsmegling Trondheim
Velkommen hjem
Annonseinformasjon
| FINN-kode | 457911742 |
|---|---|
| Sist endret | 30. mars 2026 16:07 |
| Referanse | 7-25-00080 |
Annonsene kan være mangelfulle i forhold til lovpålagt opplysningsplikt. Før bindende avtale inngås oppfordres interessenter til å innhente komplett informasjon fra meglerforetaket, selger eller utleier.







































