Bildegalleri

DnB Eiendom v/Joakim Erlien Grefstad tlf. 98066920 ønsker deg velkommen til Taraldsgårdsveita 4! En lekker- og stilfull selveier med en perfekt plassering midt i hjertet av byen!
TRONDHEIM SENTRUM
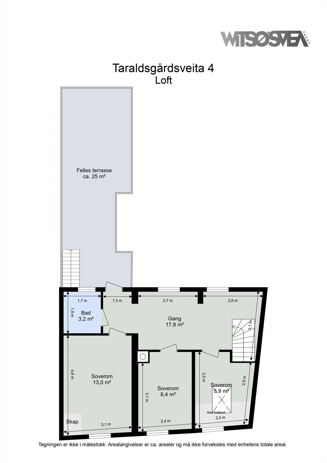
Stor selveierleilighet over 2 plan. 4 soverom, 2 bad. Nytt bad på loft fra 2023. 2 takterrasser
Prisantydning6 690 000 kr
Nøkkelinfo
- Boligtype
- Leilighet
- Eieform
- Selveier
- Soverom
- 4
- Internt bruksareal
- 120 m² (BRA-i)
- Bruksareal
- 131 m²
- Eksternt bruksareal
- 11 m² (BRA-e)
- Etasje
- 2
- Byggeår
- 1904
- Energimerking
- Rom
- 6
- Tomteareal
- 172 m² (eiet)
Fasiliteter
Takterrasse
Balkong/Terrasse
Bredbåndstilknytning
Offentlig vann/kloakk
Rolig
Sentralt
Turterreng
Visning
onsdag, 08. april
16:00 – 17:00
Velkommen til visning! Meld deg på ved å trykke "visningspåmelding" i våre boligannonser. Visning med megler til stede vil ikke bli avholdt uten påmeldinger. Ta gjerne kontakt med megler i forkant av visningen om du har spørsmål.
VisningspåmeldingOm boligen
Her kan du sikre deg en lekker og innholdsrik leilighet over to plan, med oppgradert bad (2023) og to felles takterrasser midt i Trondheim sentrum. Sentral klassisk trehusbygård fra ca. 1904. Leiligheten går over andre etasje og loft og har rikelig med soverom. To felles takterrasser. Herfra er det kun et par minutters gange til Torget, Byhaven og Olavshallen.
Høydepunkter:
Høydepunkter:
- Stor og luftig stue med åpen kjøkkenløsning
- Elegant kjøkkeninnredning med medfølgende int. hvitevarer
- 4 gode -og lune soverom
- 2 baderom - ett i hver etg, bad på loft oppgradert i 2023
- Privat bod på 8 m² i kjeller
- Gangavstand til Solsiden, dagligvare, restauranter, byliv og togstasjon/bussholdeplassVelkommen til en hyggelig visning!
NB: Knappen for å vise hele beskrivelsen har kun en visuell effekt.
NB: Knappen for å vise hele beskrivelsen har kun en visuell effekt.
Salgsoppgaven beskriver vesentlig og lovpålagt informasjon om eiendommen
Se komplett salgsoppgaveNyttige lenker
Nærområdet
DNB Eiendom AS
Verdifulle salg
Annonseinformasjon
| FINN-kode | 457903299 |
|---|---|
| Sist endret | 30. mars 2026 12:13 |
| Referanse | 818260008 |
Annonsene kan være mangelfulle i forhold til lovpålagt opplysningsplikt. Før bindende avtale inngås oppfordres interessenter til å innhente komplett informasjon fra meglerforetaket, selger eller utleier.



























