Bildegalleri

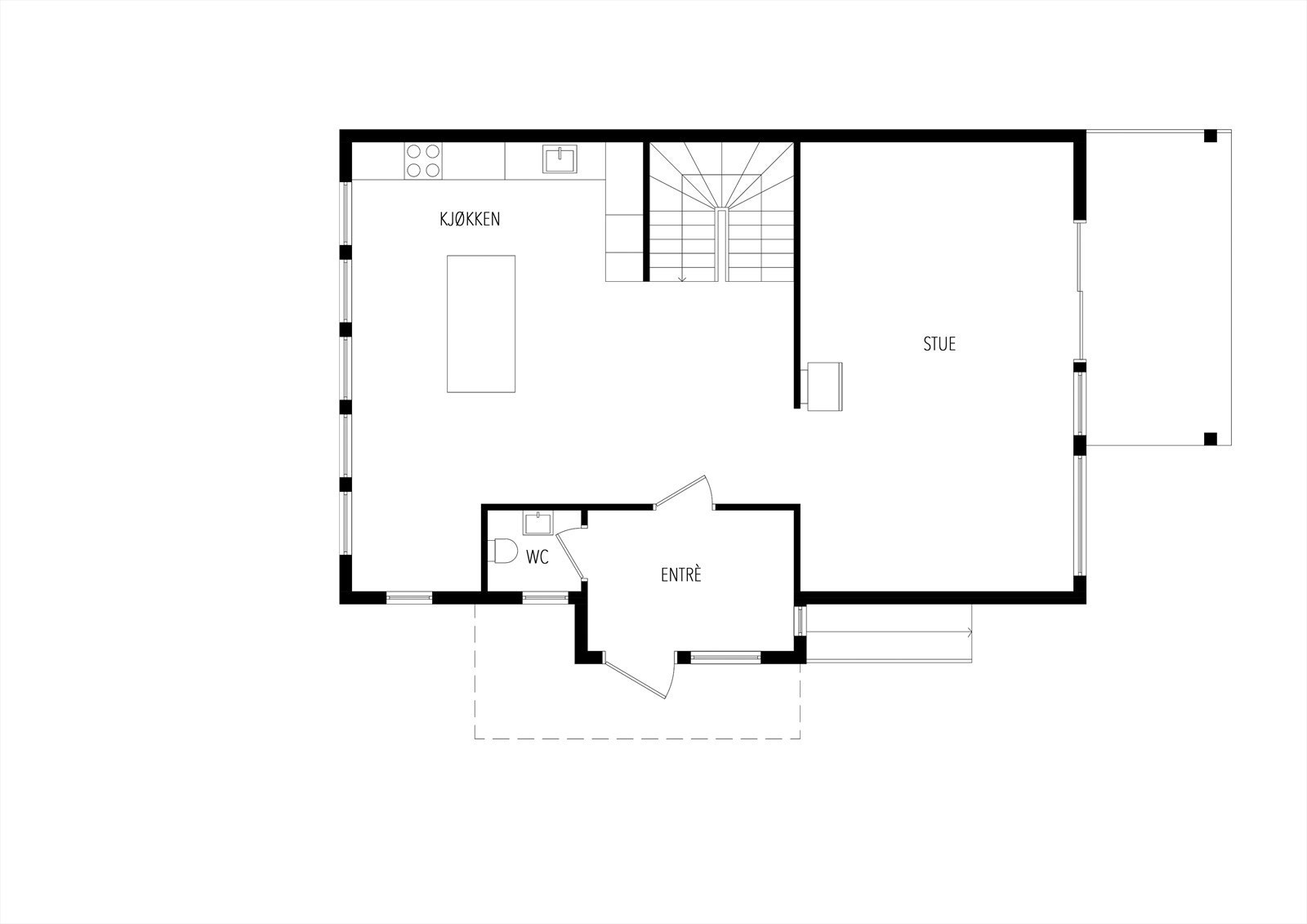
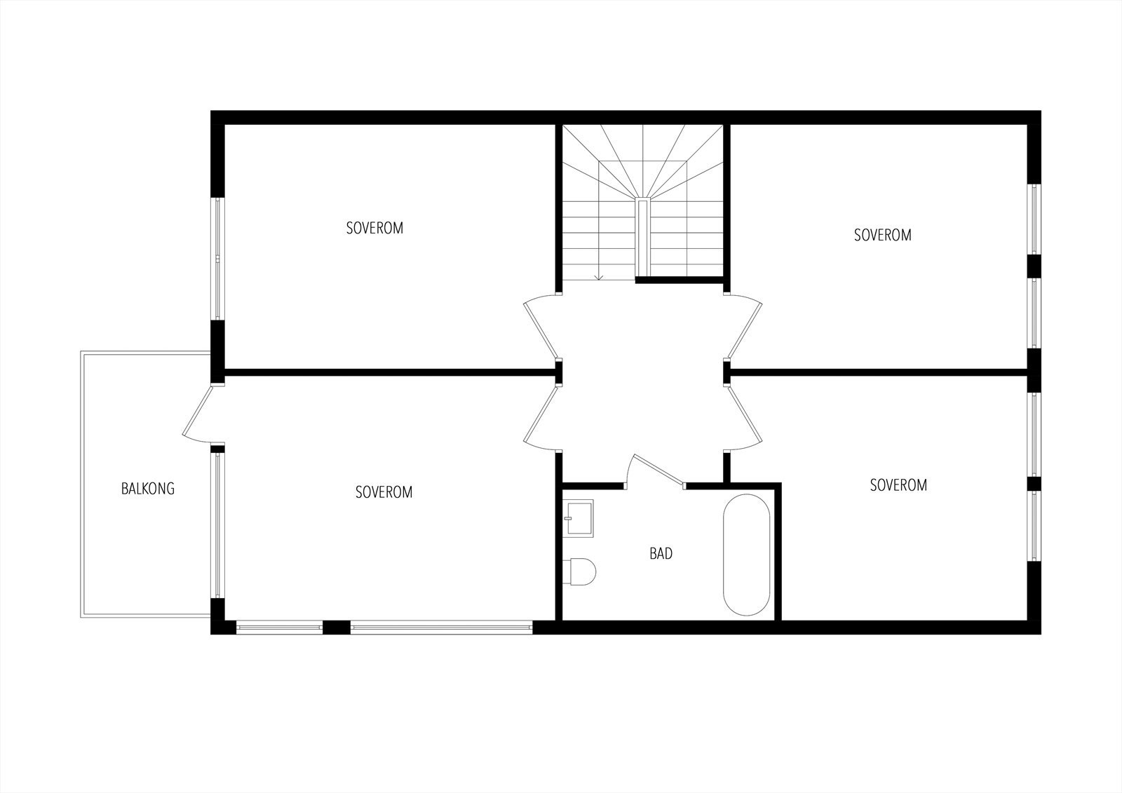
Velkommen til Smågamyrtunet 6, en innholdsrik familiebolig over 3 plan med 4 soverom.
Godeset
Flott og romslig enebolig med attraktiv og familievennlig beliggenhet | 4 soverom | Flotte uteplasser | Garasje
Prisantydning6 650 000 kr
Nøkkelinfo
- Boligtype
- Enebolig
- Eieform
- Selveier
- Soverom
- 4
- Internt bruksareal
- 197 m² (BRA-i)
- Bruksareal
- 201 m²
- Eksternt bruksareal
- 4 m² (BRA-e)
- Balkong/Terrasse
- 29 m² (TBA)
- Byggeår
- 1987
- Energimerking
- Rom
- 6
- Tomteareal
- 217 m² (eiet)
Fasiliteter
Balkong/Terrasse
Barnevennlig
Garasje/P-plass
Hage
Peis/Ildsted
Rolig
Sentralt
Turterreng
Om boligen
Velkommen til Smågamyrtunet 6! Denne flotte eneboligen fra 1987 er perfekt for barnefamilien som ønsker et hjem i et familievennlig og fredelig område. Eiendommen holder en gjennomgående godt vedlikeholdt standard, med flere oppgraderinger, blant annet et stilrent bad fra 2017. Med hele fire romslige soverom, to stuer og et stort, praktisk kjøkken er dette en bolig som innbyr til både hygge og funksjonalitet.
Utvendig kan du glede deg over solrike uteplasser og en flott opparbeidet uteplass med vakre planter, trær og bed et ideelt sted for både avslapning og lek. Området er svært barnevennlig med lite trafikk og kort vei til skole, butikk og turområder.
Parkering i garasje like ved.
Velkommen til visning!
Utvendig kan du glede deg over solrike uteplasser og en flott opparbeidet uteplass med vakre planter, trær og bed et ideelt sted for både avslapning og lek. Området er svært barnevennlig med lite trafikk og kort vei til skole, butikk og turområder.
Parkering i garasje like ved.
Velkommen til visning!
NB: Knappen for å vise hele beskrivelsen har kun en visuell effekt.
NB: Knappen for å vise hele beskrivelsen har kun en visuell effekt.
Salgsoppgaven beskriver vesentlig og lovpålagt informasjon om eiendommen
Se komplett salgsoppgaveNyttige lenker
Nærområdet
EiendomsMegler 1 Stavanger
En del av Sparebank 1 Sør-Norge
Annonseinformasjon
| FINN-kode | 457901747 |
|---|---|
| Sist endret | 30. mars 2026 10:23 |
| Referanse | 2211250111 |
Annonsene kan være mangelfulle i forhold til lovpålagt opplysningsplikt. Før bindende avtale inngås oppfordres interessenter til å innhente komplett informasjon fra meglerforetaket, selger eller utleier.



































