Bildegalleri

Velkommen til Munkajordtunet 17, presentert av Eiendomsmegler 1 v/ Ingeborg Gangsøy Pedersen. Foto: Vestbris
Vedavågen
Flott og lettstelt enebolig med garasje - Kjøkken 2023 - Usjenert terrasse med hagestue - Sentralt!
Prisantydning2 990 000 kr
Nøkkelinfo
- Boligtype
- Enebolig
- Eieform
- Selveier
- Soverom
- 3
- Internt bruksareal
- 115 m² (BRA-i)
- Bruksareal
- 152 m²
- Eksternt bruksareal
- 37 m² (BRA-e)
- Balkong/Terrasse
- 42 m² (TBA)
- Byggeår
- 2005
- Energimerking
- Rom
- 4
- Tomteareal
- 297 m² (eiet)
Visning
torsdag, 09. april
15:30 – 16:15
Ønsker du å delta på visningen ber vi deg melde deg på slik at vi vet at du kommer. Da kan vi bistå alle best mulig og gi deg tiden du trenger på visningen. Kontakt gjerne megler før visning hvis du har spørsmål. Visningen avholdes bare dersom det er påmeldte. Hvis det ikke er oppsatt visningstidspunkt eller tidspunkt ikke passer, kontakt megler.
VisningspåmeldingOm boligen
Velkommen til Munkajordtunet 17, en svært kjekk og praktisk bolig med garasje og sentral beliggenhet i Veavågen.
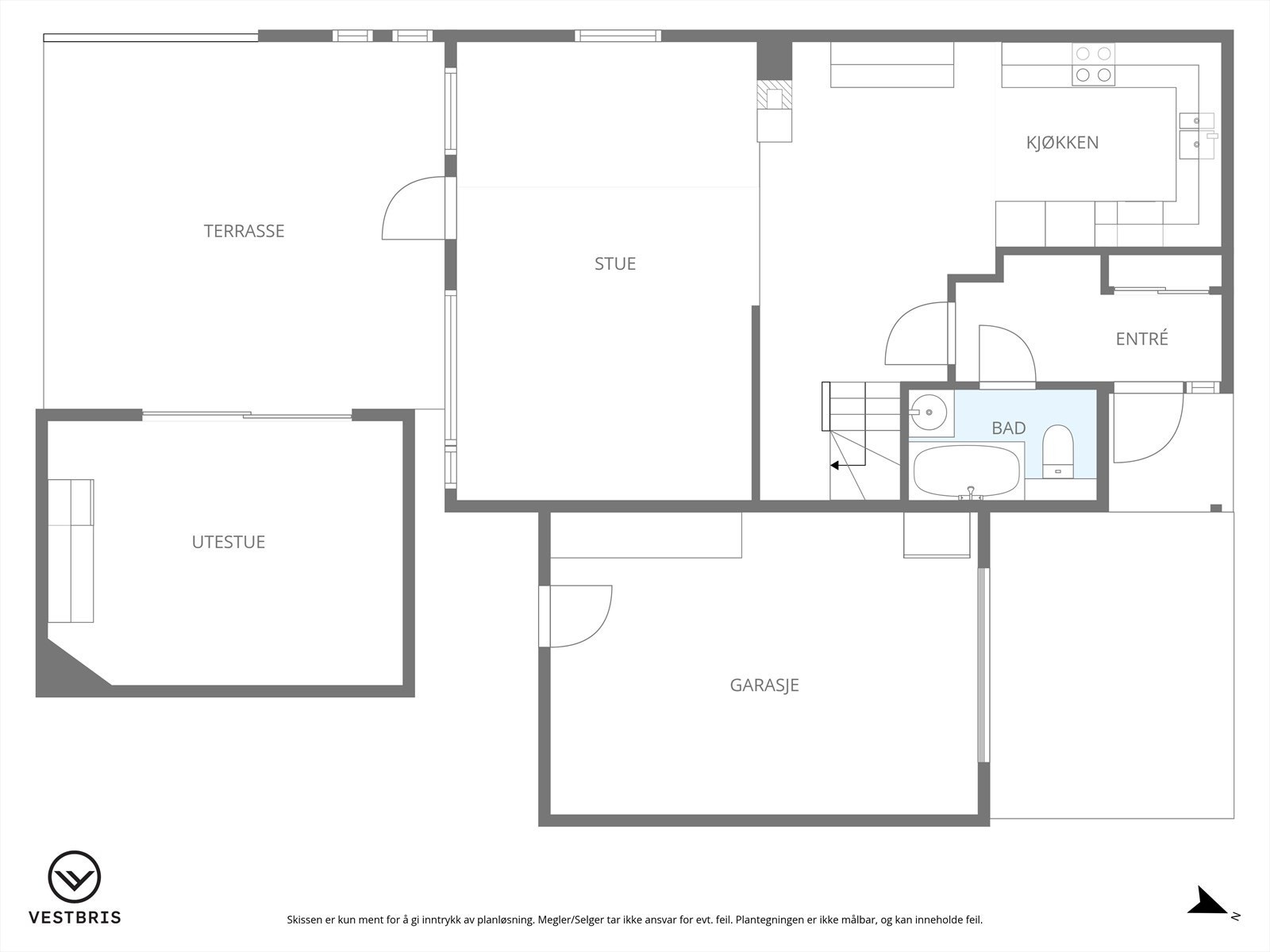
Boligen er over to plan og inneholder:
BRA-i første etasje: Vindfang, baderom, samt stue og kjøkken i åpen løsning.
BRA-i andre etasje: Gang, bod, bad/ vaskerom samt tre soverom.
Garasje og hagestue.
Boligen holder gjennomgående god standard, og har i løpet av de siste årene hatt flere oppgraderende tiltak:
- Ny lekker kjøkkeninnredning i 2023.
- Nye gulvoverflater i stue og kjøkken i 2023.
- Det ble montert vedovn i stuen i 2023.
- Ny varmepumpe i 2022.
Boligen ligger attraktivt og barnevennlig med gangavstand til Vea barneskole. Gode bussforbindelser med busstopp like ved. I tillegg er det kort avstand til butikker, barnehage, Danielsen ungdomsskole og idrettsanlegg.
Boligen er over to plan og inneholder:
BRA-i første etasje: Vindfang, baderom, samt stue og kjøkken i åpen løsning.
BRA-i andre etasje: Gang, bod, bad/ vaskerom samt tre soverom.
Garasje og hagestue.
Boligen holder gjennomgående god standard, og har i løpet av de siste årene hatt flere oppgraderende tiltak:
- Ny lekker kjøkkeninnredning i 2023.
- Nye gulvoverflater i stue og kjøkken i 2023.
- Det ble montert vedovn i stuen i 2023.
- Ny varmepumpe i 2022.
Boligen ligger attraktivt og barnevennlig med gangavstand til Vea barneskole. Gode bussforbindelser med busstopp like ved. I tillegg er det kort avstand til butikker, barnehage, Danielsen ungdomsskole og idrettsanlegg.
NB: Knappen for å vise hele beskrivelsen har kun en visuell effekt.
NB: Knappen for å vise hele beskrivelsen har kun en visuell effekt.
Salgsoppgaven beskriver vesentlig og lovpålagt informasjon om eiendommen
Se komplett salgsoppgaveNyttige lenker
Nærområdet
EiendomsMegler 1 Karmøy
En del av Sparebank 1 Sør-Norge
Annonseinformasjon
| FINN-kode | 457884477 |
|---|---|
| Sist endret | 30. mars 2026 08:00 |
| Referanse | 2502260034 |
Annonsene kan være mangelfulle i forhold til lovpålagt opplysningsplikt. Før bindende avtale inngås oppfordres interessenter til å innhente komplett informasjon fra meglerforetaket, selger eller utleier.




































