Bildegalleri

EiendomsMegler1 ved Mette Krokås Selander presenterer Slottsbrugata 20B! Foto: Inbovi
Hovenga
Flott leilighet med 2 soverom | Pent kjøkken fra 2021 | Sentralt på Hovenga
Prisantydning1 990 000 kr
Nøkkelinfo
- Boligtype
- Leilighet
- Eieform
- Andel
- Soverom
- 2
- Internt bruksareal
- 67 m² (BRA-i)
- Bruksareal
- 79 m²
- Eksternt bruksareal
- 12 m² (BRA-e)
- Balkong/Terrasse
- 9 m² (TBA)
- Etasje
- 2
- Byggeår
- 1954
- Energimerking
- Tomteareal
- 2 796 m² (eiet)
Fasiliteter
Balkong/Terrasse
Barnevennlig
Garasje/P-plass
Rolig
Sentralt
Visning
torsdag, 09. april
16:00 – 17:00
Ønsker du å delta på visning så ber vi om at du melder deg på slik at vi vet at du kommer og slik at vi kan orientere deg om bud. Visninger hvor det ikke er påmeldte på forhånd vil ikke bli avholdt.
VisningspåmeldingOm boligen
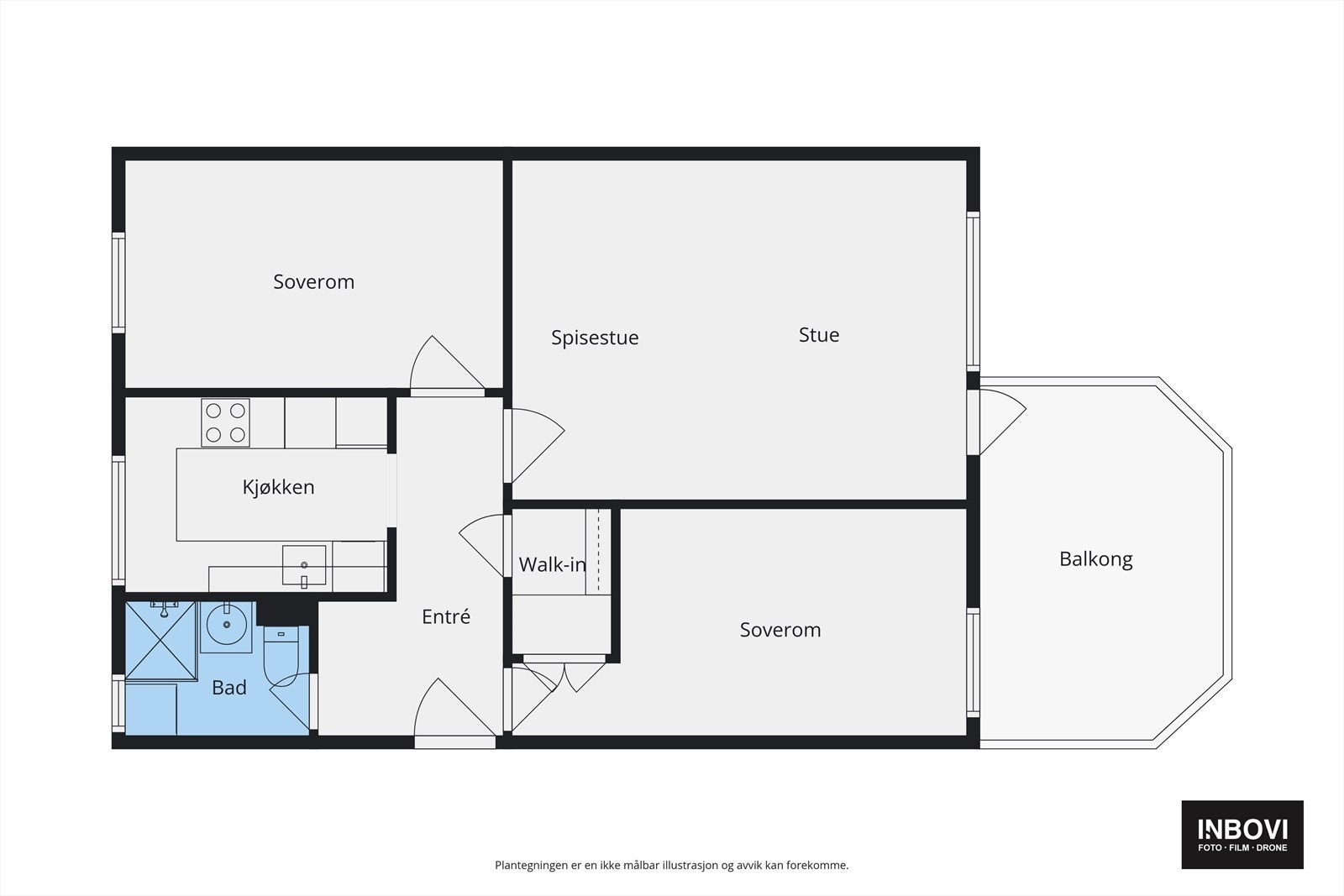
Velholdt og lekker 3-roms leilighet sentralt på Hovenga, med god planløsning og veranda med fin utsikt ut over nærområdet. Fra boligen er det nærhet til barnehage, skoler, idrettsanlegg og fine turområder.
Leiligheten ligger lunt og fint i 2.etg og inneholder entré, stue, kjøkken, to soverom, bod og bad. I tillegg er det en bod på loft og to boder i kjeller.
Boligen er godt oppgradert i senere år med bl.a. vinduer og terrassedør fra 2015, nytt kjøkken med integrerte hvitevarer i 2021 og laminat gulv fra 2021.
Det er kort avstand til Hovenga senteret og flere matbutikker, hyggelige Osebakken og Porsgrunn sentrum med alle fasiliteter.
Leiligheten ligger lunt og fint i 2.etg og inneholder entré, stue, kjøkken, to soverom, bod og bad. I tillegg er det en bod på loft og to boder i kjeller.
Boligen er godt oppgradert i senere år med bl.a. vinduer og terrassedør fra 2015, nytt kjøkken med integrerte hvitevarer i 2021 og laminat gulv fra 2021.
Det er kort avstand til Hovenga senteret og flere matbutikker, hyggelige Osebakken og Porsgrunn sentrum med alle fasiliteter.
NB: Knappen for å vise hele beskrivelsen har kun en visuell effekt.
NB: Knappen for å vise hele beskrivelsen har kun en visuell effekt.
Salgsoppgaven beskriver vesentlig og lovpålagt informasjon om eiendommen
Se komplett salgsoppgaveNyttige lenker
Nærområdet
EiendomsMegler 1 Porsgrunn
et foretak i SpareBank 1 Sør-Norge konsernet
Annonseinformasjon
| FINN-kode | 457883696 |
|---|---|
| Sist endret | 30. mars 2026 07:48 |
| Referanse | 1412250306 |
Annonsene kan være mangelfulle i forhold til lovpålagt opplysningsplikt. Før bindende avtale inngås oppfordres interessenter til å innhente komplett informasjon fra meglerforetaket, selger eller utleier.



























