Bildegalleri

Robin Lauritzen v/ Krogsveen ønsker velkommen til Dragonstien 99!
Ellingsrud
Strøken 3-roms hjørneleilighet- svært høy standard. Kun TG1 | Garasjeplass | Heis| God intern beliggenhet| Markanært
Prisantydning4 400 000 kr
Nøkkelinfo
- Boligtype
- Leilighet
- Eieform
- Andel
- Soverom
- 2
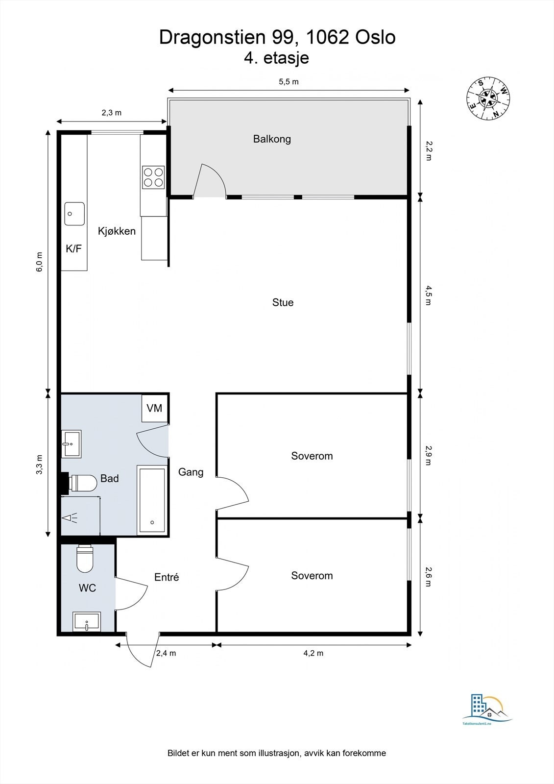
- Internt bruksareal
- 84 m² (BRA-i)
- Bruksareal
- 92 m²
- Eksternt bruksareal
- 8 m² (BRA-e)
- Balkong/Terrasse
- 12 m² (TBA)
- Etasje
- 4
- Byggeår
- 1981
- Energimerking
- Rom
- 3
- Tomteareal
- 43 027 m² (eiet)
Fasiliteter
Balkong/Terrasse
Barnevennlig
Bredbåndstilknytning
Fellesvaskeri
Garasje/P-plass
Heis
Kjæledyr tillatt
Kabel-TV
Offentlig vann/kloakk
Rolig
Sentralt
Utsikt
Turterreng
Om boligen
Velkommen! Her får du en ettertraktet beliggenhet kombinert med svært høy standard på Ellingsrud.
Leiligheten ligger i et barnevennlig nabolag, med Østmarkas turmuligheter rett utenfor døren. Fra stuen er det utgang til en romslig balkong med gode solforhold. Kjøkkenet fra Sigdal har integrerte hvitevarer og åpen løsning mot spiseplassen. Som en del av et OBOS-tilknyttet borettslag, er TV og internett inkludert i felleskostnadene.
Høydepunkter:
Leiligheten ligger i et barnevennlig nabolag, med Østmarkas turmuligheter rett utenfor døren. Fra stuen er det utgang til en romslig balkong med gode solforhold. Kjøkkenet fra Sigdal har integrerte hvitevarer og åpen løsning mot spiseplassen. Som en del av et OBOS-tilknyttet borettslag, er TV og internett inkludert i felleskostnadene.
Høydepunkter:
- Optimal planløsning med lys fra to sider
- Kun TG0/1
- Garasjeplass i felles anlegg med mulighet for elbillader
- Flislagt bad med badekar, dusjnisje og gulvvarme
- Separat gjestetoalett med gulvvarme
- To boder for rikelig med lagringsplass
- Kort vei til T-bane og buss
Velkommen til visning!
NB: Knappen for å vise hele beskrivelsen har kun en visuell effekt.
NB: Knappen for å vise hele beskrivelsen har kun en visuell effekt.
Salgsoppgaven beskriver vesentlig og lovpålagt informasjon om eiendommen
Se komplett salgsoppgaveNyttige lenker
Nærområdet
Krogsveen Hasle
Verdien av en god megler.
Annonseinformasjon
| FINN-kode | 457830220 |
|---|---|
| Sist endret | 30. mars 2026 08:44 |
| Referanse | KR37.26126 |
Annonsene kan være mangelfulle i forhold til lovpålagt opplysningsplikt. Før bindende avtale inngås oppfordres interessenter til å innhente komplett informasjon fra meglerforetaket, selger eller utleier.

































