Bildegalleri

Velkommen til Sørbøbakken 8 A, presentert av PrivatMegleren Haferkamp v/ Emma Fredrikke Jakobsen
Toppleilighet, innbydende 3-roms selveier fra 2010 - Lun, solrik balkong - Garasjeplass m/lader - Rolig og barnevennlig
Nøkkelinfo
- Boligtype
- Leilighet
- Eieform
- Selveier
- Soverom
- 2
- Internt bruksareal
- 63 m² (BRA-i)
- Bruksareal
- 68 m²
- Eksternt bruksareal
- 5 m² (BRA-e)
- Balkong/Terrasse
- 7 m² (TBA)
- Etasje
- 3
- Byggeår
- 2010
- Energimerking
- Rom
- 3
- Tomt
- Eiet
- Boligselgerforsikring
- Ja
Fasiliteter
Visning
Om boligen
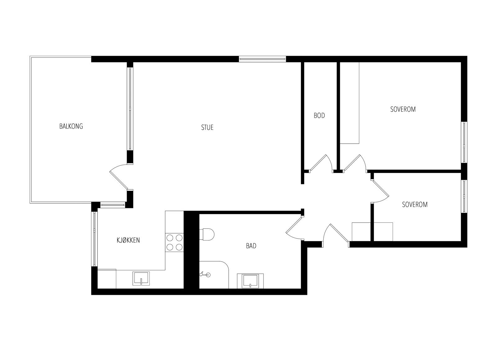
Velkommen til Sørbøbakken 8 A - en luftig, gjennomgående og moderne 3-roms toppleilighet fra 2010. Beliggenheten er særdeles attraktiv og barnevennlig, med nærhet til populære turområder, lekeplasser, busstopp og lekeplass, samt kort vei til skoler, barnehager og idrettsanlegg. Videre kan eiendommen skilte med grønne, velstelte fellesområder, garasjeplass med elbillader og en lun balkong på ca. 7 kvm med gode solforhold.
Leiligheten fremstår med tidsmessige fargevalg, balansert ventilasjon og pent laminatgulv fra 2024. Stuen og kjøkkenet danner et innbydende allrom, og kjøkkenet fra 2023 har integrerte hvitevarer. Videre er det et helfliset bad/wc/vaskerom, en pen entré og to gode soverom med garderobe, og lagringsplass finnes i en innebod og i en disponibel kjellerbod, samt fellesbod.
Salgsoppgaven beskriver vesentlig og lovpålagt informasjon om eiendommen
Se komplett salgsoppgaveNyttige lenker
Nærområdet

PrivatMegleren Haferkamp & Partnere
Annonseinformasjon
| FINN-kode | 457632288 |
|---|---|
| Sist endret | 31. mars 2026 07:31 |
| Referanse | 301250125 |
Annonsene kan være mangelfulle i forhold til lovpålagt opplysningsplikt. Før bindende avtale inngås oppfordres interessenter til å innhente komplett informasjon fra meglerforetaket, selger eller utleier.
























