Bildegalleri

Velkommen til Gloppegata 25 - Lekker leilighet med alt du skulle trenge både inne og ute. Foto: Aina Østebøvik Olsen
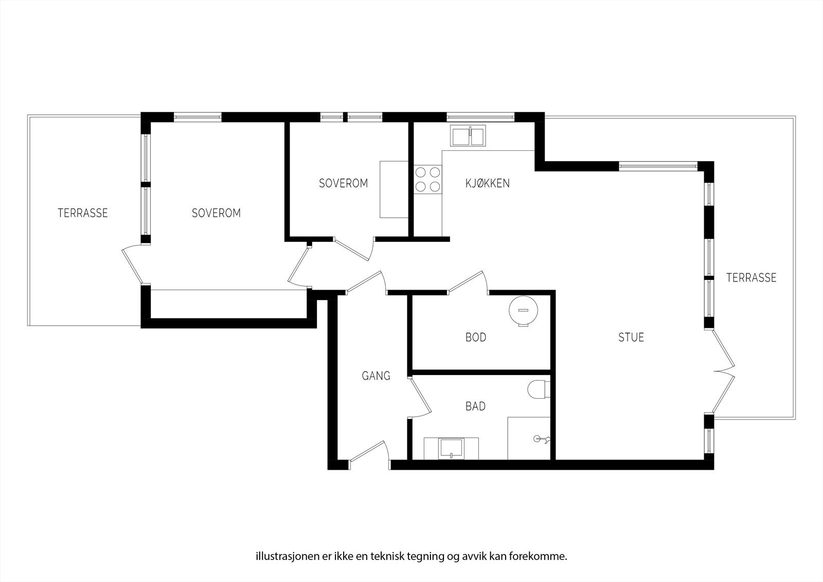
Arealeffektiv og lekker leilighet med to balkonger. Garasjeplass, heis, utsikt og felles utendørs svømmebasseng m.m
Prisantydning4 590 000 kr
Nøkkelinfo
- Boligtype
- Leilighet
- Eieform
- Selveier
- Soverom
- 2
- Internt bruksareal
- 72 m² (BRA-i)
- Bruksareal
- 86 m²
- Eksternt bruksareal
- 5 m² (BRA-e)
- Innglasset balkong
- 9 m² (BRA-b)
- Balkong/Terrasse
- 11 m² (TBA)
- Etasje
- 4
- Byggeår
- 2019
- Energimerking
- Rom
- 3
- Tomteareal
- 1 433 m² (eiet)
Fasiliteter
Balkong/Terrasse
Barnevennlig
Bredbåndstilknytning
Garasje/P-plass
Heis
Kjæledyr tillatt
Offentlig vann/kloakk
Rolig
Sentralt
Utsikt
Bademulighet
Fiskemulighet
Turterreng
Lademulighet
Visning
onsdag, 08. april
16:00 – 16:45
For at vår megler og selger skal kunne gi deg den beste oppfølgingen og kjøpsopplevelsen er det obligatorisk påmelding til alle våre visninger. Dersom ditt reserverte tidspunkt likevel ikke kan benyttes trenger vi beskjed så tidlig som mulig sånn at vi kan finne en alternativ løsning. Vi har alltid tid til deg. Visninger uten påmeldte deltagere avlyses.
VisningspåmeldingOm boligen
Boligsameiet i seg selv holder en høy standard med eksklusiv felles gang, heis, utendørs oppvarmet basseng, fotball-løkke, lekeområder og mer.
Leiligheten er arealeffektiv og har 2 soverom. Hovedsoverom med skyvedørsgarderobe, separat vaskerom og åpen løsning mellom stue og kjøkken. Fra stuen er det utgang til stor sørvendt balkong med fin utsikt. Denne leiligheten har også balkong på nord siden.
- Parkering i garasje med elbillader.
- Fin utsikt til sundet fra stor balkong.
- Smart og arealeffektiv planløsning.
- Vannbåren gulvvarme.
Leiligheten er arealeffektiv og har 2 soverom. Hovedsoverom med skyvedørsgarderobe, separat vaskerom og åpen løsning mellom stue og kjøkken. Fra stuen er det utgang til stor sørvendt balkong med fin utsikt. Denne leiligheten har også balkong på nord siden.
- Parkering i garasje med elbillader.
- Fin utsikt til sundet fra stor balkong.
- Smart og arealeffektiv planløsning.
- Vannbåren gulvvarme.
NB: Knappen for å vise hele beskrivelsen har kun en visuell effekt.
NB: Knappen for å vise hele beskrivelsen har kun en visuell effekt.
Salgsoppgaven beskriver vesentlig og lovpålagt informasjon om eiendommen
Se komplett salgsoppgaveNyttige lenker
Nærområdet
Proaktiv Eiendomsmegling Haugesund
Alltid tid til deg
Annonseinformasjon
| FINN-kode | 457600990 |
|---|---|
| Sist endret | 27. mars 2026 20:04 |
| Referanse | 1240260027 |
Annonsene kan være mangelfulle i forhold til lovpålagt opplysningsplikt. Før bindende avtale inngås oppfordres interessenter til å innhente komplett informasjon fra meglerforetaket, selger eller utleier.







































