Bildegalleri

Velkommen til Hafrsfjordgata 55!
Meget pen del av horisontaldelt tomannsbolig med stort og skjermet hageområde - Rolig og attraktivt boligområde
Prisantydning4 300 000 kr
Nøkkelinfo
- Boligtype
- Leilighet
- Eieform
- Selveier
- Soverom
- 2
- Internt bruksareal
- 82 m² (BRA-i)
- Bruksareal
- 89 m²
- Eksternt bruksareal
- 7 m² (BRA-e)
- Balkong/Terrasse
- 21 m² (TBA)
- Etasje
- 1
- Byggeår
- 1920
- Energimerking
- Rom
- 3
- Tomteareal
- 280 m² (eiet)
Fasiliteter
Balkong/Terrasse
Barnevennlig
Bredbåndstilknytning
Hage
Kjæledyr tillatt
Offentlig vann/kloakk
Parkett
Peis/Ildsted
Rolig
Sentralt
Turterreng
Visning
tirsdag, 07. april
16:00 – 17:00
Velkommen til visning! Husk å melde deg på visningen ved å trykke på knappen visningspåmelding under, eller ta kontakt med megler for å gjøre en avtale. Visninger uten påmeldte blir avlyst.
VisningspåmeldingOm boligen
Velkommen til Hafrsfjordgata 55!
En meget pen del av HD tomannsbolig med en usedvanlig sjarmerende og attraktiv beliggenhet på Våland. Her kan man nyte en tilbaketrukket livsstil, samtidig som man bare er 10 minutters gange fra sentrumskjernen.
Herlig og solrikt hageområde som byr på sol fra formiddag til godt ut på kvelden. I tillegg disponerer boligen et privat uteområde med romslig terrasse, steinheller og bod. En særegen og svært gjennomført leilighet man ikke vil gå glipp av!
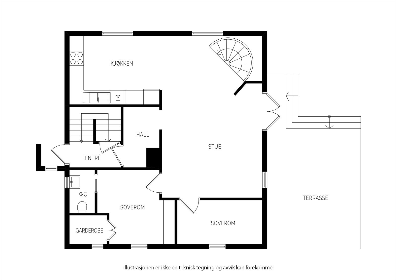
Høy 1. etasje: Entré, åpen stue- og kjøkkenløsning, 2 soverom, toalettrom
Kjeller: Helfliset bad og kjellerstue/gang.
God standard med:
- Kjøkken fra 2020
- Gulvvarme i hele kjelleren
- Enstavs herdet eikeparkett fra 2023
- Sig. Halvorsen bad fra 2011
- Toalett i begge etasjer
Parkering i gate.
Velkommen!
En meget pen del av HD tomannsbolig med en usedvanlig sjarmerende og attraktiv beliggenhet på Våland. Her kan man nyte en tilbaketrukket livsstil, samtidig som man bare er 10 minutters gange fra sentrumskjernen.
Herlig og solrikt hageområde som byr på sol fra formiddag til godt ut på kvelden. I tillegg disponerer boligen et privat uteområde med romslig terrasse, steinheller og bod. En særegen og svært gjennomført leilighet man ikke vil gå glipp av!
Høy 1. etasje: Entré, åpen stue- og kjøkkenløsning, 2 soverom, toalettrom
Kjeller: Helfliset bad og kjellerstue/gang.
God standard med:
- Kjøkken fra 2020
- Gulvvarme i hele kjelleren
- Enstavs herdet eikeparkett fra 2023
- Sig. Halvorsen bad fra 2011
- Toalett i begge etasjer
Parkering i gate.
Velkommen!
NB: Knappen for å vise hele beskrivelsen har kun en visuell effekt.
NB: Knappen for å vise hele beskrivelsen har kun en visuell effekt.
Salgsoppgaven beskriver vesentlig og lovpålagt informasjon om eiendommen
Se komplett salgsoppgaveNyttige lenker
Nærområdet
Eiendomsmegler Norge Stavanger
Best der du bor
Annonseinformasjon
| FINN-kode | 457599187 |
|---|---|
| Sist endret | 30. mars 2026 06:35 |
| Referanse | 20250102 |
Annonsene kan være mangelfulle i forhold til lovpålagt opplysningsplikt. Før bindende avtale inngås oppfordres interessenter til å innhente komplett informasjon fra meglerforetaket, selger eller utleier.












































