Bildegalleri

Velkommen til Olaf Schous vei 22 - Presentert av Kjersti N. Bråthen v/EIE eiendomsmegling. Foto: Luma Foto AS (Einar Horsberg)
Sinsen / Rosenhoff
Attraktiv 2-roms selveierleilighet med separat kjøkken og god planløsning. IN-ordning. Sentral beliggenhet. *Parkering.
Prisantydning4 290 000 kr
Nøkkelinfo
- Boligtype
- Leilighet
- Eieform
- Selveier
- Soverom
- 1
- Internt bruksareal
- 46 m² (BRA-i)
- Bruksareal
- 48 m²
- Eksternt bruksareal
- 2 m² (BRA-e)
- Etasje
- 1
- Byggeår
- 1937
- Energimerking
- Rom
- 2
- Tomteareal
- 1 485 m² (eiet)
Fasiliteter
Garasje/P-plass
Kabel-TV
Offentlig vann/kloakk
Turterreng
Vaktmester-/vektertjeneste
Sentralt
Bredbåndstilknytning
Rolig
Om boligen
Velkommen til denne flotte 2-roms leiligheten i Olaf Schous vei 22 - Presentert av Kjersti N. Bråthen v/EIE eiendomsmegling.
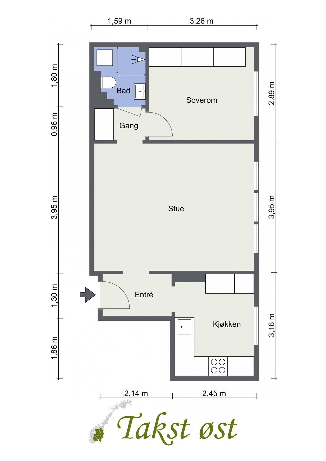
Denne leiligheten byr på en svært god planløsning med en romslig og lys stue, et pent separat kjøkken, et behagelig soverom med plass til dobbeltseng og garderobeskap og et delikat, flislagt bad fra 2014.
Beliggenheten på Sinsen gir deg det beste fra to verdener; Her bor du rolig og tilbaketrukket, men med kort vei til alt du trenger i hverdagen. I tillegg er det flotte turmuligheter i nydelige Torshovdalen, perfekt for avslappende sommerdager på gressplenen eller en joggetur.
Denne leiligheten byr på en svært god planløsning med en romslig og lys stue, et pent separat kjøkken, et behagelig soverom med plass til dobbeltseng og garderobeskap og et delikat, flislagt bad fra 2014.
- IN-ordning: betal ned fellesgjelden og få lavere felleskostnader
- Separat kjøkken
- A-konto fjernvarme og TV/bredbånd inkl. i felleskostnadene
- Høy 1.etg.
- Ekstra oppbevaringsplass i kjellerbod på 2,4 kvm
- Mulighet for leie av parkeringsplass etter venteliste, ingen på venteliste p.t.
- Sentral beliggenhet
Beliggenheten på Sinsen gir deg det beste fra to verdener; Her bor du rolig og tilbaketrukket, men med kort vei til alt du trenger i hverdagen. I tillegg er det flotte turmuligheter i nydelige Torshovdalen, perfekt for avslappende sommerdager på gressplenen eller en joggetur.
NB: Knappen for å vise hele beskrivelsen har kun en visuell effekt.
NB: Knappen for å vise hele beskrivelsen har kun en visuell effekt.
Salgsoppgaven beskriver vesentlig og lovpålagt informasjon om eiendommen
Se komplett salgsoppgaveNyttige lenker
Nærområdet
EIE eiendomsmegling Sinsen & Carl Berner
Annonseinformasjon
| FINN-kode | 457592276 |
|---|---|
| Sist endret | 30. mars 2026 12:16 |
| Referanse | 92260032 |
Annonsene kan være mangelfulle i forhold til lovpålagt opplysningsplikt. Før bindende avtale inngås oppfordres interessenter til å innhente komplett informasjon fra meglerforetaket, selger eller utleier.



























