Bildegalleri

Foto: Martin Nilsen | Velkommen til Trysilfjellet Hytteområde 229, presentert av Elias Kaulum v/ PrivatMegleren Trysil!
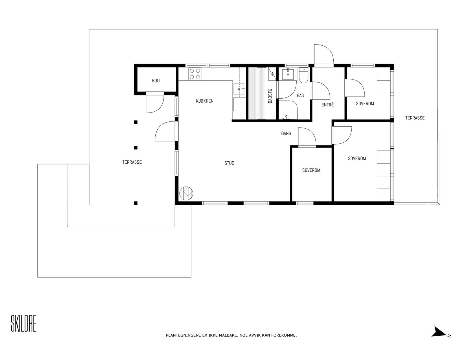
Ferieklar familiehytte totalrenovert i 2022, vakker utsikt og skibusstopp kun ~5 m unna | 3 soverom | Badstue
Prisantydning4 290 000 kr
- Omkostninger
- 108 340 kr
- Totalpris
- 4 398 340 kr
- Kommunale avg.
- 13 435 kr per år
- Eiendomsskatt
- 2 505 kr per år
Nøkkelinfo
- Beliggenhet
- På fjellet
- Boligtype
- Hytte
- Eieform
- Selveier
- Internt bruksareal
- 57 m² (BRA-i)
- Bruksareal
- 59 m²
- Eksternt bruksareal
- 2 m² (BRA-e)
- Balkong/Terrasse
- 73 m² (TBA)
- Tomteareal
- 1 003 m² (eiet)
- Byggeår
- 1984
- Soverom
- 3
- Rom
- 4
- Sengeplasser
- 9
- Energimerking
Fasiliteter
Balkong/Terrasse
Offentlig vann/kloakk
Peis/Ildsted
Turterreng
Utsikt
Alpinanlegg
Bilvei frem
Golfbane
Innlagt strøm
Innlagt vann
Visning
søndag, 12. april
12:00 – 12:45
Velkommen til visning!
Alle våre visninger har påmelding. På denne måten sikrer vi at megler har god oversikt og tid til å imøtekomme alle interessenter på beste måte. Dette er veldig verdifullt for boligkjøpere og for oss. Det er enkelt å melde seg på, og du kan like enkelt melde deg av. Kontakt også gjerne megler i forkant av visning dersom du har spørsmål.
Husk å lese komplett salgsoppgave før visning. Bestill komplett, utskriftsvennlig salgsoppgave.
VisningspåmeldingOm boligen
PrivatMegleren Trysil v/ Elias Kaulum har gleden av å presentere vakre Trysilfjell Hytteområde 229.
Innvendig nyrenovert fritidsbolig fra 2022, med friske overflater i alle rom og ny isolasjon i tak og vegger. Store vindusflater, god takhøyde og åpen planløsning skaper en luftig og behagelig atmosfære. Innvendig fremstår hytten innbydende, med alle nødvendige fasiliteter for det perfekte feriehjemmet.
Hytta har naturskjønn og flott utsikt. Førsteklasses langrennsløyper over vidder med fantastisk naturlandskap ligger like ved, og skibussen stopper rett utenfor eiendommens grenser, noe som gir enkel tilgang til alpinanlegget.
Kort fortalt:
- Totalrenovert i 2022, inn- og utvendig
- Hytta selges møblert med møbler i god kvalitet, nye fra 2022.
- Tre soverom, med 7+ sengeplasser.
- Bad med badstue
- Solrik terrasse med vidstrakt utsikt
- Moderne peis og WiFi panelovner i alle rom
- Skibussen stopper kun ca. 5m fra eiendommens grense.
Kontakt megler for privatvisning på +47 412 36 026
Innvendig nyrenovert fritidsbolig fra 2022, med friske overflater i alle rom og ny isolasjon i tak og vegger. Store vindusflater, god takhøyde og åpen planløsning skaper en luftig og behagelig atmosfære. Innvendig fremstår hytten innbydende, med alle nødvendige fasiliteter for det perfekte feriehjemmet.
Hytta har naturskjønn og flott utsikt. Førsteklasses langrennsløyper over vidder med fantastisk naturlandskap ligger like ved, og skibussen stopper rett utenfor eiendommens grenser, noe som gir enkel tilgang til alpinanlegget.
Kort fortalt:
- Totalrenovert i 2022, inn- og utvendig
- Hytta selges møblert med møbler i god kvalitet, nye fra 2022.
- Tre soverom, med 7+ sengeplasser.
- Bad med badstue
- Solrik terrasse med vidstrakt utsikt
- Moderne peis og WiFi panelovner i alle rom
- Skibussen stopper kun ca. 5m fra eiendommens grense.
Kontakt megler for privatvisning på +47 412 36 026
NB: Knappen for å vise hele beskrivelsen har kun en visuell effekt.
NB: Knappen for å vise hele beskrivelsen har kun en visuell effekt.
Salgsoppgaven beskriver vesentlig og lovpålagt informasjon om eiendommen
Se komplett salgsoppgaveNyttige lenker
Nærområdet
PrivatMegleren Hamar
Kun det beste på dine vegne
Annonseinformasjon
| FINN-kode | 457591330 |
|---|---|
| Sist endret | 30. mars 2026 09:41 |
| Referanse | 320260037 |
Annonsene kan være mangelfulle i forhold til lovpålagt opplysningsplikt. Før bindende avtale inngås oppfordres interessenter til å innhente komplett informasjon fra meglerforetaket, selger eller utleier.




































