Bildegalleri

Velkommen til Brattåsen 20!
Øvre Berg - Totalrenovert enebolig på lettstelt utsiktsomt i rolig blindgate - Utleidel med gode leieinntekter
Prisantydning8 500 000 kr
Nøkkelinfo
- Boligtype
- Enebolig
- Eieform
- Selveier
- Soverom
- 7
- Internt bruksareal
- 201 m² (BRA-i)
- Bruksareal
- 248 m²
- Eksternt bruksareal
- 47 m² (BRA-e)
- Balkong/Terrasse
- 80 m² (TBA)
- Byggeår
- 1971
- Energimerking
- Rom
- 9
- Tomteareal
- 1 051 m² (eiet)
Fasiliteter
Balkong/Terrasse
Garasje/P-plass
Turterreng
Utsikt
Moderne
Rolig
Visning
onsdag, 08. april
16:00 – 17:00
Velkommen til visning!
Alle våre visninger har påmelding. På denne måten sikrer vi at megler har god oversikt og tid til å imøtekomme alle interessenter på beste måte. Dette er veldig verdifullt for boligkjøpere og for oss. Det er enkelt å melde seg på, og du kan like enkelt melde deg av. Kontakt også gjerne megler i forkant av visning dersom du har spørsmål.
Om boligen
Velkommen til Brattåsen 20!
Eiendommen ligger flott til på nydelig utsiktstomt med skogen i nord som nærmeste nabo.
Eneboligen er i perioden 2022 til 2024 totalrenovert. Videre er det oppført ny dobbelgarasje og det er gjort store arbeider på tomten.
Eiendommen har følgende høydepunkter:
- Totalrenovert bolig utvendig og innvendig.
- Ny dobbelgarasje fra 2024.
- Det er brukt vedlikeholdsvennlige materialer utvendig.
- Oppgradert innkjørsel og stor, asfaltert gårdsplass.
- Det er varmekabler i hjulspor i adkomst veg, samt alle asfalterte gangarealer opp til boligen.
- Hagen/uteområdet er opparbeidet på nytt i perioden 2022-2025.
- Utleiedelen er i dag leid ut for totalt kr. 15 000,- pr. mnd.
Boligens hoveddel inkluderer:
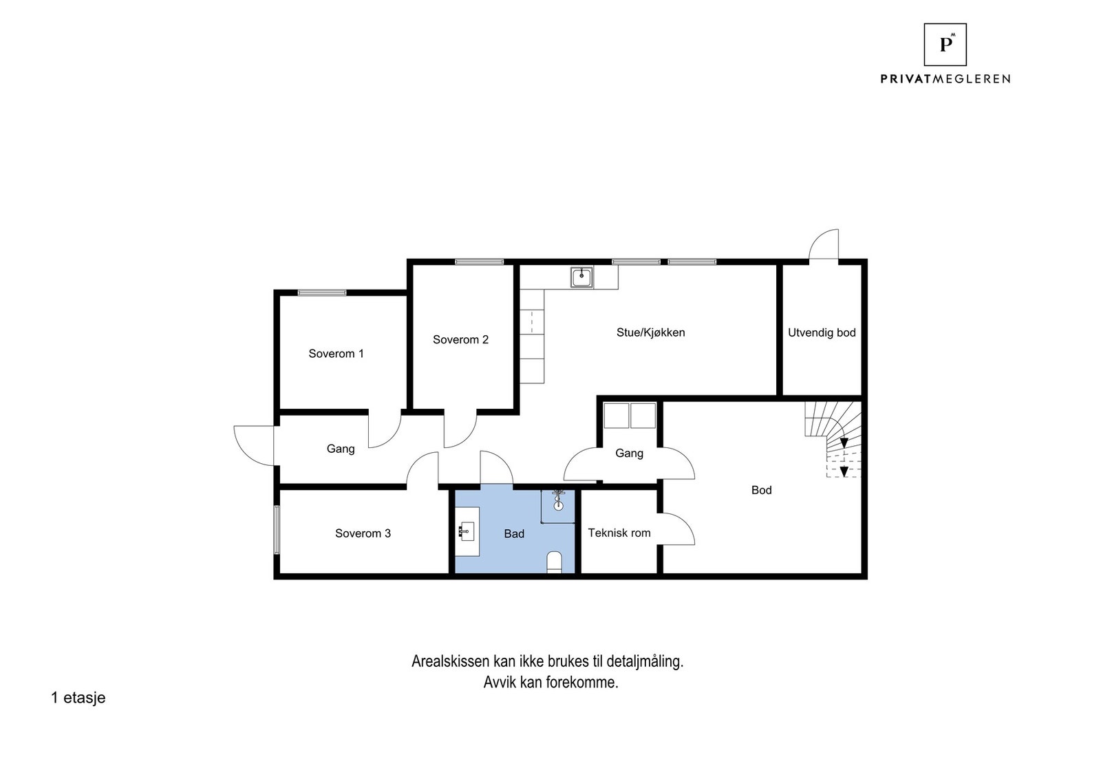
1. etasje: Gang, stue/kjøkken,4 soverom, bad, toalettrom og vaskerom.
Underetasje: Gang/bod m/trapp, teknisk rom og utvendig bod.
Boligens utleiedel i underetasjen inkluderer:
Gang, kjøkken/stue,3 soverom, bad/wc og mellomgang m/opplegg for vaskemaskin.
Eiendommen ligger flott til på nydelig utsiktstomt med skogen i nord som nærmeste nabo.
Eneboligen er i perioden 2022 til 2024 totalrenovert. Videre er det oppført ny dobbelgarasje og det er gjort store arbeider på tomten.
Eiendommen har følgende høydepunkter:
- Totalrenovert bolig utvendig og innvendig.
- Ny dobbelgarasje fra 2024.
- Det er brukt vedlikeholdsvennlige materialer utvendig.
- Oppgradert innkjørsel og stor, asfaltert gårdsplass.
- Det er varmekabler i hjulspor i adkomst veg, samt alle asfalterte gangarealer opp til boligen.
- Hagen/uteområdet er opparbeidet på nytt i perioden 2022-2025.
- Utleiedelen er i dag leid ut for totalt kr. 15 000,- pr. mnd.
Boligens hoveddel inkluderer:
1. etasje: Gang, stue/kjøkken,4 soverom, bad, toalettrom og vaskerom.
Underetasje: Gang/bod m/trapp, teknisk rom og utvendig bod.
Boligens utleiedel i underetasjen inkluderer:
Gang, kjøkken/stue,3 soverom, bad/wc og mellomgang m/opplegg for vaskemaskin.
NB: Knappen for å vise hele beskrivelsen har kun en visuell effekt.
NB: Knappen for å vise hele beskrivelsen har kun en visuell effekt.
Salgsoppgaven beskriver vesentlig og lovpålagt informasjon om eiendommen
Se komplett salgsoppgaveNyttige lenker
Nærområdet
Privatmegleren Molde
Kun det beste på dine vegne
Annonseinformasjon
| FINN-kode | 457584525 |
|---|---|
| Sist endret | 28. mars 2026 16:52 |
| Referanse | 45260003 |
Annonsene kan være mangelfulle i forhold til lovpålagt opplysningsplikt. Før bindende avtale inngås oppfordres interessenter til å innhente komplett informasjon fra meglerforetaket, selger eller utleier.













































