Bildegalleri

EiendomsMegler 1 v/Frank Robert Bae har gleden av å presentere et innholdsrikt rekkehus med god beliggenhet i Blomsterbyen.
Blomsterbyen/Moholt
Flott rekkehus med barnevennlig beliggenhet - Flere oppgraderinger i nyere tid - Plen og solrike uteplasser - Ny garasje
Prisantydning6 190 000 kr
Nøkkelinfo
- Boligtype
- Rekkehus
- Eieform
- Selveier
- Soverom
- 3
- Internt bruksareal
- 149 m² (BRA-i)
- Bruksareal
- 173 m²
- Eksternt bruksareal
- 24 m² (BRA-e)
- Balkong/Terrasse
- 40 m² (TBA)
- Byggeår
- 1958
- Energimerking
- Rom
- 6
- Tomteareal
- 224 m² (eiet)
Fasiliteter
Barnevennlig
Balkong/Terrasse
Garasje/P-plass
Kabel-TV
Offentlig vann/kloakk
Turterreng
Utsikt
Bredbåndstilknytning
Moderne
Rolig
Lademulighet
Visning
onsdag, 08. april
18:00 – 18:45
Våre visninger har påmelding. Dette gjør vi for å kunne yte bedre service for våre kunder. Verdifullt for boligkjøper og for oss. Vi anbefaler at salgsoppgaven lastes ned digitalt før visning, og ring oss gjerne på forhånd for spørsmål om boligen. Passer ikke angitt tidspunkt, ta kontakt så finner vi en løsning. Skulle det mot formodning ikke være påmeldte til angitt visningstidspunkt vil ikke visning bli gjennomført.
Om boligen
EiendomsMegler 1 v/Frank Robert Bae har gleden av å presentere et innholdsrikt rekkehus med god beliggenhet i Blomsterbyen.
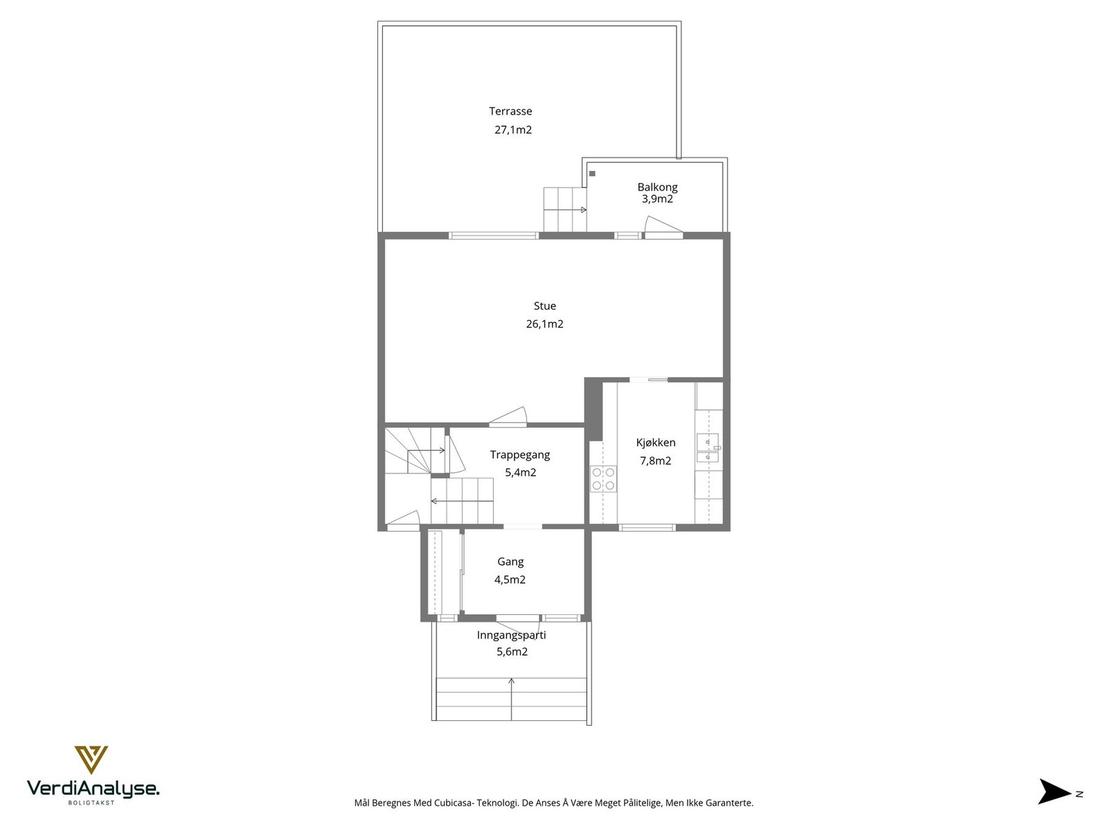
Boligen er på 149 kvm og har en effektiv planløsning som strekker seg over fire plan. Her får du bl.a tre soverom i samme etasje, flere stuer og to bad. Husets uteområde består av vestvendt balkong og terrasse, samt en lettstelt hage med stor ripsbusk. Her nyter du glimrende solforhold, i tillegg til en fin utsikt over byen fra øvre etasjer. Ny og romslig garasje fra 2023 med god plass til stor bil, elbillader, rikelig lagringsplass og hems.
Svært attraktiv beliggenhet med gangavstand til NTNU og St. Olavs, gode bussforbindelser og kort vei til sentrum. Området har barnehager og skoler med godt renommé, samt idrettslag i umiddelbar nærhet. Eiendommen ligger i et meget rolig og stille nabolag med flotte turmuligheter, og selger fremhever et eksepsjonelt godt naboskap i et veldrevet huseierlag.
Velkommen til en hyggelig visning!
Boligen er på 149 kvm og har en effektiv planløsning som strekker seg over fire plan. Her får du bl.a tre soverom i samme etasje, flere stuer og to bad. Husets uteområde består av vestvendt balkong og terrasse, samt en lettstelt hage med stor ripsbusk. Her nyter du glimrende solforhold, i tillegg til en fin utsikt over byen fra øvre etasjer. Ny og romslig garasje fra 2023 med god plass til stor bil, elbillader, rikelig lagringsplass og hems.
Svært attraktiv beliggenhet med gangavstand til NTNU og St. Olavs, gode bussforbindelser og kort vei til sentrum. Området har barnehager og skoler med godt renommé, samt idrettslag i umiddelbar nærhet. Eiendommen ligger i et meget rolig og stille nabolag med flotte turmuligheter, og selger fremhever et eksepsjonelt godt naboskap i et veldrevet huseierlag.
Velkommen til en hyggelig visning!
NB: Knappen for å vise hele beskrivelsen har kun en visuell effekt.
NB: Knappen for å vise hele beskrivelsen har kun en visuell effekt.
Salgsoppgaven beskriver vesentlig og lovpålagt informasjon om eiendommen
Se komplett salgsoppgaveNyttige lenker
Nærområdet
EiendomsMegler 1 Grilstadporten
Vi loser deg trygt gjennom hele boligsalget
Annonseinformasjon
| FINN-kode | 457571614 |
|---|---|
| Sist endret | 27. mars 2026 15:40 |
| Referanse | 33260049 |
Annonsene kan være mangelfulle i forhold til lovpålagt opplysningsplikt. Før bindende avtale inngås oppfordres interessenter til å innhente komplett informasjon fra meglerforetaket, selger eller utleier.



















































