Bildegalleri

Velkommen til Galeasvegen 9 - Attraktivt beliggende familiebolig med god planløsning. Rolig og tilbaketrukket beliggenhet i en rolig gate uten gjennomgangstrafikk. Her har man kort vei til Brakahaug barneskole og til flere barnehager.
Brakahaug - Innholdsrik enebolig innredet over 3 plan. Dobbel garasje. Vestvendt og solrik beliggenhet i etterspurt bel.
Prisantydning4 950 000 kr
Nøkkelinfo
- Boligtype
- Enebolig
- Eieform
- Selveier
- Soverom
- 3
- Internt bruksareal
- 202 m² (BRA-i)
- Bruksareal
- 251 m²
- Eksternt bruksareal
- 49 m² (BRA-e)
- Byggeår
- 1989
- Energimerking
- Rom
- 8
- Tomteareal
- 778 m² (eiet)
Fasiliteter
Balkong/Terrasse
Barnevennlig
Garasje/P-plass
Golfbane
Hage
Kjæledyr tillatt
Kabel-TV
Offentlig vann/kloakk
Parkett
Peis/Ildsted
Rolig
Sentralt
Utsikt
Turterreng
Visning
torsdag, 09. april
16:00 – 17:00
Velkommen til visning! Husk å melde deg på visningen ved å trykke på knappen visningspåmelding under, eller ta kontakt med megler for å gjøre en avtale. Visninger uten påmeldte blir avlyst.
VisningspåmeldingOm boligen
Velkommen til Galeasvegen 9 - Attraktivt beliggende familiebolig med god planløsning.
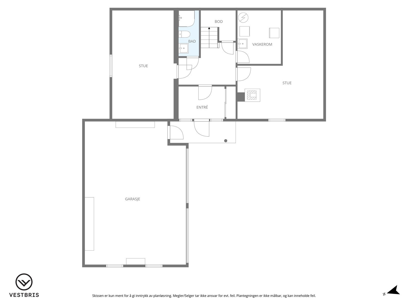
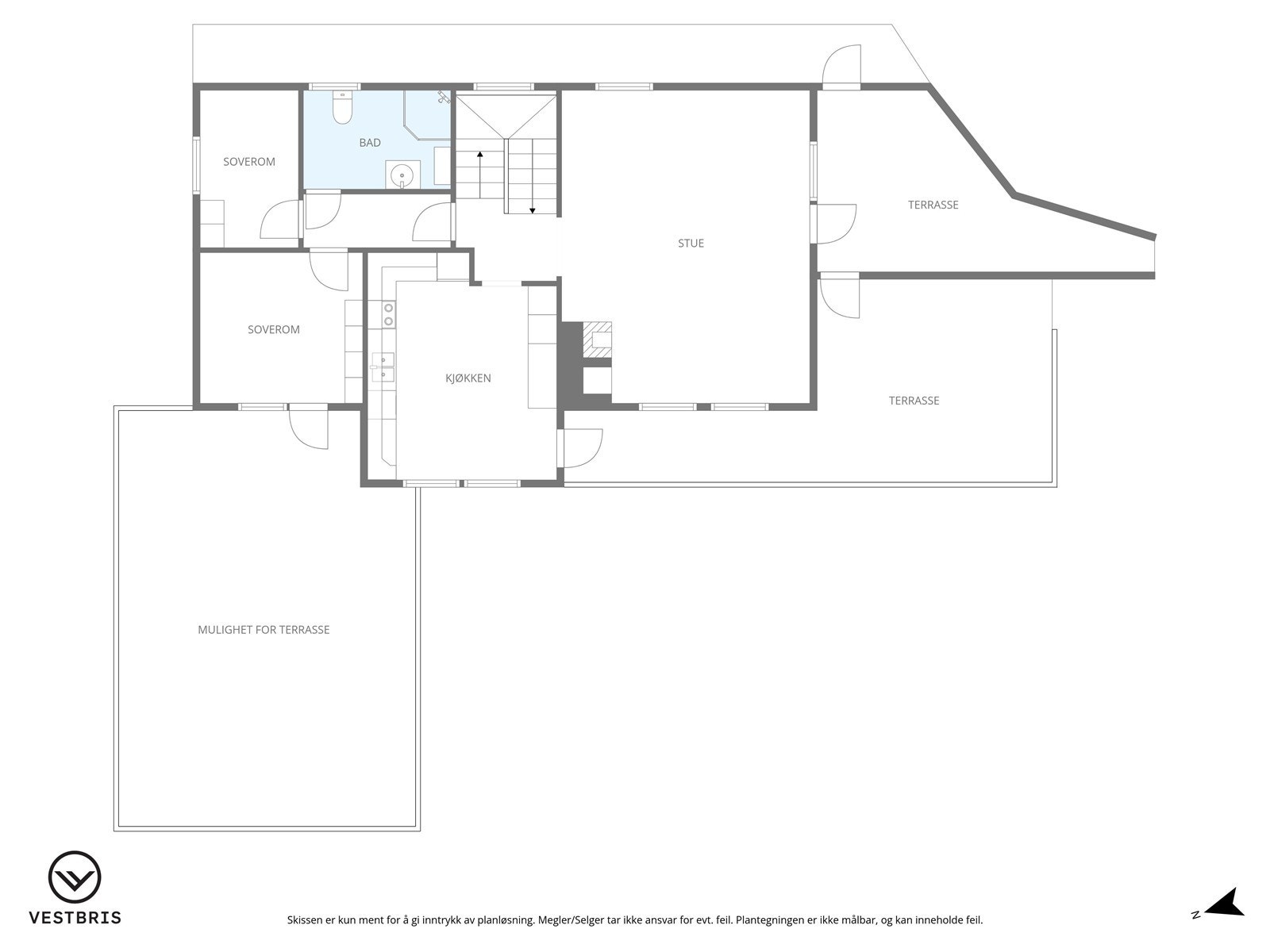
Boligen er innredet over 3 plan og inneholder bla. 2 stuer (kjellerstue ikke omsøkt/godkjent), 5 soverom og 2 bad (Loft er omsøkt/godkjent) samt kjellerstue tidl. garasje).
Skjermet uteområde, pent opparbeidet med terrasse, noe plen og flott beplantning.
Galeasvegen 9 har en rolig og tilbaketrukket beliggenhet i en rolig gate uten gjennomgangstrafikk. Området byr blant annet på flotte turmuligheter i Brakahaugskogen og på Storasundsfjellet, med ulike turstier både for voksne og barn. Ønsker man innendørs trening, er det kort avstand til treningssenter på Raglamyr.
Her har man kort vei til Brakahaug barneskole og til flere barnehager. Kort gang-/sykkelavstand til Raglamyr og til Haugesund sentrum.
Boligen er innredet over 3 plan og inneholder bla. 2 stuer (kjellerstue ikke omsøkt/godkjent), 5 soverom og 2 bad (Loft er omsøkt/godkjent) samt kjellerstue tidl. garasje).
Skjermet uteområde, pent opparbeidet med terrasse, noe plen og flott beplantning.
Galeasvegen 9 har en rolig og tilbaketrukket beliggenhet i en rolig gate uten gjennomgangstrafikk. Området byr blant annet på flotte turmuligheter i Brakahaugskogen og på Storasundsfjellet, med ulike turstier både for voksne og barn. Ønsker man innendørs trening, er det kort avstand til treningssenter på Raglamyr.
Her har man kort vei til Brakahaug barneskole og til flere barnehager. Kort gang-/sykkelavstand til Raglamyr og til Haugesund sentrum.
NB: Knappen for å vise hele beskrivelsen har kun en visuell effekt.
NB: Knappen for å vise hele beskrivelsen har kun en visuell effekt.
Salgsoppgaven beskriver vesentlig og lovpålagt informasjon om eiendommen
Se komplett salgsoppgaveNyttige lenker
Nærområdet
Eiendomsmegler Norge Haugesund
Best der du bor
Annonseinformasjon
| FINN-kode | 457566675 |
|---|---|
| Sist endret | 27. mars 2026 14:29 |
| Referanse | 19260027 |
Annonsene kan være mangelfulle i forhold til lovpålagt opplysningsplikt. Før bindende avtale inngås oppfordres interessenter til å innhente komplett informasjon fra meglerforetaket, selger eller utleier.



































