Bildegalleri

Velkommen til Nedre Skogveg 21 i Glåmlia! Foto: Dagmar Ånerud / EFKT
Glåmlia
Påkostet og flott enebolig i barnevennlige omgivelser * Solrik og pent opparbeidet tomt * Garasje
Prisantydning3 800 000 kr
Nøkkelinfo
- Boligtype
- Enebolig
- Eieform
- Selveier
- Soverom
- 2
- Internt bruksareal
- 142 m² (BRA-i)
- Bruksareal
- 162 m²
- Eksternt bruksareal
- 20 m² (BRA-e)
- Balkong/Terrasse
- 46 m² (TBA)
- Byggeår
- 1964
- Energimerking
- Tomteareal
- 1 112 m² (eiet)
Fasiliteter
Balkong/Terrasse
Garasje/P-plass
Hage
Kjæledyr tillatt
Offentlig vann/kloakk
Peis/Ildsted
Rolig
Utsikt
Turterreng
Om boligen
Eneboligen ligger fint til i Glåmlia, et barnevennlig område hvor både store og små trives - med trygge omgivelser og et godt nabolag.
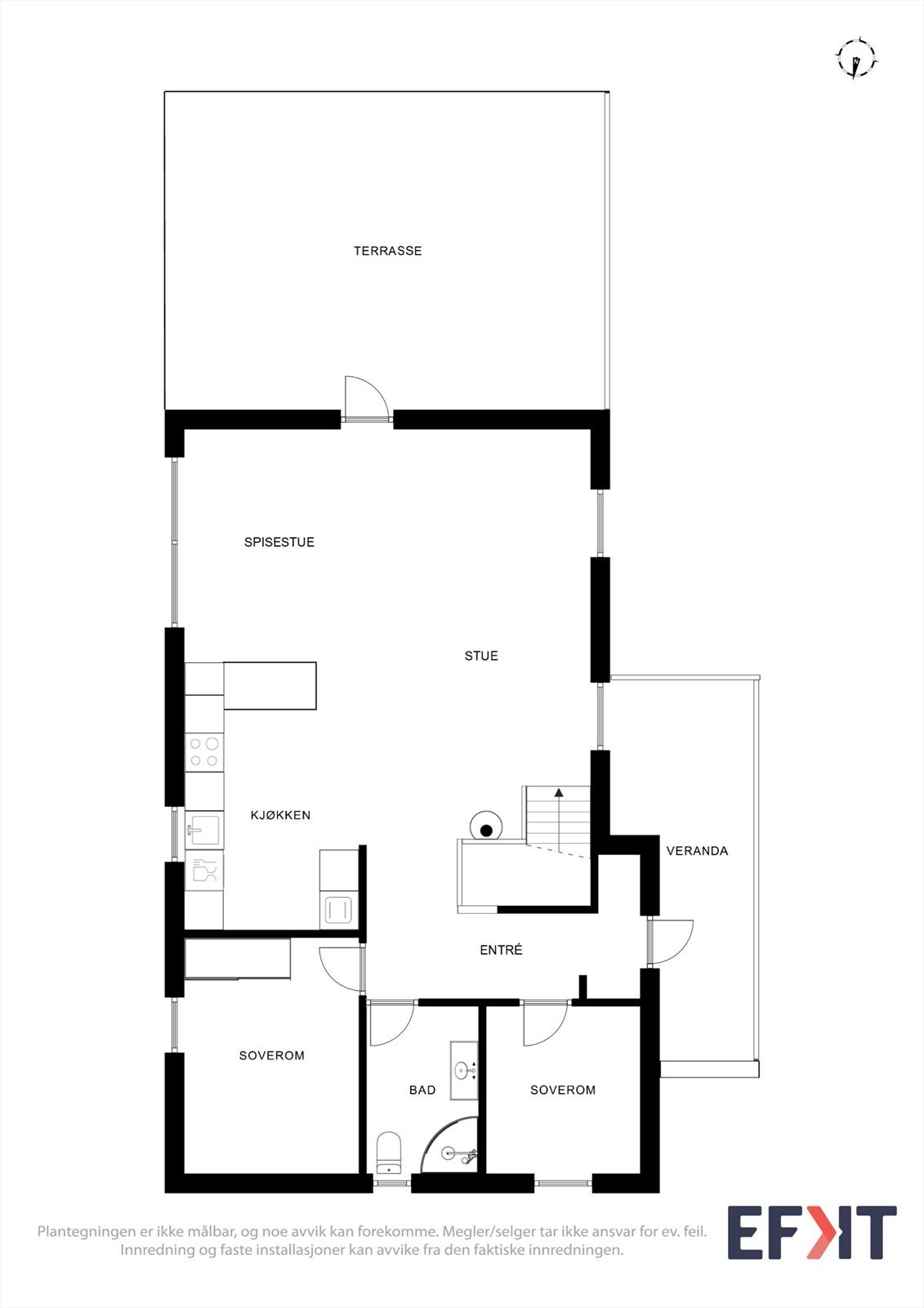
Boligen har fin planløsning med alle nødvendige boligrom på ett plan, og en åpen stue- og kjøkkenløsning. I tillegg er det to soverom, bad og entré i 1.etg. Kjelleren inneholder gang, toalettrom, vaskerom, bod og 2 innredede rom. Begge de innredede rommene har godkjent rømningsvei, men kjelleren er ikke bruksendret. Fra stue er det utgang til det flotte uteområdet. Boligen er oppgradert betraktelig i perioden 2015 til 2021, og boligen har en lys og innbydende atmosfære. På eiendommen er også garasje m/bod.
Det er gang- og sykkelveg fra boligområdet mot sentrum, samt nærhet til Glomma og flotte turområder!
Velkommen på visning
Boligen har fin planløsning med alle nødvendige boligrom på ett plan, og en åpen stue- og kjøkkenløsning. I tillegg er det to soverom, bad og entré i 1.etg. Kjelleren inneholder gang, toalettrom, vaskerom, bod og 2 innredede rom. Begge de innredede rommene har godkjent rømningsvei, men kjelleren er ikke bruksendret. Fra stue er det utgang til det flotte uteområdet. Boligen er oppgradert betraktelig i perioden 2015 til 2021, og boligen har en lys og innbydende atmosfære. På eiendommen er også garasje m/bod.
Det er gang- og sykkelveg fra boligområdet mot sentrum, samt nærhet til Glomma og flotte turområder!
Velkommen på visning
NB: Knappen for å vise hele beskrivelsen har kun en visuell effekt.
NB: Knappen for å vise hele beskrivelsen har kun en visuell effekt.
Salgsoppgaven beskriver vesentlig og lovpålagt informasjon om eiendommen
Se komplett salgsoppgaveNærområdet
Aktiv Kongsvinger
Annonseinformasjon
| FINN-kode | 457563245 |
|---|---|
| Sist endret | 30. mars 2026 13:53 |
| Referanse | 1202260044 |
Annonsene kan være mangelfulle i forhold til lovpålagt opplysningsplikt. Før bindende avtale inngås oppfordres interessenter til å innhente komplett informasjon fra meglerforetaket, selger eller utleier.



































